The UK's Largest Customer Review Website for the Property Industry
The UK's Largest Customer Review Website for the Property Industry
Back to Property Listings
Swandean Close, Worthing
Step Inside
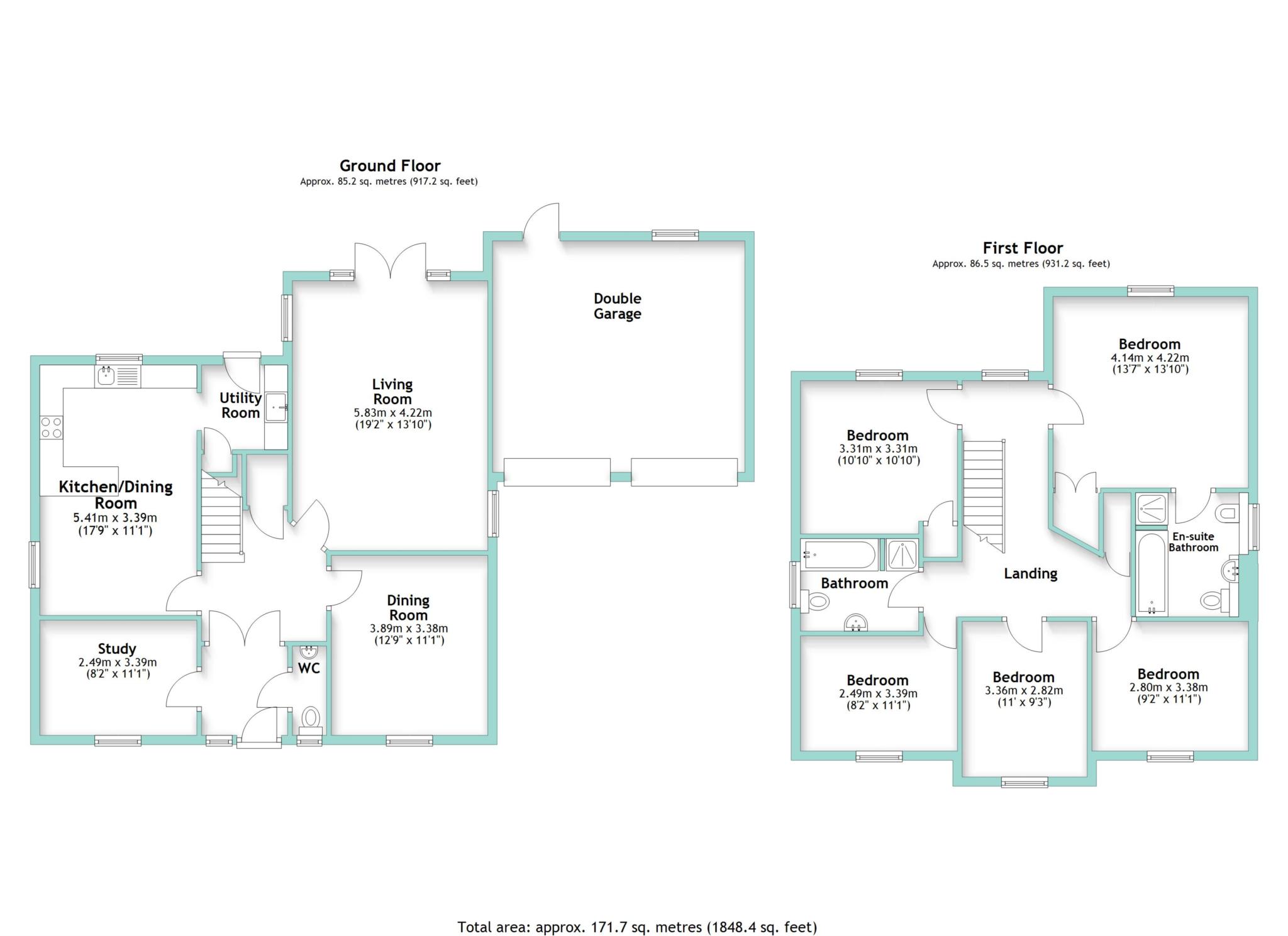
Offering a cherished level of privacy, this detached family home sits nestled within the greenery of circa 0.22acres. Tucked back from the trees and central lawn of Swandean Close, a large gated driveway sweeps up to a handsome double fronted facade with hung tiles and timber cladding. Behind a canopied doorway an enclosed entrance porch and classically large central hall instantly hint at the fluidity and space on offer, while the warm tones of Amtico wood effect floors flow into a fantastic choice of spaces in which to relax, dine and work from home.
With timber framed French doors tempting you out onto the secluded patio, a superbly sized triple aspect sitting room has the refined focal point of a tastefully chosen fireplace. A formal dining room is ideally sized for entertaining friends or celebrating key dates in the diary, while a generous study can be adapted to your own needs as a gym, TV or playroom.
Designed to be filled with light, it`s easy to see that the exemplary kitchen/breakfast room is somewhere that everyone will naturally gravitate towards. Double aspect and beautifully presented, an accomplished layout includes an accent wall that lends a vibrant pop of colour. Shaker cabinets wrap-around the considerable kitchen housing a first class array of integrated appliances ideal for modern family living. Sleek countertops extend to form a peninsula that subtly delineates the open plan space and an adjoining utility room has handy access to the gardens. A ground floor cloakroom is on hand for guests and busy school day mornings.
Bathed in sunlight an elegant staircase entices you upstairs where a central landing unfolds onto five double bedrooms all with a soft neutral palette. Looking out over the garden, an enviable main bedroom sits peacefully to the rear with wide dormer windows that generate the perfect spot for a chaise longue. Recessed wardrobes provide ample storage and a stylish en suite with dual toned walls and an encaustic patterned floor adds a deluxe finishing touch with its bath, walk-in shower and bidet.
Equally impressive, the additional four bedrooms offer plenty of flexibility to cater to your needs and share a modern family bath/shower room that complements the en suite.
Outside
Extending out over approximately 0.22 acres, the gated grounds and gardens prompt a cherished feel of tranquillity and seclusion. To the front an established lawn frames a prodigious brick paved driveway that combines with attached double garaging to give private off-road parking to several vehicles.
To the rear the French doors of the sitting room make it easy for daily life to filter out onto a secluded paved patio ideally proportioned for al fresco dining. Bordered by statuesque trees and beds fully stocked with evergreen shrubs, an extensive lawn reaches out before you adding an idyllic backdrop to life in this High Salvington home.
In Your Local Area
Only moments from the South Downs, an abundance of walks, and the historic 18th century windmill, this High Salvington home is situated in a favoured cul de sac with easy access to the A27, A24 and A259. A choice of supermarkets is nearby and the shops, bars and restaurants of central Worthing are less than three miles from your door.
Durrington-On-Sea mainline train station is approximately only 1.8miles away and provides regular routes to London. Worthing and Northbrook colleges are both within a two mile radius, and local schools highly rated by Ofsted include Vale School, Durrington Junior School and Durrington High School.
what3words /// museum.summaries.finders
Notice
Please note we have not tested any apparatus, fixtures, fittings, or services. Interested parties must undertake their own investigation into the working order of these items. All measurements are approximate and photographs provided for guidance only.
Council Tax
Adur & Worthing, Band G
Utilities
Electric: Mains Supply
Gas: Mains Supply
Water: Mains Supply
Sewerage: Mains Supply
Broadband: Unknown
Telephone: Unknown
Other Items
Heating: Gas Central Heating
Garden/Outside Space: Yes
Parking: Yes
Garage: Yes

This property is marketed by

Village Estate Agency - Brighton, Brighton, BN113JA
0/5 Rating
(0) reviews
Agent Statistics (Based on 0 Reviews) :