The UK's Largest Customer Review Website for the Property Industry
The UK's Largest Customer Review Website for the Property Industry
Back to Property Listings
Stuart Road,Acton, London
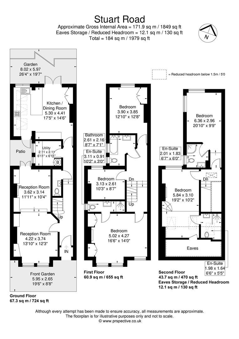
Aston Rowe are proud to present this wonderful five double bedroom semi-detached period house, situated on one of Acton's premier residential roads. This stunning family home offers over 1,979 sqft (Including eaves and reduced head height) of accommodation with a modern and spectacular 17.5 ft kitchen/diner with floor to ceiling bespoke patio doors leading out to a landscaped 26ft private garden.
The ground floor also features two large separate reception rooms with an open fire with bespoke cabinetry, high ceilings, period features and a downstairs WC and separate utility room.
The first-floor benefits from a tasteful and well-designed family bathroom, two double bedroom and the master bedroom which consists of built in wardrobes and en-suite shower room. The second floor comprises of two double bedrooms both with en-suite bathrooms and eaves storage space.
This property has been refurbished throughout by the current owners and is a 15-minute walk to the new Elizabeth Line and moments from the vibrant café culture of Churchfield Road which offers a great selection of boutique shops, bars and eateries.

Agent Statistics (Based on 192 Reviews) :