The UK's Largest Customer Review Website for the Property Industry
The UK's Largest Customer Review Website for the Property Industry
Back to Property Listings
Stringer House Lane, Emley, Huddersfield
A STUNNING four bedroom equestrian home with paddock, stable yard and separate LAND in the heart of Emley village. VIRTUAL TOUR AVAILABLE. EPC rating D62.
Situated in the sought after village of Emley is this stunning detached home offering spacious and versatile living accommodation extending towards 2,600 square feet with the added benefit of substantial garden to the rear, paddock area, stable yard and a short walk leading to a separate field extending towards 1.3 acres.
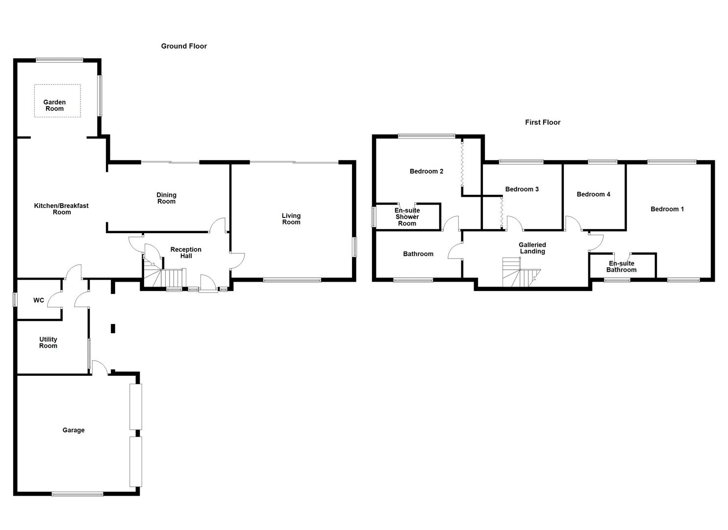
The superbly appointed accommodation fully comprises of the reception hall, living room, stunning open plan kitchen/breakfast room opening up into the dining room and garden room. A side lobby leads to the downstairs w.c. and utility room. Stairs to the first floor lead to a galleried landing which provide access to four well proportioned bedrooms (two with en suite facilities) and four piece main house bathroom. Set back from main roadside through gated access is a large driveway providing ample off street parking for several vehicles leading to the double garage. To the rear is a substantial lawned garden incorporating feature limestone terraced patio with gated access to the paddock and stable yard with barn behind.
Situated in the rural village of Emley looking towards Emley Moor Mast at the front, the property is located close to local amenities including a local pub, churches and a village hall. For those wishing to travel further afield, the property is conveniently located near several major motorways, offering easy access to surrounding cities and regions.
Offering huge to develop further to extend, subject to consent, this property is simply a fantastic home, ideal for the growing family and truly deserves an early viewing to fully reveal that quality of accommodation on offer and to avoid any disappointment.
Accommodation -
Reception Hall - Solid oak entrance door with double glazed window panels either side, radiator, solid wood herringbone flooring, balustrade staircase to the first floor landing, feature arched hard wood double glazed window to the front, door to the understairs cloaks, doors to the living room, kitchen/breakfast room and dining room.
Living Room - 6.03m x 5.94m (19'9" x 19'5") - Feature double glazed aluminium sliding doors onto limestone terraced patio, double glazed timber framed windows to the front and semi-arched to the side, dado rail, two radiators, feature fireplace incorporating wood burner with Yorkshire stone back and hearth, wooden mantle.
Kitchen/Breakfast Room - 5.64m (max) x 4.44m (min) x 6.97m (18'6" (max) x 1 - Bespoke fitted wall and base units with feature quartz work surface over, feature aga, quartz breakfast island bar with Belfast sink and drainer with mixer tap, two integrated Neff dishwashers and pull out disposable unit. Integrated full length fridge and separate full length freezer. Feature limestone flooring with underfloor heating, recess LED spotlights and under plinth lighting. Open through to the dining room, squared archway leading into the garden room and door into the side lobby which leads through into the utility room.
Dining Room - 6.16m x 3.49m (20'2" x 11'5") - Feature limestone flooring with underfloor heating and feature double glazed aluminium sliding doors onto limestone terraced patio, door.
Garden Room - 3.73m x 4.35m (12'2" x 14'3") - Feature lantern roof, double glazed timber framed windows to the rear and side and feature limestone flooring with underfloor heating.
Side Lobby - Feature limestone flooring with underfloor heating, doors to the downstairs w.c. and utility room.
W.C. - 1.71m x 2.19m (5'7" x 7'2") - High flush w.c., pedestal wash basin, feature limestone flooring with underfloor heating and double glazed hard wood frosted window to the side.
Utility Room - 3.45m x 2.73m (11'3" x 8'11") - Range of bespoke wall and base units with feature quartz work surface over incorporating Belfast sink and drainer with mixer tap, space for a condensing dryer and plumbing for an automatic washing machine. Timber framed double glazed window to the front and feature limestone flooring with underfloor heating.
First Floor Landing - Radiator, loft access with drop down ladder, doors to four bedrooms and bathroom.
Loft Room - 2.74m x 4.62m (8'11" x 15'1") - Double glazed hard wood windows to the front, radiator, light and power. Currently used as an office but could be used for a variety of purposes.
Bedroom One - 4.18m x 4.64m (min) x 5.99m (max) (13'8" x 15'2" ( - Two radiators, double glazed hard wood windows to the front and rear and door off the walk in area (1.86m x 1.06m) to the en suite bathroom.
En Suite Bathroom/W.C. - 3.26m x 1.25m (10'8" x 4'1") - Low flush w.c., pedestal wash basin, corner panelled bath, part tiled walls, two double glazed hard wood frosted windows to the front and heated chrome towel radiator.
Bedroom Two - 4.53m (max) x 3.43m (min) x 5.08m (14'10" (max) x - Loft access, double glazed hard wood windows to the rear, built in wardrobes and door to the en suite shower room.
En Suite Shower Room/W.C. - 1.0m x 3.24m (3'3" x 10'7") - Shower cubicle with electric shower, low flush w.c., heated chrome towel radiator, pedestal wash basin, double glazed hard wood frosted window to the side, fully tiled walls and floor.
Bedroom Three - 3.48m x 3.17m (min) x 4.01m (max) (11'5" x 10'4" ( - Double glazed hard wood windows to the rear, radiator and built in wardrobe.
Bedroom Four - 3.0m x 3.48m (9'10" x 11'5") - Two double glazed hard wood windows to the rear and radiator.
Bathroom/W.C. - 2.42m x 3.89m (7'11" x 12'9") - Walk in shower cubicle with electric shower, pedestal wash basin, low flush w.c. and feature freestanding contemporary bath. Cast iron radiator, double glazed hard wood frosted window to the front, part tiled walls, fully tiled floor.
Outside - There is gated access to the driveway which provides ample off street parking for several vehicles leading to the double garage with twin up and over doors. To the rear is a substantial lawned garden incorporating feature limestone terraced patio area, ideal for outdoor entertaining. To the rear of the garden is a fence with gated access to an enclosed paddock enjoying a good degree of privacy on a hard standing area with room for horsebox/trailer with gate to the stable yard (3.05m x 3.05m) and barn behind (8.98m x 3.65m) with adjoining timber framed storage shed. Gated access leads onto a country lane, a short walk away leads to a gated field extending towards an acre enjoying panoramic views of open fields and adjoining countryside.
Council Tax Band - The council tax band for this property is G.
Floor Plans - These floor plans are intended as a rough guide only and are not to be intended as an exact representation and should not be scaled. We cannot confirm the accuracy of the measurements or details of these floor plans.
Viewings - To view please contact our Ossett office and they will be pleased to arrange a suitable appointment.
Epc Rating - To view the full Energy Performance Certificate please call into one of our local offices.

This property is marketed by

Richard Kendall Estate Agent - Ossett, Ossett, WF5
4.9/5 Rating
(1653) reviews
Agent Statistics (Based on 1653 Reviews) :