The UK's Largest Customer Review Website for the Property Industry
The UK's Largest Customer Review Website for the Property Industry
Back to Property Listings
Stoughton Road, Oadby, Leicester
*** No Chain *** Immaculate 1920's semi detached family home on arguably one of the most sought after streets in Oadby. The property has been lovingly maintained during the sellers ownership, retaining original features. The accommodation comprises entrance hall, lounge, dining room, conservatory/games room, store, downstairs w.c., kitchen diner, utility area, four bedrooms, en-suite to master, family bathroom and front and rear gardens. A house not to miss!
Details - SUMMARY *** No Chain *** Immaculate 1920's semi detached family home on arguably one of the most sought after streets in Oadby. The property has been lovingly maintained during the sellers ownership, retaining original features. The accommodation comprises entrance hall, lounge, dining room, conservatory/games room, store, downstairs w.c., kitchen diner, utility area, four bedrooms, en-suite to master, family bathroom and front and rear gardens. A house not to miss!
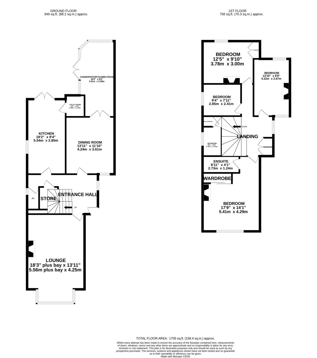
ENTRANCE HALL With stairs off to the first floor, feature single glazed window to the side elevation, dado rail, picture rail, coving to the ceiling, spotlights, laminate floor, radiator and storage cupboard.
LOUNGE 18' 3" plus bay x 13' 11" (5.56m x 4.24m) With fireplace, square bay window to the front elevation, picture rail, dado rail and two radiators.
DINING ROOM 13' 11" x 11' 10" (4.24m x 3.61m) With fireplace, picture rail, coving to the ceiling, window to the front elevation, laminate floor and radiator.
CONSERVATORY/GAMES ROOM 18' 5" x 8' 6" (5.61m x 2.59m) With windows to the side and rear elevations, tiled floor, radiator and French doors to the rear garden.
WC Comprising wash hand basin, low flush w.c., tiled splash backs, tiled floor and window to the side elevation.
KITCHEN/DINER 18' 2" x 9' 4" (5.54m x 2.84m) Comprising base and wall mounted units with complementary work surfaces, sink unit with drainer, plumbing for washing machine and dishwasher, built in double oven, gas hob and extractor hood, tiled splash backs, spotlights, window to the side elevation, radiator and French doors to the rear garden.
UTILITY AREA 5' 3" x 4' 3" (1.6m x 1.3m) With tiled floor.
LANDING With built in storage, feature single glazed window to the side elevation and spotlights.
MASTER BEDROOM 17' 9" x 14' 11" (5.41m x 4.55m) With built in wardrobes, fireplace, coving to the ceiling, window to the front elevation and radiator.
ENSUITE 8' 11" x 4' 1" (2.72m x 1.24m) Being fully tiled and comprising double shower cubicle, vanity wash hand basin, low flush w.c., heated towel rail, shaver point, tiled floor and spotlights.
BEDROOM 12' 5" x 9' 10" (3.78m x 3m) With built in wardrobes, fireplace, window to the rear elevation and radiator.
BEDROOM 13' 10" x 8' 9" (4.22m x 2.67m) With fireplace, windows to the front and rear elevations and radiator.
BEDROOM 9' 4" x 7' 11" (2.84m x 2.41m) With window to the side elevation and radiator.
BATHROOM 9' x 4' 8" (2.74m x 1.42m) Being fully tiled and comprising panelled bath with shower over, vanity wash hand basin, low flush w.c., airing cupboard housing the boiler, tiled floor, heated towel rail and window to the side elevation.
OUTSIDE The front of the property is paved and walled with ornate flower borders. The rear garden is laid to lawn with patio area, flower borders, 2 garden sheds, external power points, gated side access and a fenced surround.
SALES SUMMARY & MATERIAL INFORMATION • Price : Offers Over £475,000
• Tenure : Freehold
• Length of lease : N/a
• Annual ground rent amount : N/a
• Ground rent review period : N/a
• Annual service charge amount : N/a
• Service charge review period : N/a
• Council tax band : D
• EPC Rating: E
• Property type: Semi Detached
• Property construction: Brick
• Number and types of room: Please refer to floorplan
• Electricity supply: mains
• Water supply: Mains
• Sewerage: Public sewer
• Heating: Gas Central Heating
• Broadband: Refer to Ofcom for broadband services
• Mobile signal / coverage: refer to Ofcom mobile coverage checker
• Parking: On Street Parking
• Building safety: No known hazards
• Restrictions: No known restrictions
• Rights and easements: No known relevant rights or easements
• Coastal erosion risk: None
• Planning permission: No known planning permissions or proposals for development
• Accessibility/Adaptations: None
• Coalfield or mining area: No direct impact of any mining activity
THINKING OF SELLING? We would be delighted to provide you with a free market appraisal/valuation of your own property. Please contact Phillips George to arrange a convenient appointment on 01162168178.
BUYING TO LET? Phillips George are expert, ARLA qualified letting agents with experience of all kinds of rental property across city and county. Should you need a rental valuation for your new property or on any of your existing portfolio, or simply want some advice on the current rental market, call us now on 01162168178.
DISCLAIMER & IMPORTANT INFORMATION Phillips George Sales & Lettings for themselves and the vendors of this property whose agents they are, give notice that these particulars are not to be relied upon as a statement or representation of fact and do not constitute any part of an offer or a contract. Intending purchasers must satisfy themselves by inspection or otherwise as to the correctness of each and any statements contained in these particulars. The vendors do not make or give and neither do Phillips George Sales & Lettings (nor any person in their employment) have authority to make any representation or warranty whatsoever in relation to the property.
None of the services, systems or appliances listed or shown in this specification have been tested by us and no guarantee as to their operating ability or efficiency is given. All floorplans and dimensions have been provided as a guide for prospective buyers only, and should not be relied on as a true representation.
Current money laundering regulations require us to confirm proof of identity and residency of anyone intending to purchase. We ask for your co-operation in providing the necessary documentation in order to avoid delays in agreeing the sale.

This property is marketed by

Phillips George Estate Agents - Wigston, Leicester, LE18
4.9/5 Rating
(42) reviews
Agent Statistics (Based on 42 Reviews) :