The UK's Largest Customer Review Website for the Property Industry
The UK's Largest Customer Review Website for the Property Industry
Back to Property Listings
Stoke Rivers, Barnstaple
An exceptional and individual property finished to an uncompromising standard, offering a breathtaking 54` open-plan living space with vaulted ceilings, four double bedrooms, extensive outbuildings, generous parking, and a five-acre paddock - creating a truly rare and versatile lifestyle opportunity.
We are delighted to present this outstanding and highly individual residence, a home that effortlessly exudes charm, character, and quality throughout.
Properties of this calibre are rarely available, and the attention to detail evident in every aspect ensures that an internal viewing is essential to fully appreciate the scale, design, and refinement on offer.
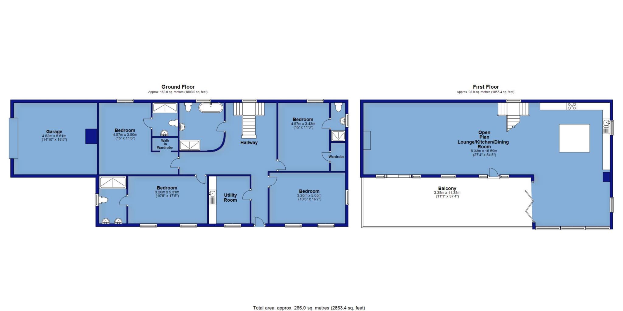
Higher Birch Farmhouse is a striking split level detached residence with the accommodation being both generous and thoughtfully arranged. The ground floor features four spacious double bedrooms, three of which benefit from well-appointed en-suite facilities, alongside a beautifully finished family bathroom and a practical utility room.
This flexible layout lends itself perfectly to family living, multi-generational arrangements, or hosting guests while maintaining comfort and privacy.
Occupying the first floor is a truly breathtaking living environment. Spanning an impressive 54` x 27`, the L-shaped open-plan lounge, kitchen, and dining area forms the heart of the home.
Vaulted ceilings with exposed feature beams, expansive windows, and an abundance of natural light create a striking sense of space, while bi-fold doors open seamlessly onto a substantial 37` balcony with contemporary glass balustrades - an idyllic setting for entertaining or enjoying warm summer evenings.
Every aspect of this stunning residence has been carefully considered, resulting in a home that feels both luxurious and functional.
A superb range of outbuildings further enhances the property`s exceptional versatility, making it ideally suited to equestrian use, home-based businesses, workshops, or extensive storage requirements.
To one side of the property, accessed from the front driveway, is a substantial 44` x 20` garage/workshop. Beyond this lies a concrete yard, a 43` stable block, and an additional 44` x 20` outbuilding, offering excellent potential for a variety of uses and the option to link (to the garage) internally via a staircase if desired.
To the opposite side, block-paved areas provide ample parking and turning space, along with a further 18`5 x 14`10 garage fitted with an automatic electric door.
Externally, the property enjoys an attractive lawned frontage, complemented by an additional five-acre paddock located opposite, significantly enhancing both the lifestyle appeal and long-term versatility of this remarkable home.
Location
Nestled in the heart of North Devon, just a short drive from the bustling market town of Barnstaple, Stoke Rivers is a charming and picturesque village that perfectly balances rural tranquillity with everyday convenience.
Set amid rolling Devonshire countryside, the village offers an enviable setting of open fields, gentle woodlands, and scenic lanes, making it a haven for walkers, cyclists, and nature enthusiasts alike.
Despite its peaceful, rural atmosphere, Stoke Rivers enjoys excellent connectivity.
Barnstaple, the regional centre of North Devon, provides a wide range of shops, supermarkets, restaurants, and professional services, as well as excellent leisure and cultural amenities. The town also benefits from strong transport connections, including nearby rail links at Barnstaple railway station, easy access to the A39 North Devon Link Road, and onward routes to the M5 motorway, making commuting or exploring the wider South West highly convenient.
The village itself exudes traditional charm, featuring period cottages, friendly community spaces, and a welcoming pub nearby, fostering a strong sense of community. Families benefit from well-regarded local schools, while everyday conveniences - including post office services, recreational facilities, and local transport links - are all within easy reach.
Stoke Rivers presents a rare combination of idyllic countryside living with practical accessibility, making it one of North Devon`s most desirable and sought-after locations for those seeking both tranquillity and connectivity.
Need To Know
Mains electricity & water
Private septic tank drainage
Underground Propane gas cylinder serving the underfloor heating
Ultra fast broadband available up to 900 mbps.
Directions
From the traffic lights on Bear Street in Barnstaple, proceed on Goodleigh Road for approximately 4 miles, turning right at Chelfham Cross (signposted for Stoke Rivers & Brayford). Continue under the bridge & through Stoke Rivers (approximately 2 miles) & after passing through the village of Stoke Rivers, the lane (not signposted) leading to Higher Birch Farm will be found after approximately 0.4 miles on the left. Passing Lane End Farm on the right, continue down the track & after following the track around to the right, Higher Birch Farm will be found off to the left hand side.
what3words /// playful.computers.whizzing
Notice
Please note we have not tested any apparatus, fixtures, fittings, or services. Interested parties must undertake their own investigation into the working order of these items. All measurements are approximate and photographs provided for guidance only.
Council Tax
North Devon District Council, Band E
Utilities
Electric: Mains Supply
Gas: None
Water: Mains Supply
Sewerage: Private Supply
Broadband: FTTC
Telephone: None
Other Items
Heating: Under Floor Heating
Garden/Outside Space: Yes
Parking: Yes
Garage: Yes

Agent Statistics (Based on 0 Reviews) :