The UK's Largest Customer Review Website for the Property Industry
The UK's Largest Customer Review Website for the Property Industry
Back to Property Listings
Stocks Road, Aldbury
DESCRIPRION
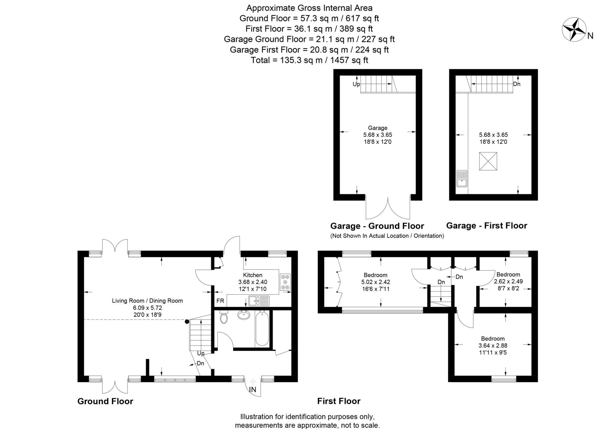
Set in one of Hertfordshire`s most sought-after villages, The Coach House is a charming Grade II listed residence that beautifully blends period character with contemporary living. Tucked away in a peaceful location in the picturesque village of Aldbury, this exceptional home enjoys breathtaking views over rolling countryside. A key feature of the property is the versatile outbuilding, currently a garage, with significant potential for conversion into additional accommodation, a valuable home office, studio, or guest suite. With a staircase already in place, it offers a rare opportunity to tailor the space to your specific lifestyle needs. Inside, the home is equally impressive. Striking full-height windows with classic brick arches bathe the vaulted sitting and dining room in natural light, creating a bright and welcoming space ideal for both relaxation and entertaining. The recently updated kitchen is thoughtfully designed, combining modern style with everyday practicality. A sleek ground-floor bathroom suite adds both comfort and convenience. The inviting entrance hall enhances the sense of space, while upstairs, three well-proportioned bedrooms provide generous accommodation. Outside, the enclosed private garden offers a peaceful retreat, perfect for alfresco dining or enjoying the quiet surroundings. A private driveway adds further seclusion and practicality. Blending historical charm with modern convenience, The Coach House is a rare gem in the heart of Aldbury. With local amenities, excellent transport links, and countryside walks all within easy reach, this is a truly special home in one of Hertfordshire`s most desirable villages. Viewing is highly recommended to fully appreciate the potential and lifestyle on offer.
SITUATION
Aldbury, famed for its pond and stocks, is one of the area`s most historic and sought after villages, nestling at the foot of the Chiltern Hills, within a designated Area of Outstanding Natural Beauty. The village centre is within a short walk and offers two popular public houses, church, pre-school, primary school, recreation ground, village hall and shop with post office. The historic market towns of Tring and Berkhamsted are within easy reach and provide a variety of quality shops, banks and restaurants. For those commuting by rail, London Euston can be reached in less than 36 minutes from Tring mainline station (1 mile away), whilst those travelling by car can access the M25 via the A41 dual carriageway to the south of Tring and from there the national motorway network and international airports.
LOCAL AUTHORITY
Dacorum Borough Council
VIEWING
By appointment with Cesare & Co, 48 High Street, Tring, Hertfordshire, HP23 5AG.
IMPORTANT NOTICE
Although these particulars, together with any photographs and/or any floor plans, are intended to give a fair description of the property, they do not constitute any offer or any part of a Contract. The Vendors, his Agents, Cesare & Co and persons in the employment do not give any warranty whatever in relation to this property. All measurements are approximate. Any appliances and/or services mentioned within these particulars have not been tested or verified by the Agent. All negotiations should be conducted through Cesare & Co.
what3words /// risks.bluff.locked
Notice
Please note we have not tested any apparatus, fixtures, fittings, or services. Purchasers must undertake their own investigation into the working order of these items. All measurements are approximate and photographs provided for guidance only.
Council Tax
Dacorum Borough Council, Band F
Utilities
Electric: Mains Supply
Gas: None
Water: Mains Supply
Sewerage: Mains Supply
Broadband: FTTC
Telephone: Unknown
Other Items
Heating: Oil Central Heating
Garden/Outside Space: Yes
Parking: Yes
Garage: Yes

Agent Statistics (Based on 9 Reviews) :