The UK's Largest Customer Review Website for the Property Industry
The UK's Largest Customer Review Website for the Property Industry
Back to Property Listings
Stirlings Road Wantage
A prestigious apartment set in the heart of Wantage market town on a development of ten private dwellings featuring well planned and generous accommodation. The kitchen is well equipped with white goods and the bathroom features a separate shower cubicle too. Parking for one vehicle is allocated and the communal gardens also include covered cycle stores at the rear. Gas fired central heating and double glazing will keep you cosy in winter.
The property is within easy walking distance of Wantage Library, Waitrose Supermarket and a host of other local amenities as well as being ideally located for Didcot Parkway Railway Station, Milton Park Industrial Estate and the Diamond Project at Harwell.
Pets: Not allowed
Smoking: Not permitted inside the property
Children: Not suitable
EPC: EER = 80 - 80
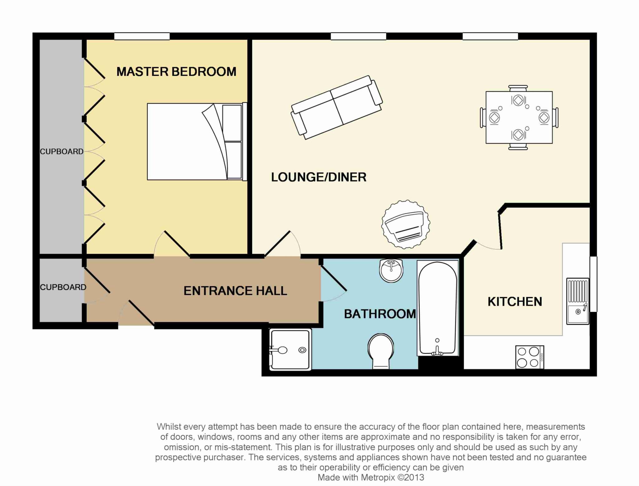
Entrance Hall
With security entry telephone
Sitting Room - 5.59m (18'4") Max x 3.56m (11'8") Max
With laminate flooring and bay window
Kitchen - 3.26m (10'8") x 2.25m (7'5")
A well appointed room fitted with white goods
Bedroom One - 3.54m (11'7") x 3.25m (10'8")
With fitted carpet and extensive wardrobes
Family Bathroom
Comprising a white suite with seperate shower cubicle
Directions
From Wantage Market Place, proceed on foot towards Reading on the A417, pass Waitrose on your left hand side and turn left towards Waitrose car park on Stirlings road. Saxon House will be found on your right hand side.
what3words /// books.take.divisible
Notice
All photographs are provided for guidance only.
Redress scheme provided by: Property Redress Scheme (PRS027066)
Client Money Protection provided by: My Deposits (20015916)
Council Tax
Vale Of White Horse District Council, Band B
Utilities
Electric: Mains Supply
Gas: Mains Supply
Water: Mains Supply
Sewerage: None
Broadband: None
Telephone: None
Other Items
Heating: Gas Central Heating
Garden/Outside Space: Yes
Parking: Yes
Garage: No

This property is marketed by

Abbey Group Property Management - Oxford, Oxford, OX12
4.5/5 Rating
(10) reviews
Agent Statistics (Based on 10 Reviews) :