The UK's Largest Customer Review Website for the Property Industry
The UK's Largest Customer Review Website for the Property Industry
Back to Property Listings
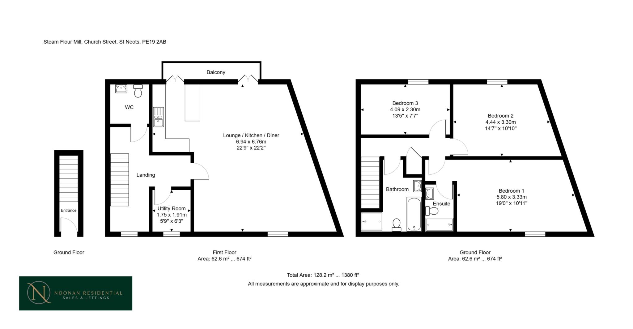
Steam Flour Mill, St Neots
Spacious, light, bright, modern and stylish 3 bedroom duplex Coach House is located in the heart of a small development, overlooking the brook in St Neots. The property is set over two floors measuring approx.1,367 sqft of living space and comprises: entrance door with stairs rising to landing with storage cupboard. Stairs to second floor and doors to, the spacious open plan kitchen/lounge/diner. The kitchen area benefits from quality fitted kitchen and floor level mood lighting, integrated appliances, including oven, hob and extractor, fridge/freezer and dish washer. Doors opening onto a roomy balcony which has stunning views overlooking the brook. Separate cloak room and utility room. Upstairs, doors leading to: family bathroom with bath and separate shower, three piece suite and three good size double bedrooms. En-suite Shower Room to Main Bedroom. Outside: there is a car port beneath, with access behind to the bin, bike and private store rooms. Furthermore the development has use of a private boat dock area, located within the original Mill. Available May 2025
EPC Rating C
Council Tax Band C
Room Dimensions:
Kitchen/Lounge/Diner: 21ft 7ins x 22ft 3ins
Utility Room: 6ft 4ins x 5ft 9ins
Cloakroom: 5ft 9ins x 5ft 11ins
Bathroom: 8ft 10ins x 5ft 9ins (min)
Bedroom(3): 7ft 6ins x 13ft 5ins
Bedroom (2): 15ft 3ins x 10ft 9ins
Master Bedroom: 20ft 10ins x 10ft 11ins
En-suite: 4ft 3ins x 7ft
Notice
All photographs are provided for guidance only.
Redress scheme provided by: Property Ombudsmen (T00533)
Client Money Protection provided by: Propertymark (C0129770)
Utilities
Electric: Mains Supply
Gas: Mains Supply
Water: Mains Supply
Sewerage: Mains Supply
Broadband: Cable
Telephone: Landline
Other Items
Heating: Gas Central Heating
Garden/Outside Space: No
Parking: Yes
Garage: No

This property is marketed by

Noonan Crane Property Management - St Neots, St Neots, PE19
4/5 Rating
(12) reviews
Agent Statistics (Based on 12 Reviews) :