The UK's Largest Customer Review Website for the Property Industry
The UK's Largest Customer Review Website for the Property Industry
Back to Property Listings
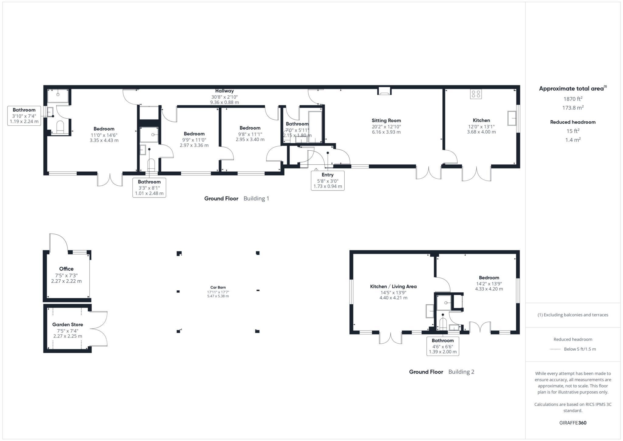
Station Road, Quainton
Set against the tranquil backdrop of a picturesque Buckinghamshire village, this exceptional four-bedroom barn conversion combines timeless countryside character with modern elegance. Every detail has been thoughtfully curated to celebrate the building`s original features while ensuring the highest standards of comfort and style.
Once part of the original Station Road Farm - dating back to before the 17th century - The Old Dairy was formerly the farm`s cowshed. The building sits beside the main farmhouse, forming part of the original farmstead and offering a rare connection to the area`s rural heritage. Following the farm`s division into separate properties in 2006, The Old Dairy was purchased as a converted shell by its current owners, who became its first residential occupants. Since then, they have lovingly transformed the space, infusing it with warmth, character, and a strong sense of home.
The property enjoys uninterrupted views over the adjacent paddocks and fields, which are designated protected green spaces under the Quainton Neighbourhood Development Plan. These safeguards ensure that the stunning countryside outlook remains preserved for generations to come.
Life at The Old Dairy
There`s a particular kind of magic to life at The Old Dairy - one that reveals itself in quiet moments and everyday rituals. In winter, the heart of the home is the cosy lounge, where the warmth of the log burner fills the room and flickering flames dance across the beams, inviting you to curl up with a book or share stories by the fire.Throughout the house and the lodge, every window frames a view of the garden. It feels like living in a green oasis - private, peaceful, and completely tucked away from the outside world. Yet just beyond the garden, the paddock opens out to wide skies and distant views of the Chilterns. It`s here, at the end of the day, that a future owner could find themselves sitting as the sun sets, fire lit, watching the stars appear in silence. Guests who stay in The Cwtch, the charming annex, always say the same thing: it feels like a holiday. There`s something about the space that`s restful and uplifting - a little retreat that`s part of the property but offers its own sense of escape
.
Working from home at The Old Dairy can be a joy, with peaceful spots to focus in the study or the lodge - spaces that offer that rare mix of productivity and calm.
Everyday life here is full of small luxuries, from hotel-style bathrooms that elevate morning routines, to thoughtful design touches throughout the garden and home. There`s a water feature inspired by sculptor William Pye, and a criss-crossed Belgian Fence trained from ivy cuttings sourced from the national collection. As the sun goes down, carefully placed garden lighting transforms the outdoor space into something quietly magical. The Old Dairy holds the character and charm of its 17th-century origins - exposed beams, a sense of history - but with all the ease and comfort of a modern home. It`s a place with soul, beautifully balanced between heritage and contemporary living.
Major Improvements
These represent just some of the major improvements made to the property by the current owners - there are many other thoughtful upgrades throughout the home and garden that reflect the care and attention invested over the years:
Sitting Room
? Installation of painted wooden shutters to double doors and windows
? Built-in shelving with lighting and radiator cover
? Morso log-burning stove, flue, and stone hearth (with planning permission)
? Remote control solar Velux blind
? Decorating with scrubbable wall paint
Entrance Hall
? Full upgrade to alarm system with remote capabilities
? Remote CCTV system
? Coir matting
? Fit-out of entrance hall cupboard
Main Bathroom
? Full refit of bathroom
? Installation of pulley drying rack
Study / Bedroom
? Installation of built-in storage unit with library ladder
? Decorating with scrubbable wall paint
Hallway
? Fit-out of laundry cupboard (and removal of boiler from inside house)
? Decorating with scrubbable wall paint
Guest Bedroom
? Decorating with scrubbable wall paint
Master Bedroom
? Decorating with scrubbable wall paint
Master Ensuite
? Refit of bathroom with built-in storage unit
Kitchen
? Installation of painted wooden shutters to double doors
? Decorating with scrubbable wall paint
Annex
? Installation of painted wooden shutters to both double doors and all windows
? Kitchen fit-out
? Full boarding of loft and installation of loft ladder
Garden
? Installation of William Pye inspired water feature
? Creation of brick raised beds with pleached hornbeam trees and new patio
? Installation of garden lodge (Crane`s Sheds), with partition, insulation, and internal cladding in Western redwood cedar (with planning permission)
? Replacement of internal boiler with a Grant external boiler (with planning permission)
? Replacement of oil tank with slimline double-bunded tank (with planning permission)
? Installation of Belgian fence
? Planting of Himalayan birch trees and all garden beds
? Western redwood cedar cladding to fences
? Metal edging to lawn
? Custom cedar-clad log store
? Low-voltage garden lighting
? Installation of Wise Boxes for remote control of lighting and water feature
Paddock
? Replacement of post and rail fencing using 25 year post saver wraps on posts
Location
Quainton is a quintessential English village nestled in the rolling countryside of Buckinghamshire, just approximately 45 miles north-west of London. The area offers ample opportunities for outdoor activities, such as walking, cycling, and exploring the natural beauty of the area with the benefit of excellent rail communication links to London Marylebone within an hour via Chiltern Railways, and easy access to the national motorway network via the M40 and A41.Steeped in rural charm and history, it offers a tranquil escape from the hustle and bustle of modern life. The village is known for its traditional English character, with thatched cottages, period houses, and a leafy village green that give it a timeless, storybook feel. One of the standout features of Quainton is the Quainton Windmill, a beautifully restored 19th-century structure that stands as a proud local landmark and offers panoramic views of the surrounding landscape. The Quainton Railway Centre is another highlight, drawing railway enthusiasts from far and wide with its collection of vintage locomotives and heritage train rides. The parish church, with its striking architecture and centuries-old history, adds to the village`s cultural and historical significance. Quainton also benefits from a strong community spirit, with a local pub, a village school, shop, coffee shop, and seasonal recreational and sporting events that bring residents and visitors together. Conveniently located near the county town of Aylesbury, making it easy to access modern amenities while still enjoying the serenity of village living. There is a wide selection of excellent local schools, both state and independent. The highly regarded Waddesdon Church of England Secondary School is just 3 miles away, while Aylesbury`s renowned Grammar Schools, as well as Ashfold, Swanbourne House, and Stowe School, are all within easy reach.
Additional information
EPC rating D
Flood risk (according to Gov.uk website)
Surface water - Very Low
Rivers and the sea - Very low
Flooding from groundwater is unlikely in this area.
Flooding from reservoirs is unlikely in this area.
Covenants: The vendor has not made us aware of any known covenants nor restrictions relating to the property.
Broadband type: Cable
Standard - Highest Download 16 Mbps Highest Upload 1 Mbps
Superfast Highest Download 80 Mbps Highest Upload 20 Mbps
Ultrafast - Highest Download 330 Mbps Highest Upload 50 Mbps
Networks in your area: Openreach
See Ofcom checker for more details
Notice
Please note we have not tested any apparatus, fixtures, fittings, or services. Interested parties must undertake their own investigation into the working order of these items. All measurements are approximate and photographs provided for guidance only.
Council Tax
Buckinghamshire Council, Band F
Utilities
Electric: Mains Supply
Gas: Unknown
Water: Mains Supply
Sewerage: Mains Supply
Broadband: Cable
Telephone: Landline
Other Items
Heating: Not Specified
Garden/Outside Space: Yes
Parking: Yes
Garage: No

Agent Statistics (Based on 1 Reviews) :