The UK's Largest Customer Review Website for the Property Industry
The UK's Largest Customer Review Website for the Property Industry
Back to Property Listings
Station Rd, Colyton, Devon
A three-bedroom link detached cottage with courtyard garden, situated on the outskirts of the pretty and historic small town of Colyton, East Devon. Lea Combe Cottage does require some updating and redecoration but it could be a perfectly charming cottage with a bit of TLC and is offered for sale with the added bonus of no onward chain. The property also benefits from a long, attached garage, which provides a very useful workshop/store or could potentially be adapted to provide additional ground floor accommodation, if desired (subject to consents). On the first floor of the cottage are three double bedrooms, one with en-suite shower room and a family bathroom. On the ground floor is a dual aspect living room with French doors to the rear garden, a separate dining room, kitchen and w.c. The sunny, enclosed rear garden faces south-west and allows rear access to the garage/workshop. Windows are a mixture of double and single glazed and there is gas central heating throughout. The cottage is close to the Seaton/Colyton tramway and only around 500 metres walk from the centre of the town.
Colyton is a pretty and historic town with a village feel with a range of local facilities including health centre, library, butcher`s, baker, convenience stores, fish and chip shop, pubs, tea rooms, a garden centre and a variety of small shops and services. The beautiful Norman Church is the centre point of the town, which is most famous for the 1685 Monmouth Rebellion. On the edge of the town is the Seaton tramway station which operates services throughout the summer along the Axe Estuary, linking Colyton and Seaton, which is very popular with tourists. The nearby Colyton Grammar School is another draw for the area as the school consistently appears in the top 10 Grammar Schools in the country. The Jurassic Coast and pretty harbour at Axmouth is just 2 miles away, with the seaside resort of Lyme Regis to the east, just 7 miles and Sidmouth to the west just under 11 miles.
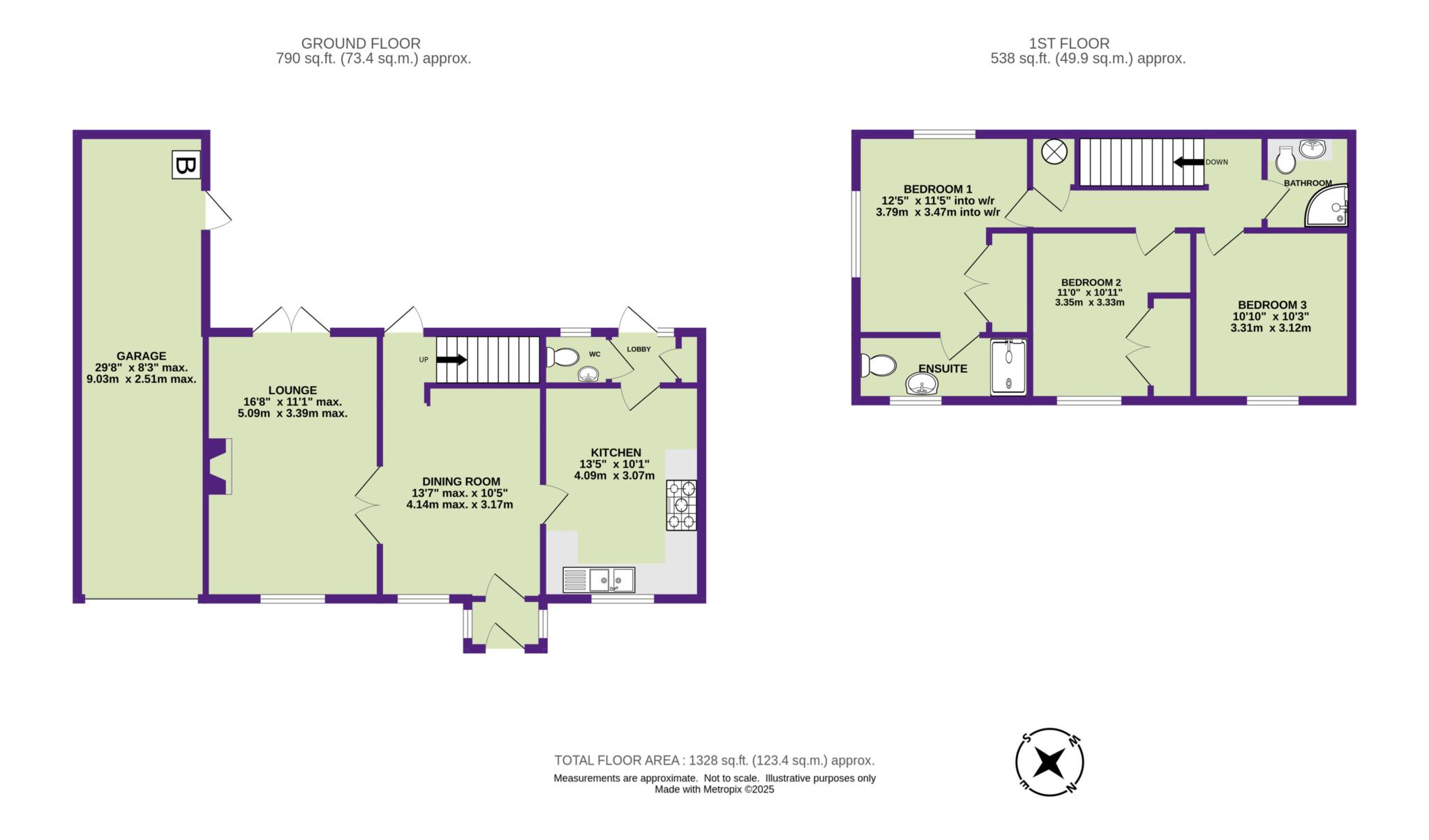
The accommodation, all measurements approximate, comprises:
GROUND FLOOR
PORCH
Enclosed entrance porch with windows to both sides and uPVC double glazed front door. Half-glazed, wooden door to
DINING ROOM - 4.14m (13'7") x 3.17m (10'5")
Window to front. Radiator. Door (currently un hinged) to rear lobby & stairs. Double doors to lounge and door to kitchen. Smoke detector.
REAR LOBBY
Glazed door to garden. Stairs rising to first floor (with stair lift fitted).
LOUNGE - 5.09m (16'8") x 3.39m (11'1")
Window to front. French doors to rear garden. Slate hearth fireplace fitted with wood burning stove. Two radiators. Two TV points. Wall-mounted cupboard housing electricity consumer unit & gas meter.
KITCHEN - 4.09m (13'5") x 3.07m (10'1")
Window to front, looking out onto the lane & holly tree. The cottage-style kitchen is fitted with a range of wall and base units with solid wood & granite work surfaces and inset double Butler sink & drainer. Gas fired Rangemaster (Classic 110) cooker with double oven, grill and extractor hood above. Space and plumbing for dishwasher and fridge freezer. TV point. Radiator. Ceramic tiled floor.
LOBBY
Window to rear. Shallow store cupboard with hooks and shelves. Double glazed door to garden and door to
W.C.
Window to rear. Fitted with a white suite comprising w.c. and wall-mounted wash hand basin. Radiator. Ceramic tiled floor.
FIRST FLOOR
LANDING
Window to rear. Airing cupboard housing factory lagged hot water cylinder with slatted shelving above. Timer controls for central heating/hot water. Hatch to insulated, part boarded loft with pull down ladder and light. Smoke detector.
BEDROOM ONE - 3.79m (12'5") x 3.47m (11'5") Into Wardrobe Recess
Windows to rear and side overlooking country lane and surrounding homes. Built-in wardrobes. Radiator. Door to
EN SUITE - 3.38m (11'1") x 1.25m (4'1") Into Recess
Obscure glazed window to front. Fitted with a white suite comprising separate shower cubicle, w.c. and pedestal wash hand basin. Ladder style chrome radiator. Ceramic tiled floor.
BEDROOM TWO - 3.35m (11'0") Into Wardrobe Recess x 3.33m (10'11")
Window to front. Built-in wardrobes. Radiator.
BEDROOM THREE - 3.31m (10'10") x 3.12m (10'3")
Window to front. Telephone point. Radiator.
BATHROOM
Obscure glazed window to rear. Fitted with a cream suite comprising separate shower cubicle, w.c. (recessed cistern) and wash hand basin set into base unit with cupboards below. Radiator. Tiled floor.
OUTSIDE
At the front of the house are two curved gravelled beds planted with Hydrangeas and a mature Holly tree. Attached to one side of the cottage is the
GARAGE/WORKSHOP - 9.03m (29'8") x 2.51m (8'3")
Electric roller door to front. Side pedestrian door to back garden. Power and light. Eaves storage.
Wall-mounted Vaillant gas boiler. Space and plumbing for washing machine.
GARDEN
The rear courtyard garden is fully enclosed by a high stone wall. Paved and gravelled with border planting, a couple of mature shrubs and wall climbers. South-west facing. Outside tap.
TENURE
Freehold
SERVICES
All mains services are connected. Gas fired central heating. Water is metered.
COUNCIL TAX
Band E. East Devon District Council ?2963.74 (2024/25).
EPC RATING
D
BROADBAND
Broadband availability at this location can be checked through: https://checker.ofcom.org.uk/
MOBILE COVERAGE
Mobile coverage can be checked through: https://checker.ofcom.org.uk/en-gb/mobile-coverage
FLOOD RISK
Flood risk Information can be checked through the following: https://www.gov.uk/check-long-term-flood-risk
what3words /// uses.judge.punctual
Notice
Please note we have not tested any apparatus, fixtures, fittings, or services. Interested parties must undertake their own investigation into the working order of these items. All measurements are approximate and photographs provided for guidance only.
Utilities
Electric: Mains Supply
Gas: Mains Supply
Water: Mains Supply
Sewerage: Mains Supply
Broadband: None
Telephone: None
Other Items
Heating: Gas Central Heating
Garden/Outside Space: Yes
Parking: Yes
Garage: Yes

Agent Statistics (Based on 21 Reviews) :