The UK's Largest Customer Review Website for the Property Industry
The UK's Largest Customer Review Website for the Property Industry
Back to Property Listings
Star Road, Caversham
Masons are proud to offer to the market this very well presented and extended three bedroom bay fronted Victorian terrace house, located in Caversham and within a short walk or Caversham & reading centres, along with Reading mainline station. Having been fully refurbished in recent years the property benefits from 13ft living room into bay window with wood burning stove, a 14ft open plan kitchen breakfast room that opens to a 14ft dining area with French doors to the garden. Further benefits include a downstairs cloakroom/utility room, a 14ft master bedroom, a family bathroom, a large well-tended garden, a large timber shed and allocated parking. Viewing recommended.
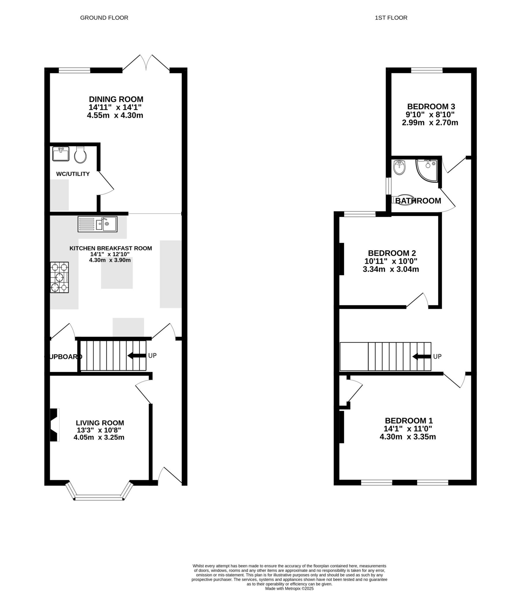
Front door to entrance hall, which has the stairs to the first floor and doors to:
Living room: 13`3" x 10`8" into double glazed bay window and feature fireplace with wood burning stove.
Kicthen breakfast room: 14`1" x 12`10" a modern range of eye and base level units, an island, integrated oven, hob and extractor, space and plumbing for additional appliances and opening to:
Dining room: 14`11" x 14`1" double glazed rear aspect and French doors to the garden.
Utility/cloakroom: low level wc, wash basin and plumbing and space for appliances.
First floor landing has door to:
Bedroom 1: 14`1" x 11`0" twin double glazed front aspect, feature fireplace and built-in wardrobe.
Bedroom 2: 10`11" x 10`0" double glazed rear aspect, feature fireplace.
Bedroom 3: 9`10" 8`10" double glazed rear aspect.
Family bathroom: double glazed rear aspect, shower cubicle, low level wc and wash basin.
Outside: To the front there is a magnolia tree and path leading to the front door. To the rear there is large garden which is mainly laid to law, with a variety of plants, shrubs and plum and apple trees, with a large timber workshop/storage shed at the back of the garden which leads to the allocated off road parking.
Notice
Whilst every care has been taken in the preparation of these particulars, and they are believed to be correct, they are not warranted and intending purchasers/lessees should satisfy themselves as to the correctness of the information given.Please note we have not tested any apparatus, fixtures, fittings, or services. Interested parties must undertake their own investigation into the working order of these items. All measurements are approximate and photographs provided for guidance only.
Council Tax
Reading Borough Council, Band C
Utilities
Electric: Unknown
Gas: Unknown
Water: Unknown
Sewerage: Unknown
Broadband: Unknown
Telephone: Unknown
Other Items
Heating: Not Specified
Garden/Outside Space: Yes
Parking: Yes
Garage: No

Agent Statistics (Based on 72 Reviews) :