The UK's Largest Customer Review Website for the Property Industry
The UK's Largest Customer Review Website for the Property Industry
Back to Property Listings
Star Road, Caversham
Masons are proud to offer to the market this attractive bay fronted Victorian three bedroom terrace house, located in Caversham and within walking distance to Caversham & Reading centres, along with Reading mainline station. The property benefits from sitting room, a dining room with storage cupboard, a fitted modern kitchen, a downstairs bathroom. Further benefits include three good sized bedrooms, double glazing and gas central heating and a private rear garden. Viewing recommended.
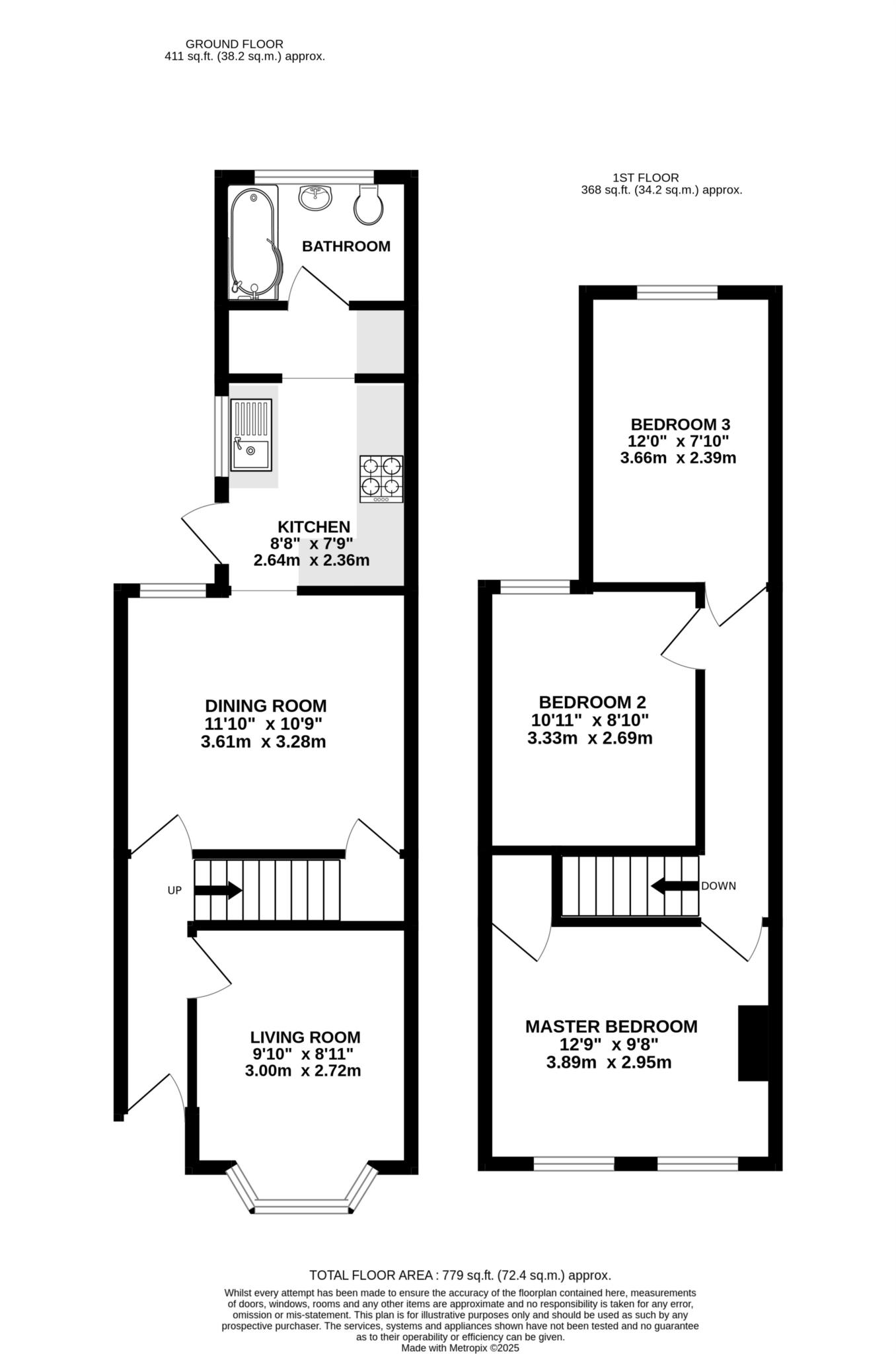
Front door to entrance hall has the stairs to the first floor and doors to:
Sitting room: 9`10" x 8`11" into double glazed bay window.
Dining room: 11`10" x 10`9" double glazed rear aspect, cupboard under the stairs and opening to:
Kitchen: 8`8" x 7`9" double glazed side aspect, a range of eye and base level units with roll edge tops and tiled surround, sink and drainer, space for oven and plumbing & space for additional appliances. Door to the rear garden and opening to an outer lobby which in turn gives access to:
Bathroom: double glazed rear aspect. a panel enclosed bath with shower over, a low level wc and wash basin.
First floor landing has doors to:
Bedroom 1: 12`9" x 9`8" twin double glazed front aspect, built-in cupboard.
Bedroom 2: 10`11" x 8`10" double glazed rear aspect.
Bedroom 3: 12`0" x 7`10" double glazed rear aspect.
Outside: to the rear there is a private garden, which is mainly laid to lawn, with a variety of plants and shrubs, all enclosed by timber fencing.
Notice
Whilst every care has been taken in the preparation of these particulars, and they are believed to be correct, they are not warranted and intending purchasers/lessees should satisfy themselves as to the correctness of the information given.Please note we have not tested any apparatus, fixtures, fittings, or services. Interested parties must undertake their own investigation into the working order of these items. All measurements are approximate and photographs provided for guidance only.
Council Tax
Reading Borough Council, Band C
Utilities
Electric: Unknown
Gas: Unknown
Water: Unknown
Sewerage: Unknown
Broadband: Unknown
Telephone: Unknown
Other Items
Heating: Not Specified
Garden/Outside Space: No
Parking: No
Garage: No

Agent Statistics (Based on 72 Reviews) :