The UK's Largest Customer Review Website for the Property Industry
The UK's Largest Customer Review Website for the Property Industry
Back to Property Listings
St. Leonards Road, Clarendon Park, Leicester
A two bedroom Victorian terrace home located in the heart of the popular and fashionable suburb of Clarendon Park, now in need of extensive refurbishment. Viewing advised to appreciate the potential.
Location - Clarendon Park is located south of Leicester, with local day-to-day shopping and an abundance of trendy bars and restaurants found along the fashionable Queens Road. The city centre with its professional quarters, mainline railway station, Leicester University and Royal Infirmary are just a short distance away across Victoria Park and down the leafy New Walk, and popular schooling is available within the area.
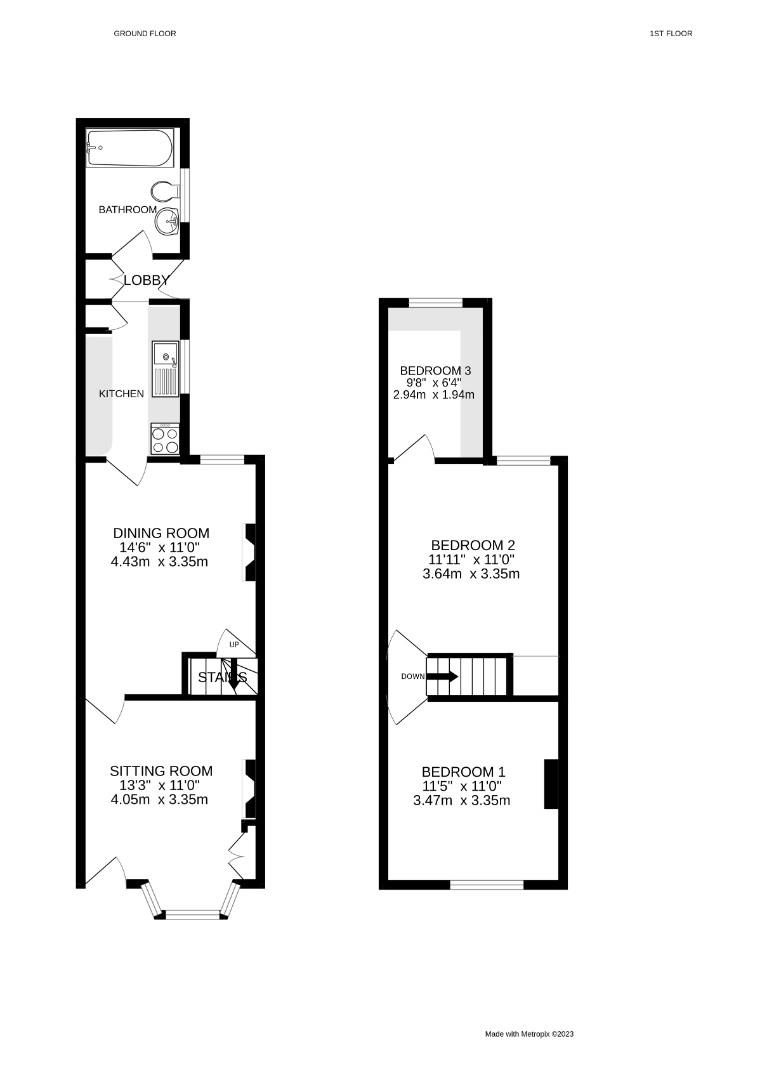
Accommodation - The property is entered via a wooden door leading into the front reception room, having a single glazed bay sash to front elevation, a feature fireplace surround with an inset fire, ceiling coving and rose, built-in meter cupboard and wooden flooring. The rear reception room has a single glazed sash window to the rear elevation, a wall mounted gas fire, wooden flooring and houses the stairs to the first floor with an understairs alcove beneath. The kitchen has a window to the side elevation, a range of eye and base level units with drawers and worktops, a stainless steel sink and drainer unit, a freestanding oven, plumbing for automatic washing machine and a door into a lobby with a door to the side giving access to the ground floor bathroom, having a double glazed window to the side elevation and providing a white three piece suite comprising an enclosed WC, a 'P' shaped bath with glazed shower screen and shower over and a pedestal wash hand basin, a chrome heated towel rail, part tiled walls, and tiled floor.
The stairs lead to a small landing. The master bedroom has a single glazed window to the front elevation and a feature fire surround. Bedroom two is also a double, having a built-in overstairs cupboard and a window to the rear elevation. Bedroom, three is accessed via bedroom two and has a window to the rear.
Outside - The property has a front courtyard. To the rear of the property is a very overgrown rear garden.
Tenure & Council Tax - Tenure: Freehold
Local Authority: Leicester City Council
Tax Band: B

This property is marketed by

James Sellicks Estate Agents - Leicester, Leicester, LE1
4.9/5 Rating
(270) reviews
Agent Statistics (Based on 270 Reviews) :