The UK's Largest Customer Review Website for the Property Industry
The UK's Largest Customer Review Website for the Property Industry
Back to Property Listings
St Johns Road, Reading
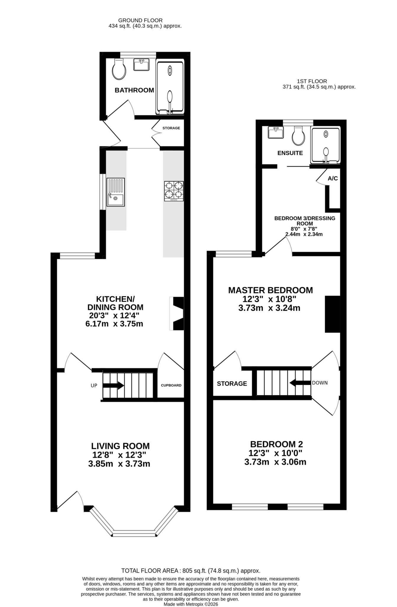
Masons are proud to offer to the market this bay fronted 2/3 bedroom Victorian terrace house, situated in Caversham and within a short walk to Caversham & Reading centres, along with Reading mainline station. The property is presented for sale in excellent condition throughout and has undergone recent improvements by the current owners including a reconfigured layout, improved downstairs bathroom and new first floor en-suite along with a new modern kitchen and a new boiler, to name but a few. The accommodation comprises of a 12ft bay fronted living room, a 20ft open plan kitchen/dining room, a modern family bathroom, a 12ft master bedroom, a 12ft second bedroom, an 8ft third bedroom/dressing room/office and a modern first floor en-suite. Further benefits include gas central heating, UPVC double glazing, a fully boarded loft space, an EPC rating of a C and a well maintained rear garden. VIEWING RECOMMENDED.
Front door opens into:
Living Room:
12`8" x 12`3"
Bay fronted, double glazed with stairs leading to the first floor landing and a door to...
Kitchen/Dining Room:
20`3" x 12`4"
Double glazed with a side and rear aspect, chimney breast with original cast iron fireplace, under stairs storage cupboard, fitted with a range of eye and base level modern units with tiled surround, sink with drainer, oven and gas hob with extractor above as well as space for further appliances.
A door from the kitchen leads to a hallway which boasts a storage/utility cupboard, a door to the garden and a door to...
Bathroom:
Double glazed with a rear aspect, fitted with a panel enclosed shower low level WC and hand wash basin.
The first floor landing boasts doors to...
Bedroom 2:
12`3" x 10`
Double glazed with a twin front aspect.
Master Bedroom:
12`3" x 10`8"
Double glazed with a rear aspect, chimney breast, storage cupboard and a door to...
Bedroom 3/Dressing Room/Office:
8` x 7`8"
Built in airing cupboard and a door to the en-suite.
En-suite:
Double glazed with a rear aspect, built in storage cupboard, panel enclosed shower, low level WC and hand wash basin.
Outside:
To the rear the property is mainly laid to lawn but boasts a large block paved patio area, two storage sheds and a covered side return all of which is enclosed by either timber fencing with gated access via an alleyway at the rear or a mature hedge. To the front the property boasts a small patio leading to the front door which is enclosed by a brick wall.
what3words /// sobs.forgot.rare
Notice
Whilst every care has been taken in the preparation of these particulars, and they are believed to be correct, they are not warranted and intending purchasers/lessees should satisfy themselves as to the correctness of the information given.Please note we have not tested any apparatus, fixtures, fittings, or services. Interested parties must undertake their own investigation into the working order of these items. All measurements are approximate and photographs provided for guidance only.
Council Tax
Reading Borough Council, Band C
Utilities
Electric: Mains Supply
Gas: Mains Supply
Water: Mains Supply
Sewerage: Mains Supply
Broadband: Unknown
Telephone: Unknown
Other Items
Heating: Gas Central Heating
Garden/Outside Space: Yes
Parking: No
Garage: No

Agent Statistics (Based on 72 Reviews) :