The UK's Largest Customer Review Website for the Property Industry
The UK's Largest Customer Review Website for the Property Industry
Back to Property Listings
St Johns Avenue, Purbrook
Welcome to St. John's Avenue in Purbrook. Situated within a very quiet avenue mainly of bungalows, this detached bungalow has a wealth of opportunity to develop especially to the side and rear and the possibility to create an annexe subject to planning permission.
Details - INTRODUCTION This home is ideal for a family with both Purbrook Park and South Downs College within walking distance plus good local transport connections. The property boasts a large frontage, a bright and airy entrance hall, two reception rooms, three bedrooms, a kitchen, a shower room, a detached garage and a raised decked terrace leading onto a large patio and the wrap round garden.
KERB APPEAL A large open frontage with a detached garage and a spacious block-paved driveway, offering ample off-road parking. Side gated access leads to the rear garden, two well-maintained lawns bordered by a selection of mature hedging and established plants
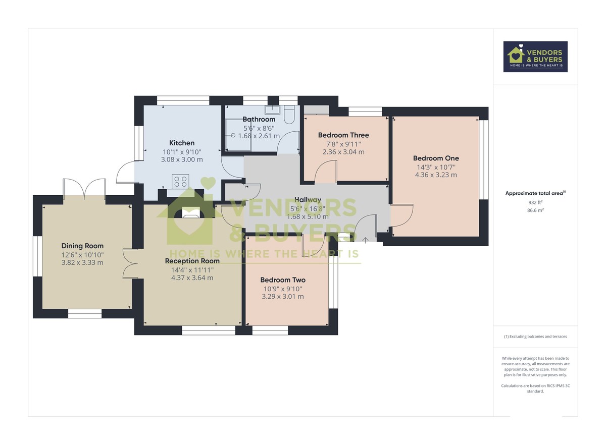
ENTRANCE HALL 16' 8" x 5' 6" (5.08m x 1.68m) A bright and spacious entrance hallway, beautifully presented with white décor and stylish LVT herringbone flooring. The smooth ceiling features discreet loft access, while a handy storage cupboard offers practical convenience. Doors lead seamlessly to all rooms, creating a welcoming and well-connected space
MASTER BEDROOM 14' 3" x 10' 7" (4.34m x 3.23m) Double glazed window to the side elevation, smooth ceiling, radiator, and ample space to create bespoke storage solutions
BEDROOM TWO 10' 9" x 9' 10" (3.28m x 3m) Dual aspect, double glazed windows to both the front and side elevations, smooth ceiling, radiator, and neutral carpet
BEDROOM THREE 9' 11" x 7' 8" (3.02m x 2.34m) To the rear elevation, there is a double glazed window allowing for ample natural light. The room features a grey carpet, a radiator, and built-in wardrobes offering practical storage space
SHOWER ROOM 8' 6" x 5' 6" (2.59m x 1.68m) Dual aspect double glazed windows to the rear elevation. Contemporary walk-in shower with glass screen, hand basin with under-sink storage, and low-level WC. Fully tiled floor and walls with a smooth finish ceiling
KITCHEN 10' 1" x 9' 10" (3.07m x 3m) A bright dual-aspect kitchen, bathed in natural light from double-glazed windows to the side and rear, and further enhanced by a double-glazed door opening directly onto the raised terrace, perfect for effortless indoor-outdoor living. At its heart, a stylish recessed range cooker is framed by bespoke side storage and overhead display shelving, creating a charming focal point. A selection of wall and base units offers ample storage, while the tiled flooring and smooth ceiling with recessed down-lights complete the space with a contemporary finish
RECEPTION ROOM ONE 14' 4" x 11' 11" (4.37m x 3.63m) Lovely family room featuring a cosy log burner, double-glazed window to the front elevation, smooth ceiling, and radiator. Stylish LVT herringbone flooring flows seamlessly through double casement doors into the second reception/dining room.
RECEPTION ROOM/DINING ROOM 12' 6" x 10' 10" (3.81m x 3.3m) This reception//dining area seamlessly blend into the outdoor space, with double-glazed windows on the front and side elevations allowing natural light to flood the room. Double-glazed patio doors lead directly onto the terrace, creating a fluid connection between the interior and exterior. The contemporary design is enhanced by neutral tones, clean lines, and minimalist furniture, offering a spacious and inviting atmosphere.
REAR GARDEN A raised stone patio leads down onto a large terrace with side access to the detached garage and a gate to the front of the property. The garden is mainly laid to lawn, complemented by a summer house and a large selection of mature planting. There is an enormous opportunity to extend the property to both the side and rear elevations.
GARAGE A detached old garage made from prefab blocks is in need of some attention. Whether it's a quick facelift or a full remodel or development STPP

This property is marketed by

Vendors and Buyers Ltd - Waterlooville, Cowplain, PO8
5/5 Rating
(104) reviews
Agent Statistics (Based on 104 Reviews) :