The UK's Largest Customer Review Website for the Property Industry
The UK's Largest Customer Review Website for the Property Industry
Back to Property Listings
St Anne`s Road, Caversham
Masons are proud to offer the market this attractive five bedroom Edwardian bay fronted semi detached, located in Caversham and short walk to Caversham centre, as well as Reading centre and mainline station. The property is presented in good condition throughout and benefits from a 16ft living room into bay window, 12ft reception 2, a utility room, a downstairs cloakroom and a large 15ft kitchen breakfast room with French doors to the garden. Further benefits include a 16ft master bedroom into bay window with an ensuite, a family bathroom, three further large double rooms and a single, a private rear garden and off road parking. Viewing recommended.
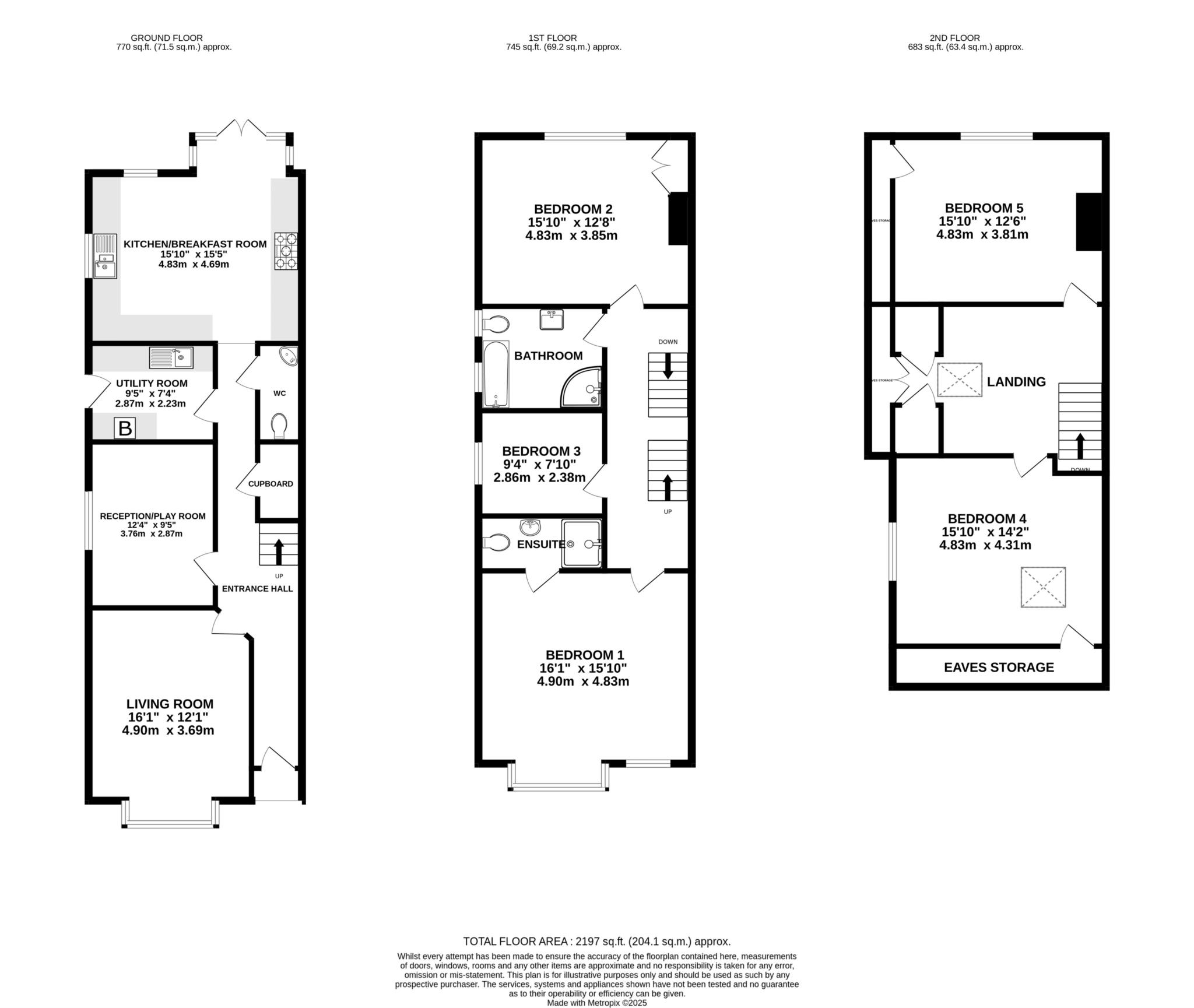
Front door to entrance which has the stairs to the first floor and doors to:
Living room: 16`1" x 12`1" into double glazed bay window.
Reception 2/Playroom: 12`4" x 9`5" double glazed side aspect.
Kitchen breakfast room: 15`10" x 15`5" double glazed rear aspect, a modern range of eye and base level units, a sink and drainer, integrated dishwasher, fridge & freezer, a range cooker & space for table and chairs. French doors to the garden.
Utility room: 9`5" x 7`4" range of eye and base level units with space & plumbing for appliances. Door to the side of the property.
Cloakroom: wc and wash basin.
First floor landing has the stairs to the second floor and doors to:
Bedroom 1: 16`1" x 15`10" into bay window. Door to:
Ensuite: shower cubicle, low level wc & wash basin.
Bedroom 2: 15`10" x 12`8" double glazed rear aspect, built-in wardrobe.
Bedroom 3: 12`4" 9`5" double glazed side.
Family bathroom: double glazed side aspect, bath, shower cubicle, wash basin and low level wc.
Second floor landing has a spacious landing area and doors to storage cupboard and eaves storage and doors to:
Bedroom 4: 15`10 x 14`2" double glazed side aspect, Velux window and eaves storage.
Bedroom 5: 15`10" x 12`6" double glazed rear aspect and eaves storage.
Outside: To the front there is off road parking and access to the side of the property. To the rear there is a good size garden that is mainly laid to lawn, with a variety of plants, shrubs, flowers & trees and a shingled seating area. Complete with a brick built outhouse.
Notice
Whilst every care has been taken in the preparation of these particulars, and they are believed to be correct, they are not warranted and intending purchasers/lessees should satisfy themselves as to the correctness of the information given.Please note we have not tested any apparatus, fixtures, fittings, or services. Interested parties must undertake their own investigation into the working order of these items. All measurements are approximate and photographs provided for guidance only.
Council Tax
Reading Borough Council, Band E
Utilities
Electric: Unknown
Gas: Unknown
Water: Unknown
Sewerage: Unknown
Broadband: Unknown
Telephone: Unknown
Other Items
Heating: Gas Central Heating
Garden/Outside Space: Yes
Parking: No
Garage: No

Agent Statistics (Based on 72 Reviews) :