The UK's Largest Customer Review Website for the Property Industry
The UK's Largest Customer Review Website for the Property Industry
Back to Property Listings
Springfield Road, Sydenham, London
LOCATION, LOCATION, LOCATION...
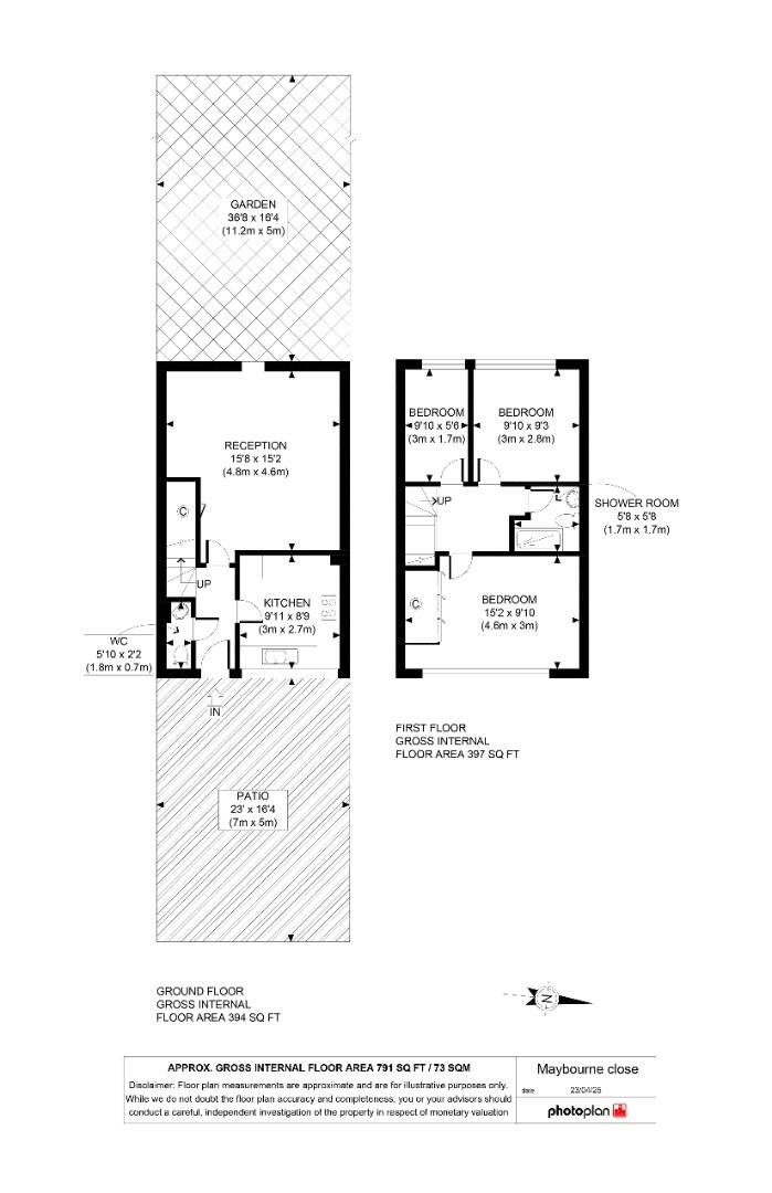
Propertyworld is proud to act as sole agents on this THREE bedroom mid terrace house with WEST FACING GARDEN & GARAGE. Located on a gorgeous & quiet residential cul de sac, hidden from view but literally minutes from CRYSTAL PALACE PARK and Sydenham High Street, the location is incredible. It's really hard to beat.
The property itself is spacious, with generous room sizes and beautifully proportioned accommodation throughout. Flooded in light, the house benefits from both front and back gardens and newly clad, the front elevation offers a handsome and welcoming outlook.
The details include: on the ground floor there is modern fitted kitchen to front with an extensive range of wall and base units, built in oven and hob, granite effect worktop, large double glazed window to front, plus all appliances, to rear is a wonderful lounge with large patio doors leading to the WEST FACING rear garden, fitted carpet and neutral decor. There is also a very handy downstairs W.C. On the first floor there are THREE BEDROOMS (2 dbs, 1 sgl) and a fabulous family bathroom.
The tranquil and beautifully tended WEST FACING garden in an oasis of calm , with a stone patio and mature raised lawn. The garage is offered in good condition with a recently installed door.
A mid century masterpiece looking for a new owner and available to view. Please call Propertyworld on 0208 488 0011 to be the first.
This has been the most absolutely wonderful home for the last 27 years, with memories that will be treasured forever. Situated in a Close where houses rarely become available, it is a really unique home situated in a safe, quiet, secluded, private road that is truly a sanctuary. The house has been truly loved from the day it was purchased in 1998 with much updating and TLC during that time. The house floods with natural light and the garden is a central feature being an extension of the sitting room with the visitation of very many varieties of birds - an actual woodpecker has been seen in the garden, usually heard, not seen! I have no doubt it will be a home equally loved and enjoyed by the new owners.

Agent Statistics (Based on 2767 Reviews) :