The UK's Largest Customer Review Website for the Property Industry
The UK's Largest Customer Review Website for the Property Industry
Back to Property Listings
Springfield Road, Gorleston
Bycroft Estate Agents are delighted to present this three bedroom, bay fronted mid terraced house situated in this extremely popular Gorleston location with a couple of minutes walk of the prestigious Marine Parade, beach and sea. The property offers spacious accommodation together with character features. Accommodation comprises entrance porch, lounge, dining room, kitchen, bathroom, first floor landing, three bedrooms (third off second), rear yard and garden, double glazing and gas central heating. The property has been recently redecorated throughout including new flooring and carpets.
Details - Bycroft Estate Agents are delighted to present this CHAIN FREE, three bedroom, bay fronted mid terraced house situated in this extremely popular Gorleston location with a couple of minutes walk of the prestigious Marine Parade, beach and sea. The property offers spacious accommodation together with character features. Accommodation comprises entrance porch, lounge, dining room, kitchen, bathroom, first floor landing, three bedrooms (third off second), rear yard and garden, double glazing and gas central heating. The property has been recently redecorated throughout including new flooring and carpets.
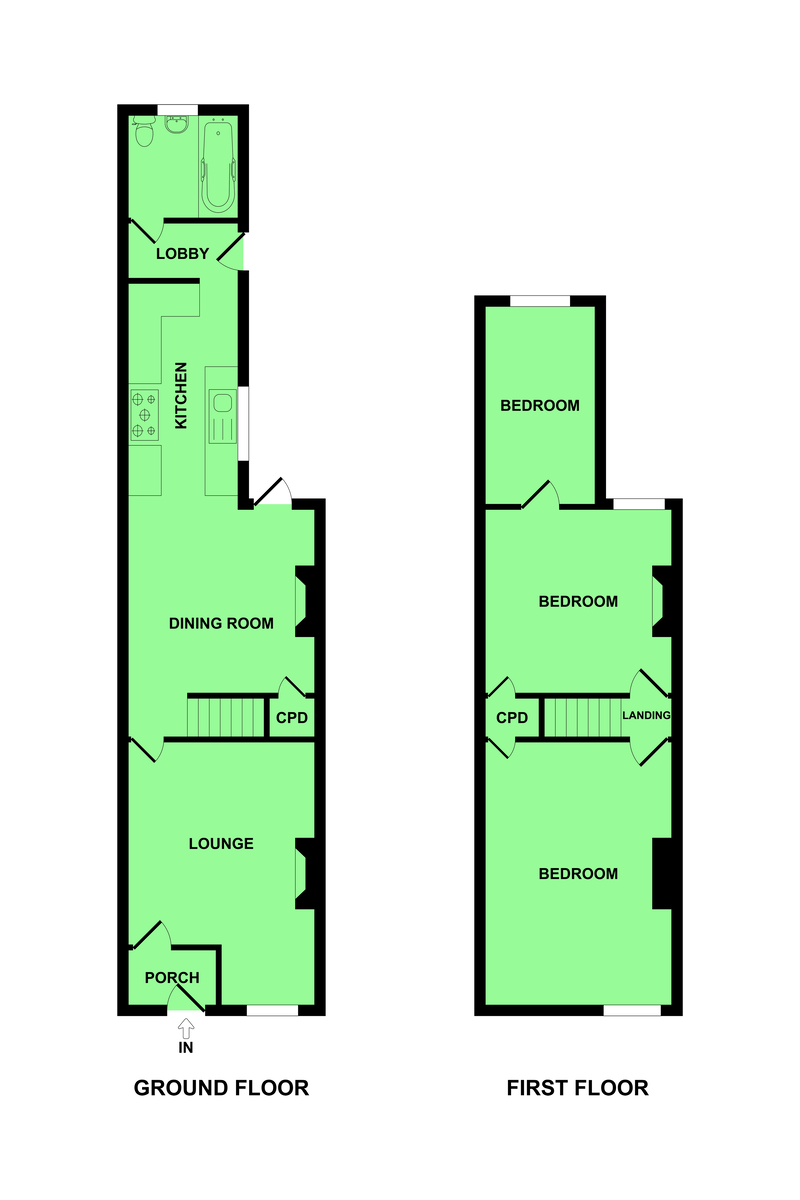
ENTRANCE PORCH UPVC entrance door with fixed side panel; door into Lounge.
LOUNGE 15' 2" max x 11' 2" max (4.62m x 3.4m) feature fireplace with tiled hearth and feature exposed brick chimney breast; radiator; wall lights; window to front; door to Inner Hall.
INNER HALL stairs to first floor; feature exposed brickwork; opening to Dining Room.
DINING ROOM 13' 0" x 11' 3" max (3.96m x 3.43m) plus understairs storage cupboard; door to rear garden; fireplace with gas fire; radiator; wall lights; large opening to Kitchen.
KITCHEN 11' 9" x 6' 4" (3.58m x 1.93m) worktops with a range of base cupboards and drawers; space and plumbing for washing machine; space for fridge and freezer; range oven with five ring gas hob and light and extractor; bowl and a half sink with mixer tap; range of wall units; side window; open archway to Rear Hall / Utility.
REAR HALL / UTILITY stable door to garden; side window; cupboard housing Ideal gas boiler; radiator; door to Bathroom.
BATHROOM wc; pedestal wash hand basin; bath with mains shower over; frosted window; extractor fan.
FIRST FLOOR LANDING
BEDROOM 1 11' 2" x 15' 2" max (3.4m x 4.62m) window to front aspect; feature fireplace; radiator; storage cupboard.
BEDROOM 2 13' 0" x 11' 2" max (3.96m x 3.4m) plus storage cupboard; window to rear aspect; feature fireplace; radiator; door into Bedroom 3.
BEDROOM 3 11' 8" x 6' 5" (3.56m x 1.96m) rear window; radiator.
OUTSIDE To the front of the property there is a traditional forecourt area. To the rear there is an enclosed yard with artificial lawn, timber storage shed and gate to a further rear, bisected, garden which is lawned with a patio area, timber shed and shrubs and plants.
VIEWINGS Strictly by appointment with the selling agents, BYCROFT ESTATE AGENTS, tel: 01493 664000.
COUNCIL TAX This property is currently listed as Band B.
DISCLAIMER While we endeavour to make our sales particulars fair, accurate and reliable, they are only a general guide to the property and, accordingly, if there is any point which is of particular importance to you, please contact the office and we will be pleased to check the position for you, especially if you are contemplating travelling some distance to view the property.
The approximate room sizes are only intended as general guidance. You must verify the dimensions carefully before ordering carpets or any built-in furniture.
Any references to garden sizes are approximate and subject to confirmation by a measured survey. A prospective purchaser is advised to arrange for their own land survey to be carried out.
Please note we have not tested the services or any of the equipment or appliances in this property, accordingly we strongly advise prospective buyers to commission their own survey or service reports before finalizing their offer to purchase.
THESE PARTICULARS ARE ISSUED IN GOOD FAITH BUT DO NOT CONSTITUTE REPRESENTATIONS OF FACT OR FORM PART OF ANY OFFER OR CONTRACT. THE MATTERS REFERRED TO IN THESE PARTICULARS SHOULD BE INDEPENDENTLY VERIFIED BY PROSPECTIVE BUYERS.

Agent Statistics (Based on 350 Reviews) :