The UK's Largest Customer Review Website for the Property Industry
The UK's Largest Customer Review Website for the Property Industry
Back to Property Listings
Spring Place Court, Mirfield
****** MINIMUM SIX MONTHS LEASE ******
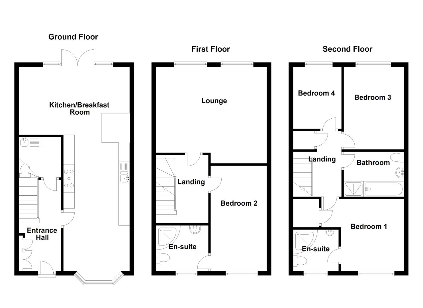
Bramleys are delighted to welcome to the rental market this superbly presented 4 bedroom town house. Features include gas fired central heating, uPVC double glazing and integral appliances such as microwave, dishwasher, double oven and hob. Offering good sized accommodation over 3 floor which comprises, entrance hall, utility, kitchen/dining/breakfast room, lounge, 4 bedrooms, 2 with ensuite and house bathroom. Gardens to front and rear and allocated parking space and detached garage. Ideally placed for local amenities including the public transport network, schooling and shops. Bond £1555.00
Any applicants will be required to pay a holding deposit equivalent to one weeks rent should the landlord decide to proceed with their application.
****** SORRY NO PETS OR SMOKERS ******
Entrance Hallway -
Kitchen/Breakfast Room - 9.14m'0.91m x 4.88m'1.52m max (30'3 x 16'5 max) - With microwave, dishwasher, double oven and hob.
Utility - 1.83m'0.91m x 1.83m'0.00m (6'3 x 6'0) -
First Floor Landing -
Lounge - 4.88m'1.52m x 4.27m'1.22m max (16'5 x 14'4 max) -
Bedroom Two - 4.57m'2.13m x 2.44m'1.22m (15'7 x 8'4) -
En Suite - With three piece suite in white comprising low flush wc, pedestal hand wash basin and shower cubicle
Second Floor Landing -
Bedroom One - 3.66m'0.91m x 3.05m'2.44m (12'3 x 10'8) -
En Suite - With three piece suite in white comprising low flush wc, pedestal hand wash basin and shower cubicle
Bedroom Three - 3.66m'0.91m x 2.44m'3.35m (12'3 x 8'11) -
Bedroom Four - 2.74m'0.61m x 2.13m'0.61m (9'2 x 7'2) -
Bathroom - With four piece suite in white incorporating low flush wc, pedestal hand wash basin, panelled bath and shower cubicle
Outside - Gardens to front and rear and off street parking

Agent Statistics (Based on 471 Reviews) :