The UK's Largest Customer Review Website for the Property Industry
The UK's Largest Customer Review Website for the Property Industry
Back to Property Listings
Spenser Road, SE24
***MULTIPLE OFFERS RECEIVED*** Keating Estates are proud to present this spacious and characterful two-bedroom Victorian conversion flat with a private front garden, set within an attractive semi-detached building on Spenser Road in the sought-after Poet's Corner.
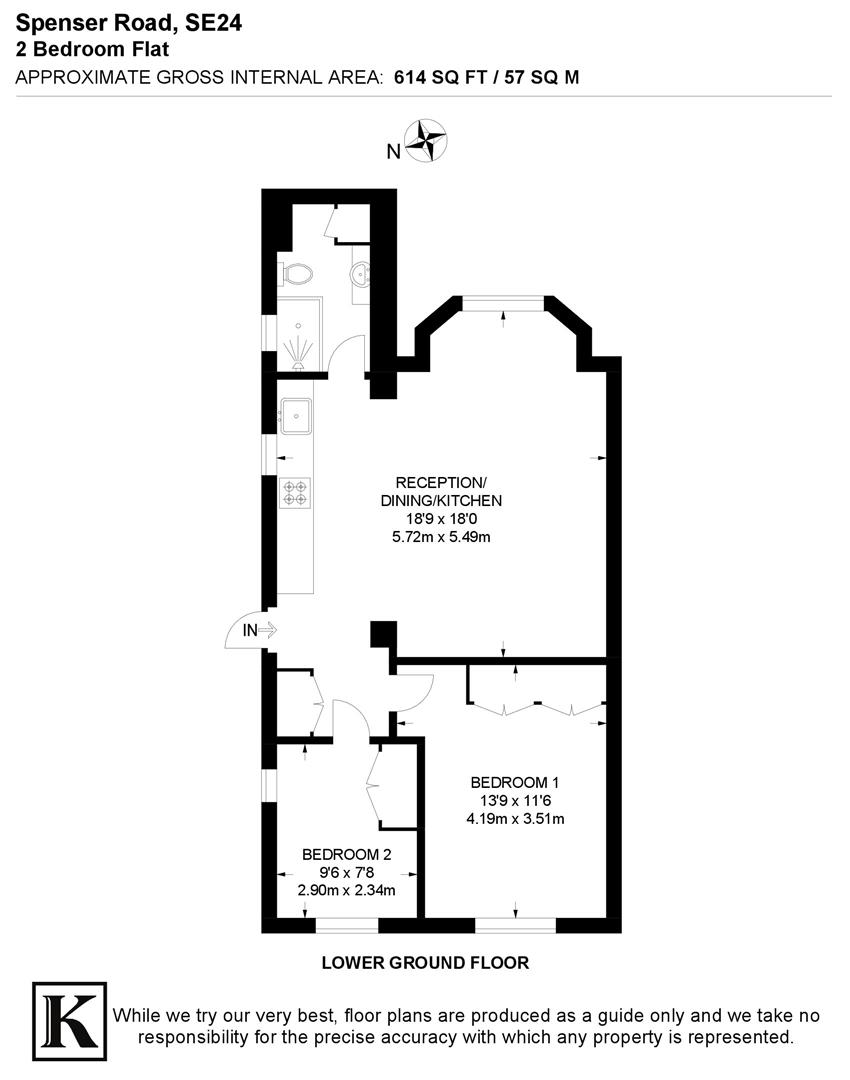
Full Description - Keating Estates are proud to present this spacious and characterful two-bedroom Victorian conversion flat, set within an attractive semi-detached building on Spenser Road in the sought-after Poet's Corner. Located moments from Brockwell Park in Herne Hill, the property also benefits from easy access to the amenities of Brixton.
The handsome Victorian façade immediately sets a welcoming tone, offering classic kerb appeal with its brickwork and decorative detailing. This characterful home enjoys its own private entrance and benefits from a front garden exclusively belonging to the property.
Inside, an expansive open-plan reception and kitchen area creates a bright and inviting space that showcases the home's charm and character. The reception area is impressive in scale, with high ceilings and generous proportions that easily accommodate both living and dining areas. A charming sash window at the front provides the perfect nook for a dining table, making this a versatile and sociable space for relaxing or entertaining.
The kitchen blends practicality with timeless style, fitted with cream cabinetry and integrated appliances. A window above the cooker adds natural light and ventilation, while the layout allows room for an island if desired. With ample storage and workspace, the kitchen is ideal for both everyday living and hosting dinner parties.
To the rear of the flat are two well-proportioned bedrooms arranged for privacy and comfort. The principal bedroom is a serene retreat with leafy views over nearby gardens. Built-in storage keeps the space functional, and its elegant proportions create a relaxing environment.
The second bedroom enjoys a dual aspect with natural light and leafy views, making it ideal as a guest room, nursery, or home office. Both bedrooms benefit from built-in storage, and the peaceful outlook enhances the appeal for those working from home.
The bathroom is fully tiled in neutral tones for a clean, modern finish. It features a walk-in shower with glass screen, a vanity unit with sink, and a window for natural light and ventilation.
Additional benefits include brand-new sash windows installed throughout in November 2024, enhancing energy efficiency and aesthetic appeal.
The location is exceptional. Brockwell Park, with its iconic 1930s Lido and sports facilities, is at the end of the road. Herne Hill station is just an eight-minute walk, Central Brixton nine minutes, while Victoria can be reached in sixteen minutes, Blackfriars in twenty, London Bridge in twenty-four, and Canary Wharf in thirty-seven minutes door-to-door. The celebrated Herne Hill pubs and restaurants, Brixton Village, and the high street amenities, including Brixton Tube, are all within easy reach.
With Brockwell Park, Herne Hill's eateries and pubs, and Brixton Village on your doorstep, the location offers something for all tastes.
Chain-free.

Agent Statistics (Based on 1262 Reviews) :