The UK's Largest Customer Review Website for the Property Industry
The UK's Largest Customer Review Website for the Property Industry
Back to Property Listings
Sparable Lane, Wakefield
**GUIDE PRICE £150,000 - £160,000** *NO CHAIN & VACANT POSSESSION* Ideal for the FIRST TIME BUYER is this three bedroom mid terrace property boasting spacious and well presented accommodation. VIRTUAL TOUR AVAILABLE. EPC rating D59.
A well presented two bedroom mid terrace property offered for sale with no chain and vacant possession benefitting from accommodation spanning over three floors, loft room and enclosed rear garden.
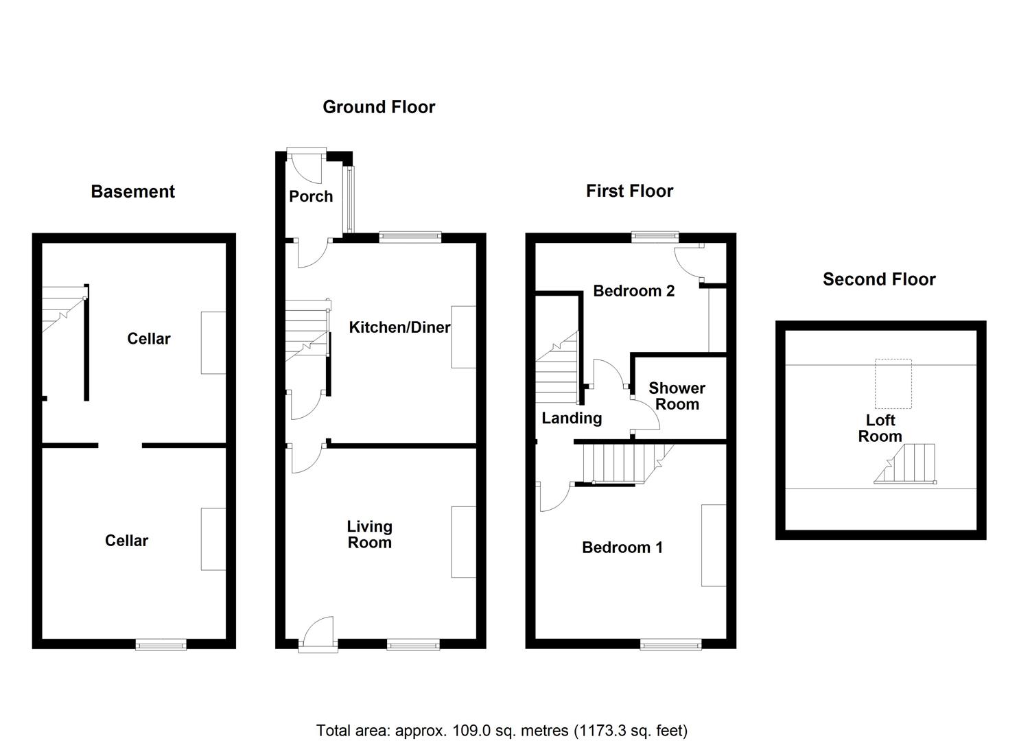
The accommodation fully comprises of the living room, kitchen/diner with access down to the two cellar rooms. The rear porch completes the ground floor accommodation. The first floor landing provides access to two bedrooms and the house shower room/w.c. A further set of stairs lead to the loft room. Outside to the front is a small paved buffer garden. To the rear is a low maintenance garden with paved patio and raised decked patio area, surrounded by timber fencing with rear gate.
The property is ideally located for all local shops and amenities, whilst only being a short drive away from Wakefield city centre. Sandal & Agbrigg train station is only a short walk away, perfect for those looking to travel further afield.
Ideal for the first time buyer, couple or family, only a full internal inspection will reveal all that's on offer at this quality home and an early viewing comes highly recommended.
Accommodation -
Living Room - 4.0m x 3.82m (max) x 3.42m (min) (13'1" x 12'6" (m - UPVC double glazed entrance door, UPVC double glazed window to the front, central heating radiator, coving to the ceiling, ceiling rose and decorative fireplace with stone surround. Door to the kitchen/diner.
Kitchen/Diner - 4.04m x 3.8m (max) x 2.52m (min) (13'3" x 12'5" (m - Range of wall and base units with laminate work surface over, stainless steel sink and drainer with mixer tap and tiled splash back. Integrated oven with four ring electric hob, space for a fridge/freezer, space and plumbing for a washing machine. Door providing access down to the cellar, door to the rear porch, stairs to the first floor landing, spotlights and central heating radiator.
Cellar Room One - 4.08m x 3.83m (max) x 2.4m (min) (13'4" x 12'6" (m - Power and light.
Cellar Room Two - 4.01m x 3.87m (max) x 3.37m (min) (13'1" x 12'8" ( - Power and light. Timber framed single pane frosted window to the front.
Rear Porch - 1.55m x 1.16m (5'1" x 3'9") - UPVC single glazed window and door to the rear.
First Floor Landing - Spotlights, doors to two bedrooms and shower room. A further set of stairs to the additional loft room.
Bedroom One - 3.82m x 4.0m (max) x 1.1m (min) (12'6" x 13'1" (ma - UPVC double glazed window to the front, central heating radiator, coving to the ceiling and ceiling rose.
Bedroom Three - 3.41m x 2.45m (max) x 1.16m (min) (11'2" x 8'0" (m - Storage cupboard housing the combi boiler, central heating radiator, coving to the ceiling and UPVC double glazed window to the rear.
Shower Room/W.C. - 1.7m x 1.92m (5'6" x 6'3") - Three piece suite comprising low flush w.c., ceramic wash basin with mixer tap and double shower cubicle with mains overhead shower. Spotlights and extractor fan.
Loft Room - 3.61m x 4.2m (max) x 2.33m (min) (11'10" x 13'9" ( - Velux skylight, fitted storage, power and light.
Outside - To the front is a small paved buffer garden with steps leading up to the entrance door. To the rear is a low maintenance paved garden with raised decked patio area, perfect for outdoor dining and entertaining, fully enclosed by timber fencing with rear gate.
Council Tax Band - The council tax band for this property is A.
Floor Plans - These floor plans are intended as a rough guide only and are not to be intended as an exact representation and should not be scaled. We cannot confirm the accuracy of the measurements or details of these floor plans.
Viewings - To view please contact our Wakefield office and they will be pleased to arrange a suitable appointment.
Epc Rating - To view the full Energy Performance Certificate please call into one of our local offices.

This property is marketed by

Richard Kendall Estate Agent - Wakefield, Wakefield, WF1
4.9/5 Rating
(1653) reviews
Agent Statistics (Based on 1653 Reviews) :