The UK's Largest Customer Review Website for the Property Industry
The UK's Largest Customer Review Website for the Property Industry
Back to Property Listings
South Lane, Netherton, Wakefield
A FOUR BEDROOM detached family home in Netherton with two en suites, DOUBLE GARAGE & garden. VIEWING ESSENTIAL. EPC rating C69.
Situated in the sought after village of Netherton is this four double bedroom detached family home sat on a generous sized plot and benefitting from well proportioned accommodation with underfloor heating, driveway with double garage and an attractive enclosed rear garden.
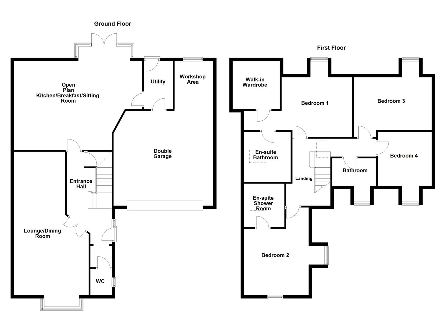
The accommodation briefly comprises of the entrance hall, w.c., lounge/dining room, open plan kitchen/breakfast/sitting room with separate utility room and integral double garage with workshop space. To the first floor landing leads to four double bedrooms (principal bedroom with dressing room and en suite with bedroom two also boasting en suite facilities) and main house bathroom. Outside to the front is a driveway providing off road parking for two vehicles leading to the double garage. To the rear is an enclosed attractive lawned garden with summerhouse and paved patio area, perfect for al fresco dining.
The property is within walking distance to the local schools and amenities within Netherton, local bus routes travel to and from Wakefield and the M1 motorway is only a short drive away ideal for those looking to travel further afield
Only a full internal inspection will reveal all that's on offer at this quality home and an early viewing comes highly recommended.
Accommodation -
Entrance Hall - UPVC double glazed front entrance door, stairs to the first floor landing, understairs storage cupboard, coving to the ceiling, UPVC double glazed frosted window to the front, spotlights and doors to w.c., open plan kitchen/breakfast/sitting room and lounge/dining room.
W.C. - 1.3m x 1.58m (4'3" x 5'2") - Low flush w.c. and ceramic wash basin with mixer tap. UPVC double glazed frosted window to the front, coving to the ceiling, spotlights and underfloor heating.
Lounge/Dining Room - 9.68m x 4.52m (max) x 2.33m (min) (31'9" x 14'9" ( - UPVC double glazed box window to the front, coving to the ceiling, underfloor heating, gas fireplace with marble hearth, surround and mantle.
Open Plan Kitchen/Breakfast/Sitting Room - 7.88m x 6.4m (max) x 2.93m (min) (25'10" x 20'11" - Range of wall and base shaker style units with granite work surface over, inset 1 1/2 sink and drainer with mixer tap, Range style cooker with extractor hood, an American style fridge/freezer, integrated dishwasher and integrated microwave. Central island with matching work surface with breakfast bar style, underfloor heating, coving to the ceiling, spotlights, door to the utility, UPVC double glazed window and French doors to the rear.
Utility - 1.75m x 2.92m (5'8" x 9'6") - Range of wall and base shaker style units with granite work surface over, ceramic Belfast sink with mixer tap, space and plumbing for a washing machine and tumble dryer. UPVC double glazed door to the rear, coving to the ceiling, extractor fan, underfloor heating and door to the garage.
Integral Double Garage - 6.04m x 5.68m (max) x 4.4m (min) (19'9" x 18'7" (m - Power and light, electric roller door, tiled throughout and an opening leading through to the workshop area.
Workshop - 2.3m x 2.92m (7'6" x 9'6") - UPVC double glazed window to the rear, fitted base units, power and light.
First Floor Landing - Spotlights, velux skylight, underfloor heating and doors to four bedrooms and house bathroom.
Bedroom One - 6.55m x 4.54m (max) x 1.2m (min) (21'5" x 14'10" ( - UPVC double glazed window to the rear, spotlights, underfloor heating, fitted wardrobes and vanity unit. Doors to the walk in wardrobe and en suite bathroom.
Walk In Wardrobe - 2.86m x 2.82m (9'4" x 9'3") - Access to storage eaves and a range of fitted wardrobes and storage units.
En Suite Bathroom/W.C. - 2.86m x 2.65m (9'4" x 8'8") - Low flush w.c., ceramic wash basin with mixer tap, stone alone roll top bath and separate shower cubicle with mains overhead power shower with fitted jets. Velux skylight, underfloor heating, heated towel rail, extractor fan and spotlights.
Bedroom Two - 5.32m x 4.92m (max) x 1.3m (min) (17'5" x 16'1" (m - Underfloor heating, UPVC double glazed windows to the front, spotlights, access to storage eaves and door to the en suite shower room.
En Suite Shower Room/W.C. - 2.27m x 2.61m (7'5" x 8'6") - Low flush w.c., pedestal wash basin with mixer tap and shower cubicle with mains overhead power show with fitted jets. Spotlights, underfloor heating, velux skylight, heated towel rail and extractor fan.
Bedroom Three - 4.78m x 4.14m (max) x 3.2m (min) (15'8" x 13'6" (m - Underfloor heating, UPVC double glazed window to the rear, spotlights, access to storage eaves and residual loft space.
Bedroom Four - 3.46m x 4.23m (max) x 3.3m (min) (11'4" x 13'10" ( - UPVC double glazed window to the front, spotlights and underfloor heating.
Bathroom/W.C. - 2.62m x 1.68m (8'7" x 5'6") - Low flush w.c., pedestal wash basin and panelled bath with mains shower attachment. UPVC double glazed frosted window to the front, underfloor heating, heated towel rail, extractor fan and spotlights.
Outside - To the front of the property is a block paved driveway providing off road parking for two vehicles leading to the double garage. To the rear is a lawned garden with mature trees incorporating paved patio area, perfect for outdoor dining and entertaining with summerhouse, fully enclosed by timber fencing.
Council Tax Band - The council tax band for this property is F.
Floor Plans - These floor plans are intended as a rough guide only and are not to be intended as an exact representation and should not be scaled. We cannot confirm the accuracy of the measurements or details of these floor plans.
Viewings - To view please contact our Ossett office and they will be pleased to arrange a suitable appointment.
Epc Rating - To view the full Energy Performance Certificate please call into one of our local offices.

This property is marketed by

Richard Kendall Estate Agent - Ossett, Ossett, WF5
4.9/5 Rating
(1653) reviews
Agent Statistics (Based on 1653 Reviews) :