The UK's Largest Customer Review Website for the Property Industry
The UK's Largest Customer Review Website for the Property Industry
Back to Property Listings
South Knighton Road, South Knighton, Leicester
This beautifully presented home blends classic charm with modern living. Set behind a stone driveway and landscaped front garden, it offers stylish interiors, spacious rooms, and bespoke finishes throughout.
Location - South Knighton is conveniently located to commute into the city, approximately two and a half miles distant. Local shopping facilities can be found along the nearby Queens Road/Allandale Road and Francis Street shopping parades where a wide range of bars, restaurants and boutiques can also be found.
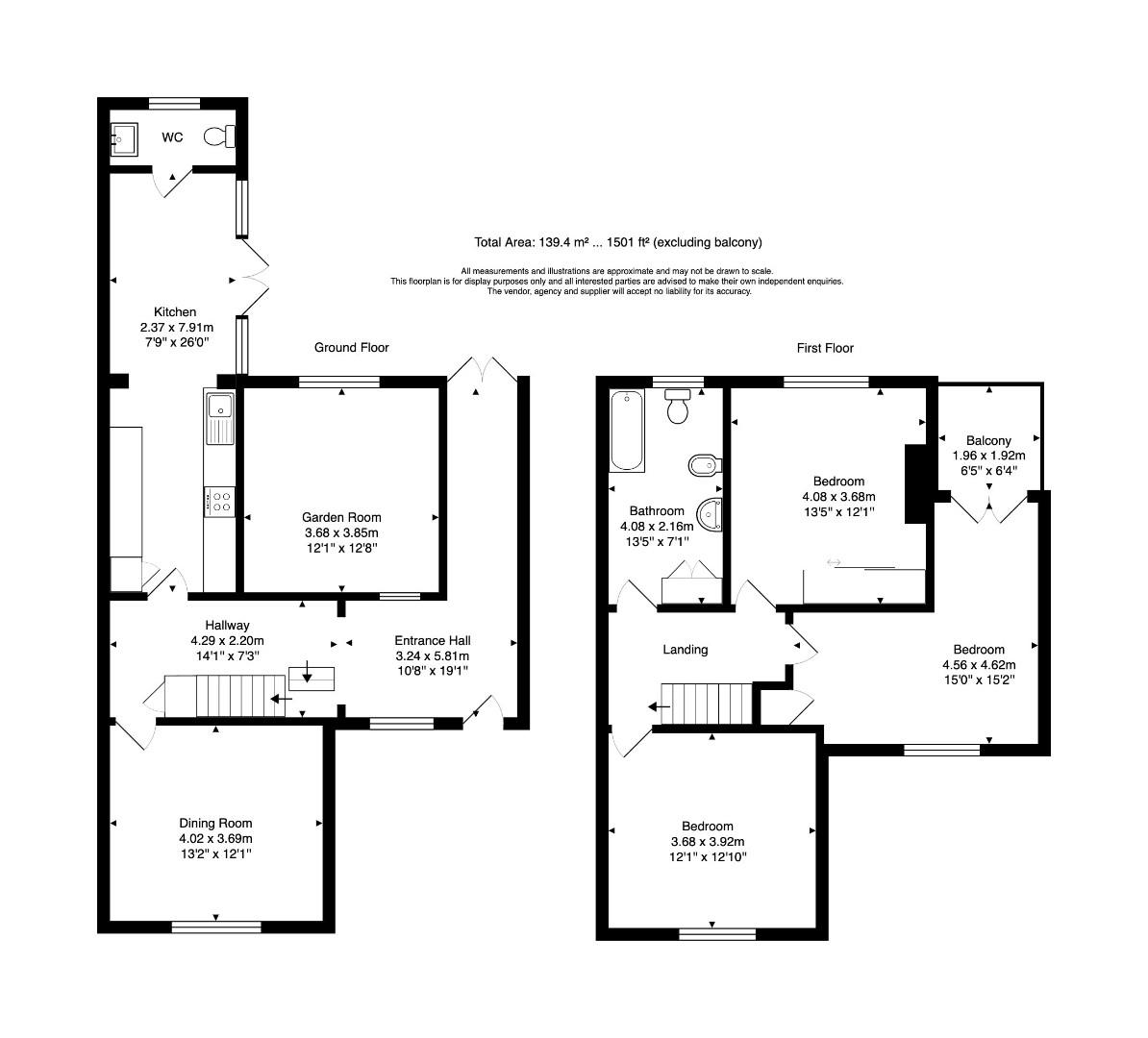
Accommodation - Stepping inside, you are welcomed by an elegant hallway featuring rich bamboo flooring and a wooden front door with matching window. A bespoke handmade internal window offers a delightful view through to the lounge, adding character and light. The hallway is enhanced by a Venetian plaster feature wall, and a thoughtfully designed office area positioned before the UPVC double doors leading out to the garden.
To the front of the property, the formal dining room exudes period charm with its traditional wooden window, ceiling coving and a gas fire, making it an ideal setting for intimate dinners and family gatherings alike. A warm and inviting space, the living room enjoys views of the rear garden and a open fireplace and original picture rails.
The beautifully extended kitchen is both practical and stylish, featuring original, quarry tiled flooring and a range of cream/off-white hand-finished units complemented by a soft green worktop and a stainless-steel sink with drainer. Integrated features include plumbing for an electric oven, separate washer and dryer, and space for a fridge/freezer. This flows naturally into a wooden-floored area complete with a sociable breakfast bar and patio doors opening onto the garden.
Upstairs, three beautifully appointed double bedrooms each present their own distinct character. The principle bedroom, positioned to the front, offers a generous layout with UPVC window and a feature radiator. Bedroom two is equally impressive, with a decorative ceiling rose, and a mirrored triple sliding wardrobe adding both style and storage. Bedroom three includes a fitted cupboard and UPVC door opening onto a charming and secure metal-railed terrace, the perfect spot for quiet reflection.
The family bathroom includes a large bath with shower over, and complementary white tiling. Additional features include an airing cupboard with wooden shelving, a white heated towel radiator, and laminate wood-effect flooring.
Outside - The rear garden is a true haven of peace and privacy. A beautifully designed outdoor space featuring a charming patio and decked seating area and well-planted borders. To the side you'll find a planting shed and further storage sheds.
Other Information - Tenure: Freehold.
Local Authority: Leicester City Council
Tax Band: C
Listed Status: None.
Conservation Area: None.
Services: Offered to the market with all mains services and gas-fired central heating.
Broadband delivered to the property: Full Fibre Broadband, 19mbps.
Flooding issues in the last 5 years: None our Clients are aware of.

This property is marketed by

James Sellicks Estate Agents - Leicester, Leicester, LE1
4.9/5 Rating
(281) reviews
Agent Statistics (Based on 281 Reviews) :