The UK's Largest Customer Review Website for the Property Industry
The UK's Largest Customer Review Website for the Property Industry
Back to Property Listings
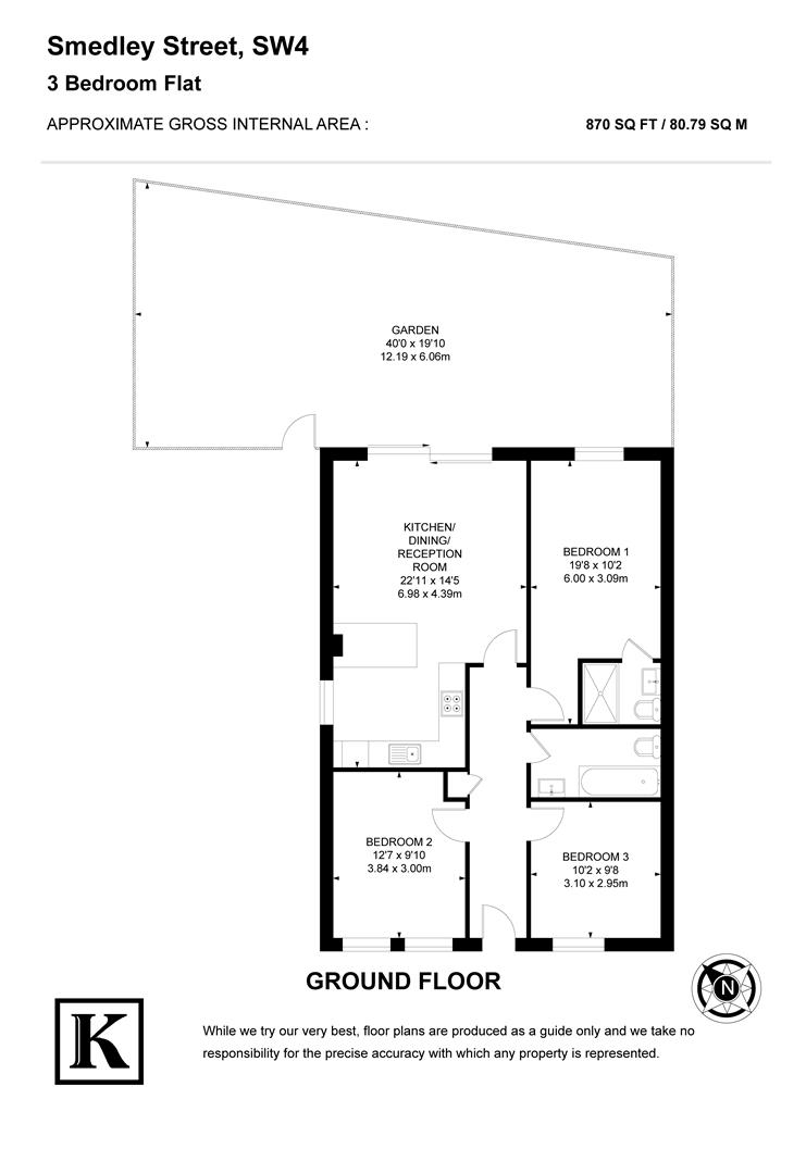
Smedley Street, SW8
Modern three bed garden flat set in a secure development in Stockwell.
Property Details - A three-bedroom flat in a modern development finished to an excellent standard throughout. The property comprises of three double bedrooms, a modern open plan kitchen/reception room, and a modern bathroom all of which are decorated in a tasteful manner. There is also a shared garden for you to enjoy. Smedley Street is located within 8 minutes of Wandsworth Road train station and has the added benefit of being within walking distance to Clapham North tube station and Clapham High street train station as well.
Tenant Fees - In addition to paying rent for the property, you may also be required to make the following permitted payments.
Before the tenancy starts:
. Holding deposit - 1 week's rent.
and/or
. Deposit - 5 weeks' rent, or where the rent is more than £50,000 per annum, 6 weeks' rent.
During the tenancy:
. Payments to other third parties, such as council tax, utilities or payments for communications services.
. Default charges, such as payments for the replacement of lost keys or interest on overdue rent.
. Tenancy transaction charges, such as requests to vary or assign the tenancy.
Tenant Protection:
Keating Estates is a member of UKALA Client Money Protect, which is a client money protection scheme, and also a member of UKALA PRS, which is a redress scheme. You can find out more details on the Renting page our website or by contacting us directly.

This property is marketed by

Keating Estates Ltd - Clapham London, London, SW4
4.9/5 Rating
(1262) reviews
Agent Statistics (Based on 1262 Reviews) :