The UK's Largest Customer Review Website for the Property Industry
The UK's Largest Customer Review Website for the Property Industry
Back to Property Listings
Sidney Road, South Knighton, Leicester
Built circa 1873, this stunning, DETACHED home boasts immaculately presented accommodation with THREE BEDROOMS and a particularly GOOD-SIZED, SOUTH-FACING GARDEN.
Location - Just off Elms Road in the heart of South Knighton, the location provides good access to the fashionable Allandale Road/Francis Street and Queens Road shopping parades as well as the city centre with its professional quarters and mainline railway station providing access to London St Pancras in little over one hour.
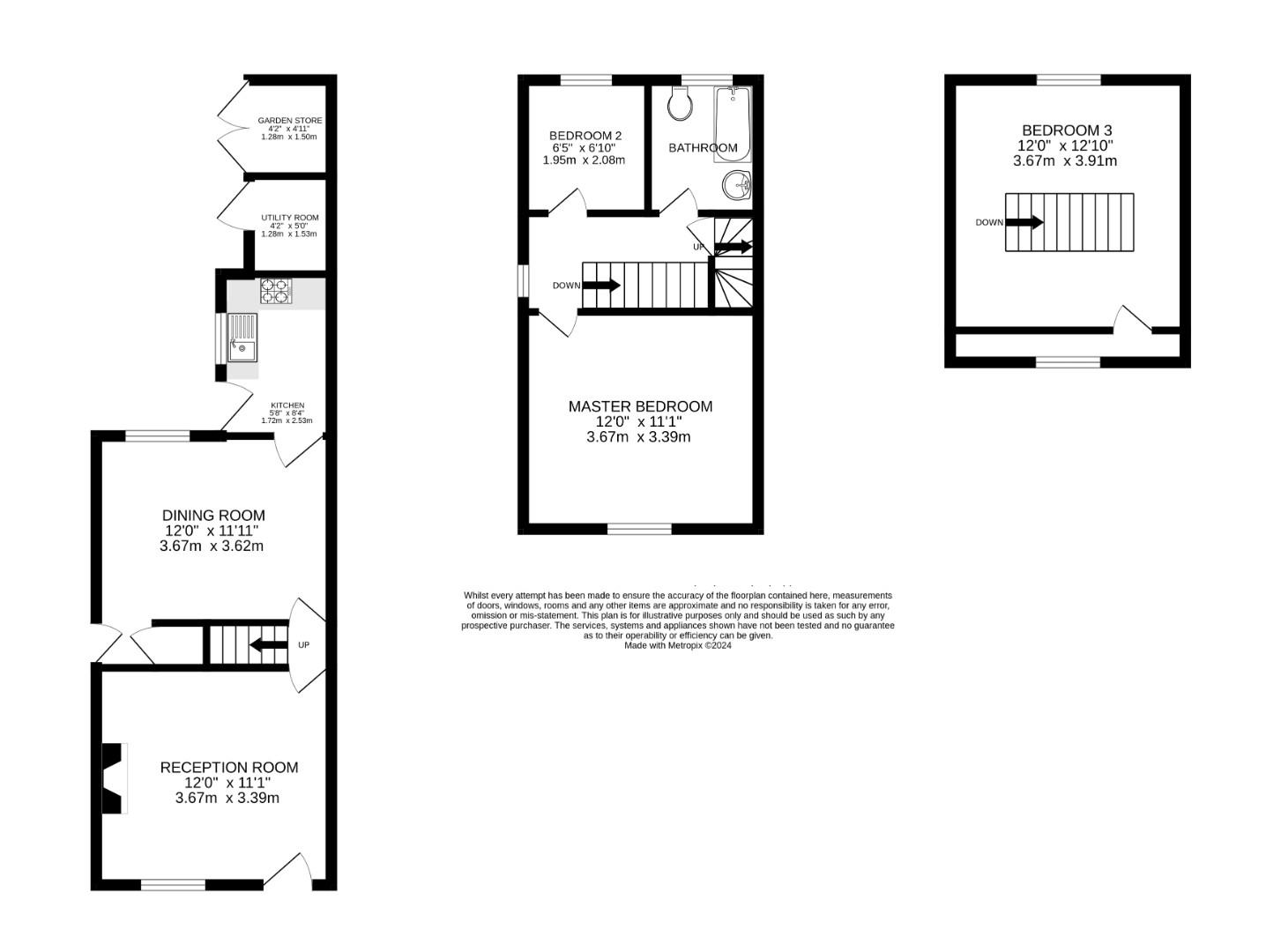
Accommodation - The sitting room has two sash windows to the front, a cast iron fireplace and mantelpiece with a gas living flame effect fire, built-in meter cupboard, ceiling coving and picture rail, stripped and painted floorboards. An inner hallway provides access to the side of the house, a useful understairs cupboard and is open to the dining room, having a sash window to the rear and an original cast iron range with a painted surround and full-height storage cupboard with picture rail. Steps lead down to the kitchen, with a good range of white eye and base level units with ample preparation surfaces, tiled splashbacks, a circular stainless steel sink and drainer unit with mixer tap and sliding window over, an electric oven with four-ring gas hob and extractor unit above, integrated fridge-freezer, picture rails, stripped and painted floorboards and rear door access to garden.
The first floor landing has picture rails and a window to the side. The master bedroom has a decorative cast iron fireplace, a built-in storage cupboard with drawers beneath, two sash windows to the front, stripped and painted floorboards. Bedroom two has a recessed fireplace with fitted shelving, a window to the rear, stripped and painted floorboards and picture rails. The spacious bathroom has a white three piece suite comprising a low flush WC, pedestal wash hand basin, a panelled bath with fixed and flexible shower heads over, part tiled walls, stripped and painted floorboards and a window to the rear. The attic bedroom has a vaulted ceiling, double glazed Velux windows to the front and rear with electronically controlled blinds, eaves storage, stripped and painted floorboards.
Outside - The front, side and rear of the property have Yorkshire cream stone gravel and outside lighting; the front and side with planted borders. Double Yale locked wooden gates give side access to attractive rear gardens with two detached brick stores (one with plumbing for washing machine, Belfast sink & taps, a WC and Worcester Bosch wall mounted boiler). The rear gardens have a pleasant southerly aspect with a lawn, gravelled path, well-stocked borders and an open fronted brick built covered summerhouse to the rear of the plot.
Tenure & Council Tax - Tenure: Freehold,
Local Authority: Leicester City Council
Tax Band: B
Other Information - Conservation Area: No
Services: Offered to the market with all mains services and gas-fired central heating.
Broadband delivered to the property: fibre, 132-136mbps
Wayleaves, Rights of Way & Covenants: None known
Flooding issues in the last 5 years : None known
Accessibility & Planning issues : None known

This property is marketed by

James Sellicks Estate Agents - Leicester, Leicester, LE1
4.9/5 Rating
(273) reviews
Agent Statistics (Based on 273 Reviews) :