The UK's Largest Customer Review Website for the Property Industry
The UK's Largest Customer Review Website for the Property Industry
Back to Property Listings
Short Street, Caversham
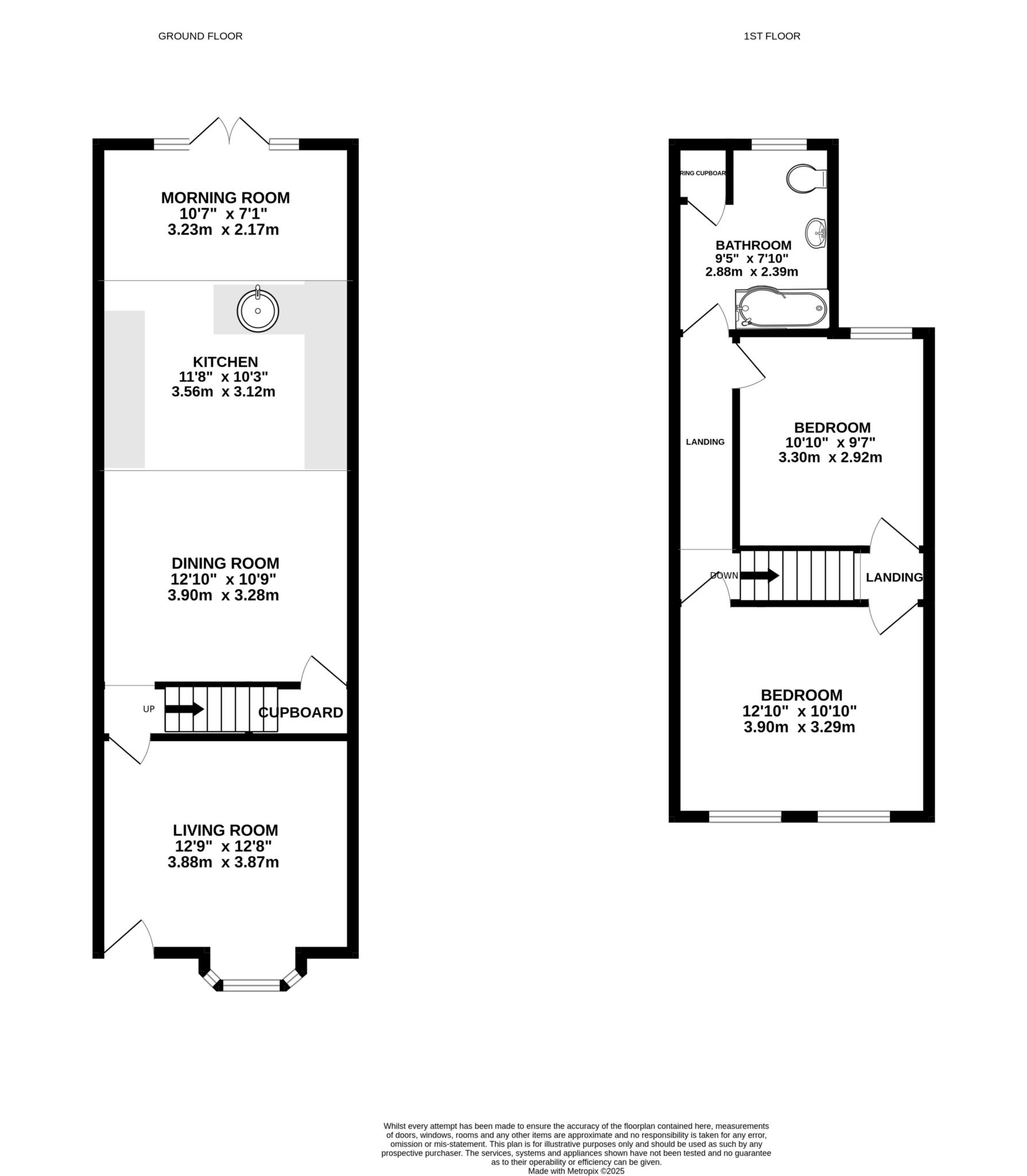
Masons are proud to offer to the market this extended & very well presented, two bedroom Victorian terrace house situated in central Caversham and a short walk to Caversham & Reading centres, along with Reading mainline station. The property has undergone improvements by its current owners, including new bathroom with under floor heating, new Solidor front door, new roof, loft insulated & boarded, new rendering, re-plastering and redecoration. The property consists of a 12ft living room, a 12ft dining room, an 11ft kitchen and a 10ft morning room with projector & surround sound, complete with French doors opening to the garden. Further benefits include two double bedrooms, a separate first floor bathroom, double glazing and private garden. Viewing recommended.
Newly fitted Solidor front door opening to:
Living room: 12`9" x 12`8" into double glazed bay window. opening to:
Dining room: 12`10" x 10`9" cupboard under the stairs and opening to:
Kitchen: 11`8" x 10`3" a modern range of eye and base level units with roll edge tops and tiled surround one & half sink & drainer, integrated oven, hob & extractor, dishwasher and space and plumbing for additional appliances. Opening to:
Morning room: 10`7" x 7`1" double glazed rear aspect, projector & surround sound, plus French doors to the garden.
First floor landing has loft access with new pull down ladder complete with fully boarded & insulated loft with light & power all ready to be used. Doors to:
Master bedroom: 12`10" x 10`10" twin double glazed front aspect.
Bedroom 2: 10`10" x 9`7" double glazed rear aspect.
Bathroom: double glazed rear aspect, a newly fitted bathroom suite comprising of a panel enclosed bath with shower over & shower screen, a low level wc, wash basin set into a vanity unit, under floor heating & wall mounted boiler.
Outside: To the front there is a small garden area with a path leading to the front door. To the rear there is a private garden laid to patio with a large shed, which is all enclosed by timber fencing & brick wall.
Notice
Whilst every care has been taken in the preparation of these particulars, and they are believed to be correct, they are not warranted and intending purchasers/lessees should satisfy themselves as to the correctness of the information given.Please note we have not tested any apparatus, fixtures, fittings, or services. Interested parties must undertake their own investigation into the working order of these items. All measurements are approximate and photographs provided for guidance only.
Council Tax
Reading Borough Council, Band C
Utilities
Electric: Unknown
Gas: Unknown
Water: Unknown
Sewerage: Unknown
Broadband: Unknown
Telephone: Unknown
Other Items
Heating: Gas Central Heating
Garden/Outside Space: Yes
Parking: No
Garage: No

Agent Statistics (Based on 72 Reviews) :