The UK's Largest Customer Review Website for the Property Industry
The UK's Largest Customer Review Website for the Property Industry
Back to Property Listings
Shenley Road, Hounslow, Heston, TW5
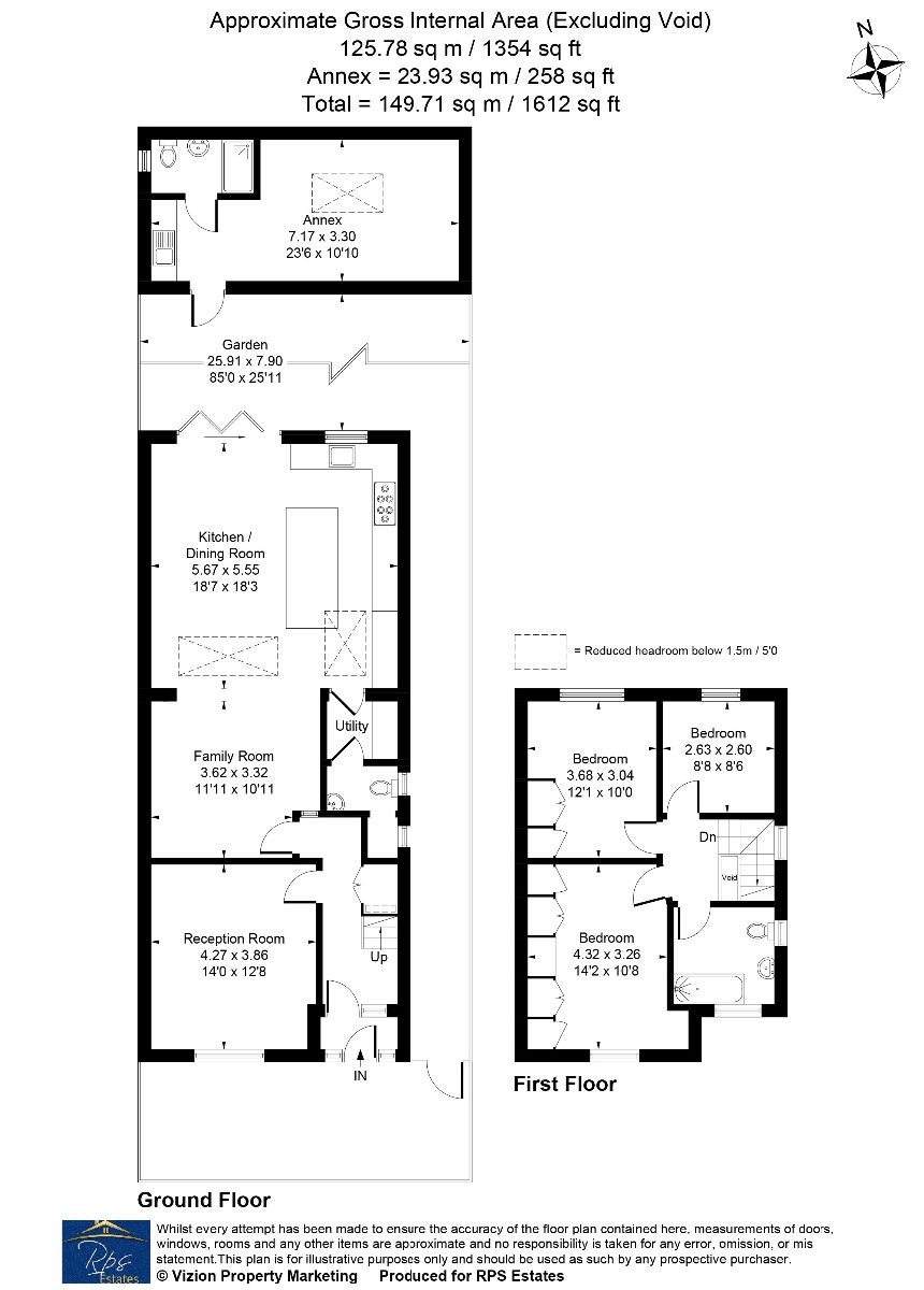
RPS Estates are proud to present this extended and well-presented 4-bedroom semi-detached family home located on a sought-after residential road in Heston. This property offers over 1600 sq ft of internal space including a brick-built self-contained annex with bedroom and en suite, and still retains a generously sized rear garden of approximately 90ft.
The ground floor comprises a spacious front reception room, a separate family room, and a full-width 6m rear extension housing a large open-plan kitchen and dining area. The kitchen is fully fitted with modern integrated appliances and includes a central island, offering both additional workspace and casual dining. Bi-folding doors open directly onto the rear garden, and the kitchen is also equipped with air conditioning. Additional ground floor features include a utility area and downstairs WC.
The first floor includes three bedrooms, two of which offer fitted wardrobes, and a modern family bathroom with a full-size bath. There is also potential to convert the loft into an additional bedroom and bathroom, subject to the necessary planning permissions (STPP). Further development potential exists with a double side storey side extension allowing for additional bedrooms, living space/office and bathrooms, thanks to the available side space.
Externally, the property benefits from a large private driveway with off-street parking for 3-4 vehicles. The rear garden extends to approximately 90ft and includes a 24m? brick-built outbuilding with its own bedroom and en suite bathroom, ideal for personal use, home working or a guest room.
Located within easy reach of local amenities, the property is close to a number of well-regarded schools including Heston Community School, Springwell School, and Berkeley Academy. Transport links are excellent with easy access to the A4, M4, A312 and Hounslow West Underground Station (Piccadilly Line). Local parks including Heston Park and Osterley Park are also nearby.
This property is ideal for families looking for a spacious home with scope for further extension and investment potential. Early viewings are highly recommended.
Council Tax Band: E
Tenure: Freehold
Parking options: Driveway, Off Street
Garden details: Private Garden, Rear Garden

This property is marketed by

RPS Estate Agents - RPS Estate Agents, Hounslow, TW5
4.6/5 Rating
(53) reviews
Agent Statistics (Based on 53 Reviews) :