The UK's Largest Customer Review Website for the Property Industry
The UK's Largest Customer Review Website for the Property Industry
Back to Property Listings
Shannon Grove, SW9
Keating Estates are delighted to present to market this unique two double bedroom end-of-terrace house with a private garden, two roof terraces including an expansive upper-level with panoramic views, and a fully equipped garden studio, nestled on the peaceful Shannon Grove in the heart of Brixton.
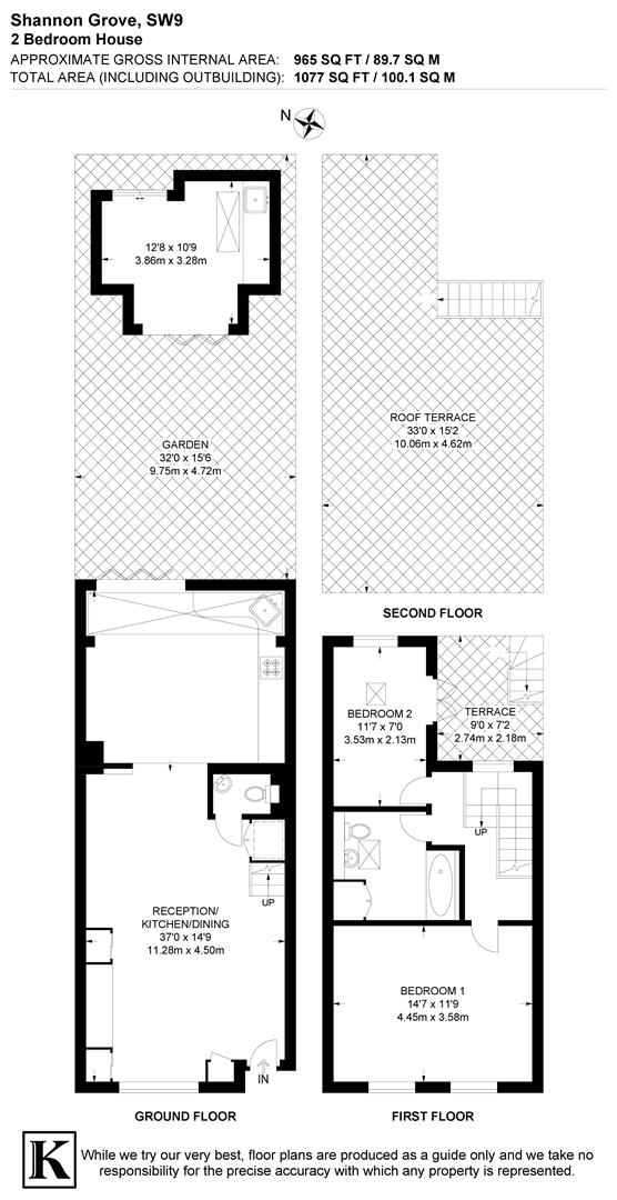
Full Description - Keating Estates are delighted to present to market this truly unique two double bedroom end-of-terrace house with a private landscaped garden, two roof terraces including an expansive upper-level offering panoramic views, and a fully equipped garden studio, nestled on the peaceful and sought-after Shannon Grove in the heart of Brixton.
A rare offering to the market, this fantastic home has been loving cared for by the same owner for the last twenty years. Upon entering, the ground floor unfolds into an impressive double reception room, a spacious and characterful living space which effortlessly combines comfort and style. Natural light pours through from the rear of the property, accentuating the warm tones of the wooden floors and highlighting the bespoke built-in shelving, which provides generous storage and display options. This inviting area is perfect for both relaxing and entertaining, with ample space for lounging, reading, or enjoying time with family and friends.
Flowing seamlessly from the reception is a stunning, contemporary kitchen, designed with both practicality and aesthetics in mind. A sleek, handleless finish in high-gloss cabinetry is complemented by a chic tiled floor and integrated appliances. The kitchen benefits from a large glass ceiling and bi-folding doors which create a wonderful sense of openness, allowing for an effortless indoor-outdoor flow into the garden and flooding the space with natural light throughout the day.
The garden is a verdant oasis, thoughtfully landscaped with lush greenery, mature tropical plants and a striking palm as a centrepiece. Decking provides the ideal setting for outdoor dining. Tucked away at the rear is a charming garden studio, complete with kitchen facilities, work desks, power points, WiFi extension, water supply and drainage-perfect as a home office or creative studio.
The ground floor is further complemented by a well-appointed downstairs WC, convenient for guests and day-to-day use.
Ascending to the first floor, the principal bedroom spans the full width of the home, exuding period charm with its original floorboards, twin sash windows and generous fitted wardrobes along two walls. This serene and spacious room offers a perfect retreat after a long day. The second double bedroom is currently arranged as a delightful guest suite, boasting dual aspect windows, a skylight and direct access to a decked terrace with a sleek glass balustrade that frames enchanting garden views without interrupting the line of sight. A striking steel staircase leads to a larger rooftop terrace offering panoramic views across the London skyline-an exceptional and rare feature ideal for al fresco entertaining or relaxing in the sun. This incredible space also has built-in lighting, an outdoor power supply and water tap enhancing its functionality.
This home has been lovingly maintained and thoughtfully improved over the last two decades by the current owners. Notable enhancements include the creation of the garden studio, the installation of garden decking and steel terrace stairs, a complete kitchen and tiled flooring renovation with upgraded electrics and a dedicated kitchen fuse box. A new boiler with thermostat was fitted two years ago and remains under guarantee. The flat roof of the kitchen extension was entirely renewed in 2024. The front of the house has also been repointed for improved kerb appeal. The cast iron radiators throughout the home are both elegant and highly efficient.
Furthermore, precedent has been set on the street should the purchaser wish to seek the necessary permissions to extend into the loft, offering exciting future potential to grow into the home, transforming it into a four bedroom family house.
Shannon Grove has a warm and welcoming community, with a vibrant neighbourhood WhatsApp group enhancing the strong sense of connection which the new owner can choose to join if desired. As far as locations go, it doesn't get much more central than this, whilst still enjoying peace and quiet with minimal traffic. The road is situated in the very heart of Brixton, a stone's throw from the restaurants, bars and cafés that make up the buzzing atmosphere of central Brixton and Atlantic Road, whilst Brixton Village and The Upstairs private members club are also on the doorstep.
The property is only a three-minute walk to Brixton tube station, first stop on the Victoria Line and running 24hrs at the weekend- arguably London's favourite Underground line. With Victoria twelve minutes away door-to-door, and The City only twenty minutes away, this is a great property for anyone looking to considerably reduce their commute. A short stroll in the other direction are the green open spaces of Brockwell Park, and its 1930s Lido. Clapham and Stockwell High Streets are also within walking distance, appealing to purchasers considering moving to all three of these in-demand neighbourhoods.
Freehold.

This property is marketed by

Keating Estates Ltd - Clapham London, London, SW4
4.9/5 Rating
(1262) reviews
Agent Statistics (Based on 1262 Reviews) :