The UK's Largest Customer Review Website for the Property Industry
The UK's Largest Customer Review Website for the Property Industry
Back to Property Listings
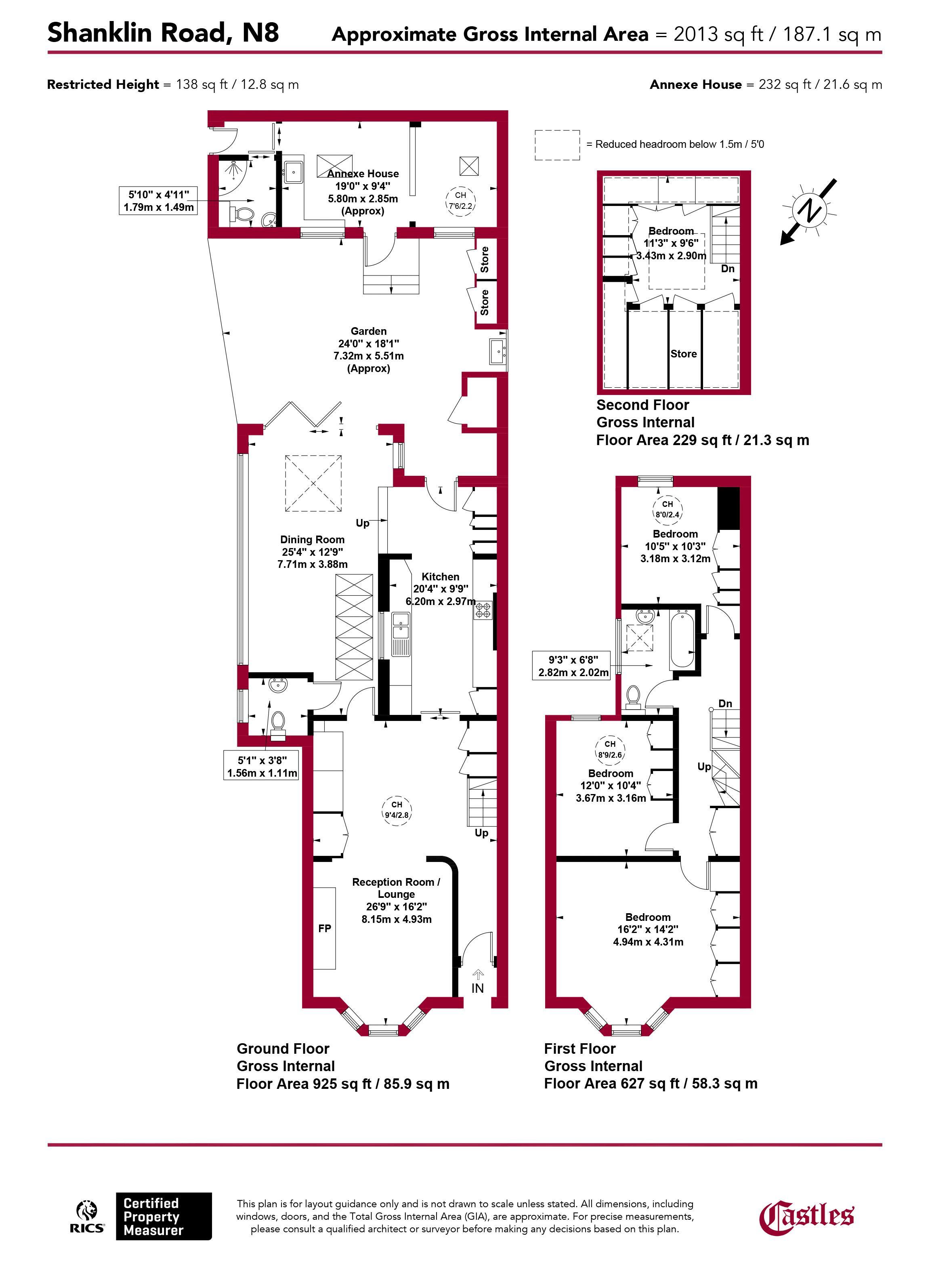
Shanklin Road, N8
A unique and exceptionally well-presented, three-bedroom, end-of-terrace, period home with separate self-contained studio annexe.
Set within a moment’s walk of the enviable Broadway, en-route to Highgate and within the radius of Coleridge School. The property offers a delightful blend of period and contemporary detailing with the benefit of a well-proportioned ground floor living area incorporating through-reception onto kitchen/diner leading to private south-facing garden. Further comprising family bathroom, guest w.c. and loft room/bedroom four. The self-contained annexe comprises sleeping/living area, kitchen, shower room and benefits from a green living roof.

This property is marketed by

Castles Estate Agents (London) - Crouch End, London, N8
5/5 Rating
(939) reviews
Agent Statistics (Based on 939 Reviews) :