The UK's Largest Customer Review Website for the Property Industry
The UK's Largest Customer Review Website for the Property Industry
Back to Property Listings
Self-Build Plot at Leaden Hill, Orwell
A single building plot with outline planning consent for a 5 bedroom detached self-build property. Occupying a stunning position on the edge of this highly desirable and most picturesque south-Cambridgeshire village
Planning Consent - On 24th December 2024 outline planning consent was granted for the construction of 9 No. Self-build/ Custom-build homes with access and associated infrastructure with some matters reserved except for access under Greater Cambridge Shared Planning ref: 23/02966/OUT
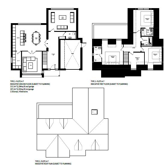
The Plots - These self build plots at Leaden Hill present the opportunity to manage the construction of your dream home. The property can be tailored to your personal preferences through working with your own choice of architect and build partner. The plots are positioned within an exclusive development of just 9 homes on the edge of the beautiful Cambridgeshire countryside.
The plots benefit from outline consent for the construction of a detached dwelling within the agreed build zone. Each home will have 3-5 bedrooms and range from 2,000 s.qft-2,500 sq.ft in size. Purchasing a self-build plot enables the ultimate flexibility for your own bespoke layout, finishes and style. Each plot comes with a "passport" which will include your plot boundary and external dimensions. The plot will be serviced with water, electric, BT, foul/ storm drainage and the access road.
Please ask Cheffins if you have any queries regarding recommended architects, build partners and funding options.
Stamp Duty Saving - Stamp duty is applicable on the price of the plot only, offering significant savings compared to buying a complete new build house.
Orwell - Often regarded as one of South Cambridgeshire's most picturesque and well-connected villages, Orwell offers a harmonious blend of rural charm and modern convenience, making it an ideal setting for those seeking a tranquil lifestyle without sacrificing accessibility.
The village boasts a variety of amenities that cater to daily needs and foster a strong sense of community. The local convenience store, which also houses a post office, ensures residents have easy access to essential services. For dining and socializing, The Chequers pub offers a warm atmosphere and traditional fare. Personal care needs are met by the on-site hairdresser and nail bar.
Community life thrives around the Orwell Village Hall and Pavilion, which host a diverse array of groups and activities. These include the Orwell Film Club, Hillsiders Line Dancers, Women of Orwell social group, table tennis sessions, and carpet bowls. The village also features a recreation ground equipped with tennis courts and a cricket pitch, providing ample opportunities for outdoor leisure.
Nature enthusiasts will appreciate the proximity to the Orwell Clunch Pit, a designated Site of Special Scientific Interest, offering scenic walks and panoramic views. Additionally, the nearby National Trust Wimpole Estate provides further opportunities for exploration and recreation.

Agent Statistics (Based on 1543 Reviews) :