The UK's Largest Customer Review Website for the Property Industry
The UK's Largest Customer Review Website for the Property Industry
Back to Property Listings
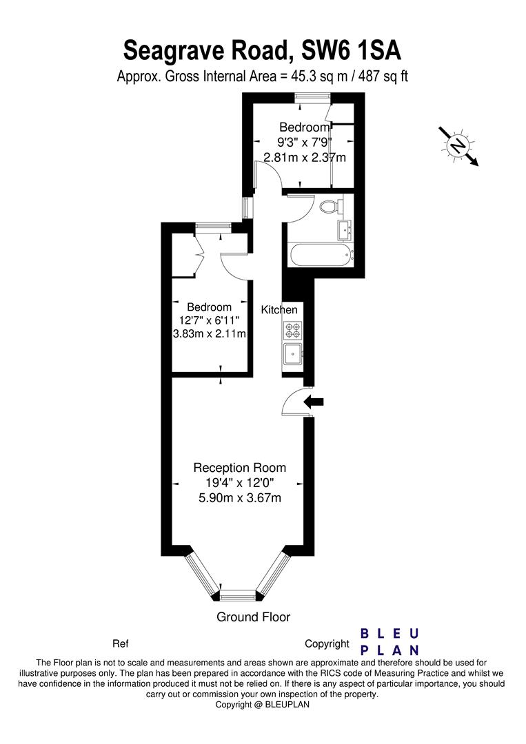
Seagrave Road, West Brompton, Earl's Court, SW6
Offered for sale is this lovely 2 bedroom ground floor apartment set within a period conversion in Earl's Court.
Offered for sale is this lovely 2 bedroom ground floor apartment set within a period conversion in Earl's Court.
The property features a bright reception room with bay window and wood flooring, there is an equipped galley kitchen, 2 bedrooms and a family bathroom.
There is a selection of shops, restaurants and cafes on North End Road and Lillie Road which are both close by as well Old Brompton Road and at Fulham Broadway which are just a short walk.
West Brompton Station is situated just a few moments walk.
Share Of Freehold: 996 years remaining
Service Charge and Ground Rent: £1300 per annum
Council tax: Band E

Agent Statistics (Based on 288 Reviews) :