The UK's Largest Customer Review Website for the Property Industry
The UK's Largest Customer Review Website for the Property Industry
Back to Property Listings
Schreiber Road, Ipswich
WELL PRESENTED two bedroom end terrace house located in East Ipswich, close to Ipswich Hospital. Renovated to a high standard with extended kitchen/diner. Decorated throughout in neutral colours with good quality carpets and gas central heating.
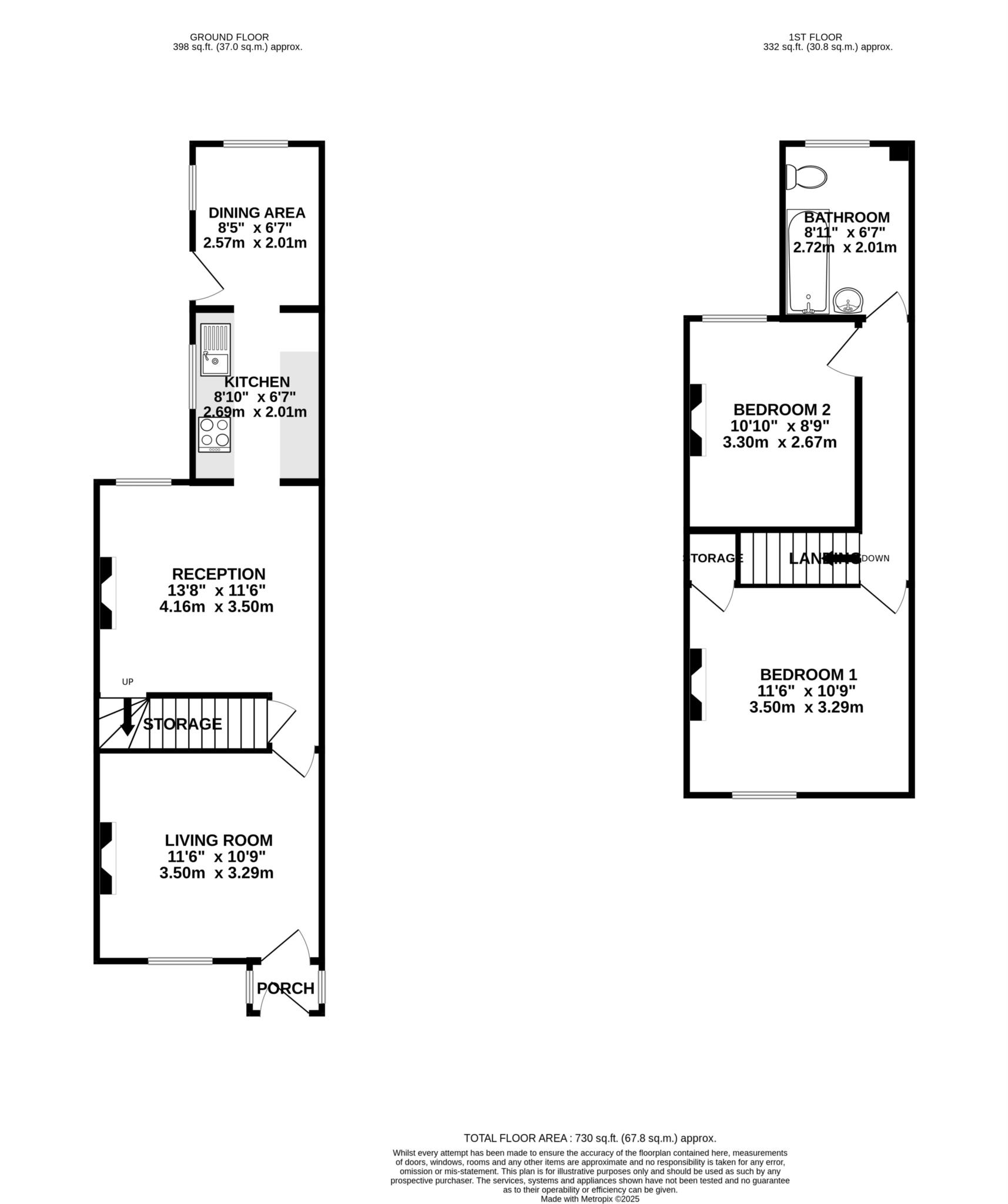
A small front garden gives access to the porch area with UPVC double glazed door. Through to the front living room with window overlooking the front garden and period fire surround. Through to rear reception room which is neutrally decorated with beige carpet and window to the rear, and handy storage cupboard below the stairs.
Beyond the reception room is the galley style kitchen with wall and base level cupboards incorporating a gas cooker and space and plumbing for freestanding washing machine and fridge freezer, The kitchen has been extended to include additional dining area to the rear, overlooking the garden, with side access to out in to the rear garden.
Upstairs there are two good size double bedrooms. The main bedroom spans the front of the property and has a integral cupboard with hanging space and period fire surround. The second bedroom has window to the rear overlooking the garden and period fire surround. In addition there is a large family bathroom with white bathroom suite, white tiling and shower over bath.
Outside there is a well fenced rear garden mainly laid to lawn and easy to maintain. At the end of the garden is a large shed with electricity supply connected. It has a large workbench to one side and windows looking back into the garden. Pedestrian side gate allows access to garden from front of the property.
There is unrestricted parking on the road outside.
Schreiber Road is a pleasant and popular residential area to the East of Ipswich, not far from Ipswich Hospital. The town centre is a short walk, as is Ipswich Waterfront and University. Situated just off Woodbridge Road there are regular buses to the hospital and beyond. Popular Primary and Secondary schools are close by, as well as several local amenities such as corner shops, pharmacy, fast food take away restaurants, hair and beauty salons and 24hr gym.
This house has a warm and welcoming feel and would make an ideal family home.
Must be viewed!
Living Room - 11'6" (3.51m) x 10'9" (3.28m)
Reception - 13'8" (4.17m) x 11'6" (3.51m)
Kitchen - 8'10" (2.69m) x 6'7" (2.01m)
Dining Room - 8'5" (2.57m) x 6'7" (2.01m)
Bedroom One - 11'6" (3.51m) x 10'9" (3.28m)
Bedroom Two - 10'10" (3.3m) x 8'9" (2.67m)
Bathroom - 8'11" (2.72m) x 6'7" (2.01m)
Notice
Please note we have not tested any apparatus, fixtures, fittings, or services. Interested parties must undertake their own investigation into the working order of these items. All measurements are approximate and photographs provided for guidance only.
Council Tax
Ipswich Borough Council, Band B
Utilities
Electric: Mains Supply
Gas: Mains Supply
Water: Mains Supply
Sewerage: Mains Supply
Broadband: FTTP
Telephone: Landline
Other Items
Heating: Gas Central Heating
Garden/Outside Space: Yes
Parking: No
Garage: No

Agent Statistics (Based on 4 Reviews) :