The UK's Largest Customer Review Website for the Property Industry
The UK's Largest Customer Review Website for the Property Industry
Back to Property Listings
Sandy Lane, Middlestown, Wakefield
An EXTENDED three bedroom detached bungalow on GENEROUS PLOT with countryside views in sought after Middlestown. VIEWING ESSENTIAL. EPC rating D68.
Situated within the sought after area of Middlestown and occupying a generous sized plot is this substantial and heavily extended three bedroom detached bungalow.
With UPVC double glazing and gas central heating, the property fully comprises of the hallway, two bedrooms, bedroom three/sitting room, shower room, kitchen with separate utility room, large dining room, living room, guest w.c., double garage incorporating utility area and office. Outside there is gated access to the front leading onto a driveway providing ample off street parking leading to the garage. There is additional space beyond the garage, currently used for twin axle caravan storage. There is a low maintenance garden to the front with plants and shrubs, stone flagged patio area and pond. To the side is an enclosed lawned garden with far reaching views of surrounding countryside.
The property lies within close proximity to local amenities including shops and schools with local bus routes nearby.
Offering further potential to extend and develop, subject to consent. An ideal family home or for those looking to downsize and an early viewing comes highly recommended.
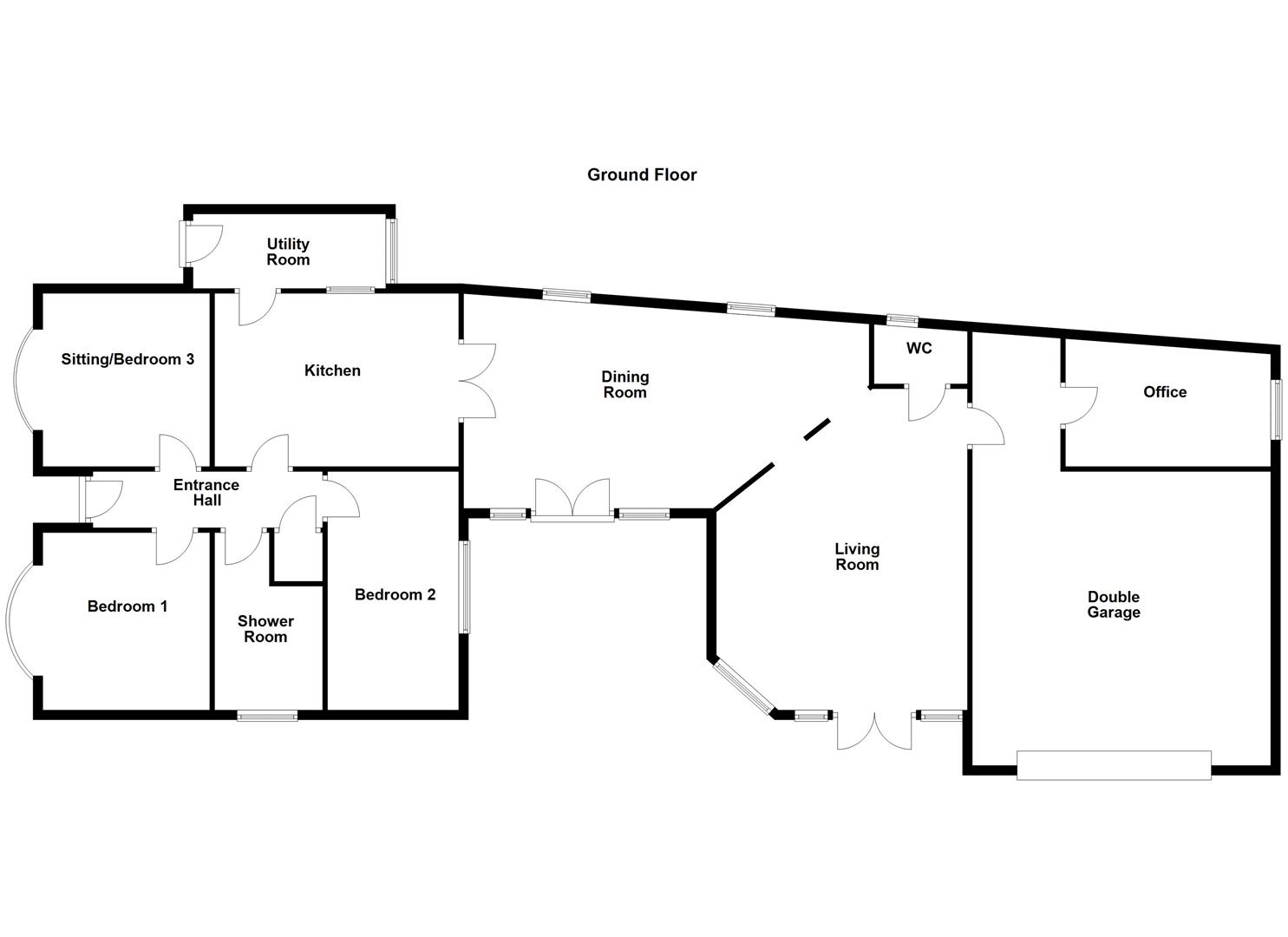
Accommodation -
Dining Room - 4.12m (min) x 4.70m (min) x 7.83m (13'6" (min) x 1 - UPVC entrance door with window panels either side, coving to the ceiling, two UPVC double glazed frosted windows to the rear, two radiators, amtico flooring and feature double sided wood burner with exposed brick surround, Yorkshire stone hearth and wooden mantle. An opening through into the living room.
Living Room - 5.61m x 2.80m (max) x 3.88m (min) (18'4" x 9'2" (m - Amtico flooring, UPVC double glazed French doors and window to the front, radiator, coving to the ceiling, amtico flooring, feature double sided wood burner with exposed brick surround, Yorkshire stone hearth and wooden mantle. Doors to the double garage and guest w.c.
Guest W.C. - 1.28m x 1.92m (4'2" x 6'3") - Low flush w.c., pedestal wash basin with mosaic tiled splash back, amtico flooring, UPVC double glazed frosted window to the rear, coving to the ceiling and radiator.
Double Garage - 6.16m x 8.24m (20'2" x 27'0") - Brick built with double up and over door, light and power. Wall and base units with work surface over incorporating stainless steel sink and drainer. Door to the office with UPVC double glazed window to the side with fitted blinds, coving to the ceiling and radiator. (Garage measures 6.03m x 6.14m plus utility area 2.36m x 1.91 plus office space 4.29m x 2.05m).
Kitchen - 5.53m x 3.75m (18'1" x 12'3") - Solid wooden wall and base units with matching work surface over incorporating stainless steel sink and drainer with mixer tap, island bar with feature marble work surface over, four ring electric hob with stainless steel cooker hood above. Space for an American style fridge/freezer and integrated dishwasher. UPVC double glazed window to the rear, radiator, amtico flooring, coving to the ceiling and doors to the utility room and inner hallway.
Utility Room - 1.45m x 4.21m (4'9" x 13'9") - Work surface over base units with plumbing for a washing machine, space for a dryer, UPVC double glazed window to the side and UPVC door to the other side.
Hallway - Side door, loft access with drop down ladder, radiator and doors to the shower room, cloaks cupboard and three bedrooms.
Bedroom One - 4.19m x 3.65m (13'8" x 11'11") - UPVC double glazed curved bay window, UPVC double glazed circular window to the front, radiator, bespoke fitted wardrobes with bedroom furniture including bedside cabinets, cupboards and dressing table.
Bedroom Two - 4.75m x 2.68m (15'7" x 8'9") - UPVC double glazed window to the side, radiator and coving to the ceiling.
Bedroom Three/Sitting Room - 4.21m x 3.63m (13'9" x 11'10") - UPVC double glazed curved bay window, feature circular UPVC double glazed window to the rear, marble fireplace with gas fire, coving to the ceiling and radiator.
Shower Room/W.C. - 3.62m x 0.79m (min) x 2.21m (max) (11'10" x 2'7" ( - Three piece suite comprising low flush w.c., walk in double shower with flush fitting mixer shower and vanity wash hand basin. Amtico flooring, heated chrome towel radiator, further radiator, coving to the ceiling and UPVC double glazed frosted window to the front.
Outside - To the front there is gated access to the driveway providing off street parking for several vehicles incorporating motorhomes or caravans leading to the double brick built garage. There is additional space beyond the garage, currently used for twin axle caravan storage, with the benefit of external power sockets. There is a timber framed shed, greenhouse, low maintenance garden area and stone flagged patio area incorporating feature pond with plants, trees and shrubs bordering. There is an outside hot tap, ideal for dog/car washing. To the side of the bungalow is a lawned garden with stunning views of the viaduct and adjoining countryside.
Council Tax Band - The council tax band for this property is C.
Floor Plans - These floor plans are intended as a rough guide only and are not to be intended as an exact representation and should not be scaled. We cannot confirm the accuracy of the measurements or details of these floor plans.
Viewings - To view please contact our Ossett office and they will be pleased to arrange a suitable appointment.
Epc Rating - To view the full Energy Performance Certificate please call into one of our local offices.

This property is marketed by

Richard Kendall Estate Agent - Ossett, Ossett, WF5
4.9/5 Rating
(1653) reviews
Agent Statistics (Based on 1653 Reviews) :