The UK's Largest Customer Review Website for the Property Industry
The UK's Largest Customer Review Website for the Property Industry
Back to Property Listings
Salisbury House, Salisbury Road, Farnborough, GU14
RPS Estates presents this rare opportunity to acquire a substantial detached property situated on the sought after Salisbury Road in Farnborough. Boasting an expansive footprint of over 3,000 sq ft, this grand home offers exceptional versatility and potential. Set on a generously proportioned plot, the property features extensive side access and a large rear garden, ideal for a growing family or for those seeking a property with scope for further development or investment.
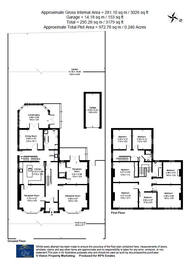
The ground floor comprises multiple spacious reception rooms including 2 large formal lounges, a bright conservatory, a dining room, and a well appointed kitchen. A ground floor bedroom adds flexibility, perfect for additional living or guest accommodation. Upstairs, the first floor offers 7 well proportioned bedrooms, two bathrooms, and ample storage, catering easily to larger families or those requiring extra space for home offices or hobbies.
Perfectly positioned on a quiet residential road, this property benefits from superb connectivity. Farnborough Main Station is within easy walking distance providing direct services to London Waterloo in under 40 minutes, ideal for commuters. Excellent road links are also close at hand with the M3 motorway just minutes away offering convenient access to London, Southampton, and the wider motorway network. The area is also served by highly regarded schools both primary and secondary, as well as a range of local amenities, parks, and leisure facilities.
This home offers significant scope for extensions (STPP). The spacious side access and large garden provide ample room for extensions or outbuildings. Structural engineering plans were completed in 2021 detailing the proposed demolition of the existing garage and construction of a luxury outbuilding comprising a gym, jacuzzi, sauna, and new garage. Additional structural designs were created for a substantial loft conversion to include a games room, cinema, and an extra double bedroom with en suite, turning this property into a 9-10 bedroom home with 5 bathrooms. Structural plans can be provided upon buyers request.
The property was once used as a care facility, the property's size, layout, and number of bedrooms and bathrooms present an exciting opportunity for conversion back into a business. With appropriate permissions, it could function as a care home, supported living residence, a boutique guest accommodation or a sizable running H.M.O. with great rental returns.
Alternatively, the property also presents an exceptional opportunity for a full redevelopment. Subject to planning permission, it could be demolished and replaced with a bespoke ultra modern home designed to your exact specification, taking full advantage of the large plot and premier location. With its excellent commuter links via Farnborough Station and the M3, this could be an ideal project for developers or self build enthusiasts seeking a future proof investment in a thriving and well connected Surrey town.
This is truly a one of a kind property that very rarely becomes available. Offering an exceptional combination of space, versatility, location, and future potential, it represents a standout opportunity in the Farnborough market. Whether for personal use, development, or investment, this remarkable home is a must see and an unmissable chance to secure a unique and prestigious address.
Early viewing is highly recommended to fully appreciate everything this gem of a property has to offer.
Council Tax Band: G
Tenure: Freehold
Parking options: Driveway, Garage, Off Street
Garden details: Enclosed Garden, Private Garden, Rear Garden
This property is marketed by

RPS Estate Agents - RPS Estate Agents, Hounslow, TW5
4.6/5 Rating
(54) reviews
Agent Statistics (Based on 54 Reviews) :