The UK's Largest Customer Review Website for the Property Industry
The UK's Largest Customer Review Website for the Property Industry
Back to Property Listings
Saffron Road, Wigston
Nestled within a leafy, sought after enclave, this distinguished Edwardian home effortlessly combines period elegance with generous proportions and timeless charm. Framed by mature trees and approached via a substantial driveway, the property boasts an imposing double fronted façade. Ample off-road parking is available, with space to accommodate several vehicles, while the surrounding greenery enhances the properties privacy all situated on a double plot. This six bedroom exceptional home is presented by Phillips George and viewings are available upon request.
Details - Nestled within a leafy, sought after enclave, this distinguished Edwardian home effortlessly combines period elegance with generous proportions and timeless charm. Framed by mature trees and approached via a substantial driveway, the property boasts an imposing double fronted façade. Ample off-road parking is available, with space to accommodate several vehicles, while the surrounding greenery enhances the properties privacy all situated on a double plot. This six bedroom exceptional home is presented by Phillips George and viewings are available upon request.
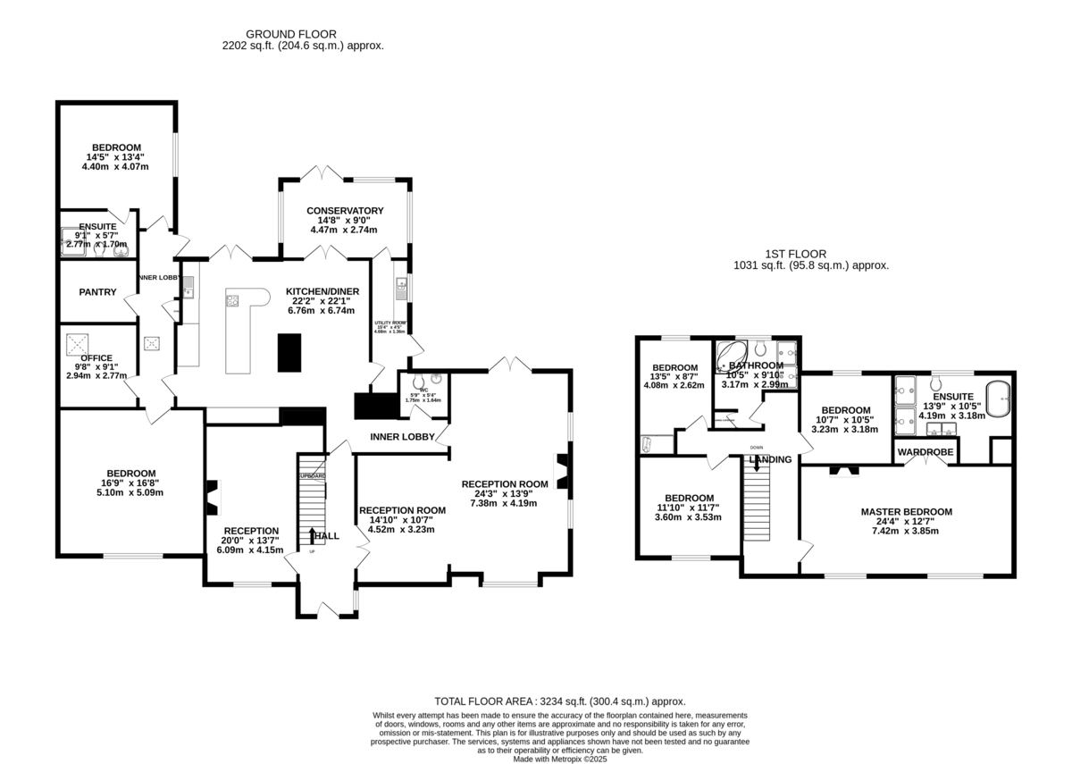
ENTRANCE PORCH & HALLWAY A welcoming entrance porch opens into a spacious hallway featuring elegant tiled flooring and generous under-stair storage. A staircase with modern glass balustrading rises to the first floor, enhancing the sense of space and light.
RECEPTION ROOM 24' 3" x 13' 9" (7.39m x 4.19m) Encompassing 2nd Reception 14.10" x 10.7" - An impressive principal reception room, flooded with natural light from a front-facing double-glazed window and rear French doors that open onto the garden. Finished with plush carpeted flooring and a central heating radiator, this space is ideal for both relaxing and entertaining.
RECEPTION ROOM TWO 20' 0" x 13' 7" (6.1m x 4.14m) A versatile second reception room offering a tranquil front aspect through a large double-glazed window. Neutrally decorated with carpeted flooring and a radiator, this space is perfect as a formal sitting room, playroom, or snug.
KITCHEN & DINING AREA 22' 2" x 22' 1" (6.76m x 6.73m) A beautifully appointed open-plan kitchen and dining area, featuring a range of high-quality fitted units, integral appliances, and inset cupboards. Double-glazed French doors lead seamlessly into the conservatory, creating a wonderful flow for indoor-outdoor living.
UTILITY ROOM A practical and well-designed utility space with ample work surfaces, fitted cupboards, and plumbing for a washing machine and tumble dryer. A double-glazed window overlooks the side elevation, with a door leading to the conservatory.
GROUND FLOOR WC Conveniently located cloakroom comprising a low-level flush WC and wash basin, with tiling for a clean and modern finish.
BEDROOM THREE (GROUND FLOOR) / GAMES ROOM 16' 9" x 16' 8" (5.11m x 5.08m) A spacious double bedroom located on the ground floor with a double-glazed window to the front, carpeted flooring, and central heating radiator - ideal for guests or multi-generational living or a games room / entertainment area.
OFFICE / STUDY 9' 8" x 9' 1" (2.95m x 2.77m) A quiet, well-proportioned space, ideal for use as a home office or study, complete with carpeted flooring and radiator.
PANTRY A substantial walk-in pantry currently fitted with shelving, providing excellent additional storage space.
BEDROOM FOUR (GROUND FLOOR) 14' 5" x 13' 4" (4.39m x 4.06m) Another generously sized ground floor bedroom with a side-facing double-glazed window, carpeted flooring, and central heating radiator.
ENSUITE (GROUND FLOOR) A modern three-piece en-suite shower room comprising a low-level flush WC, wash basin, and a fully tiled shower cubicle, finished to a high standard.
LANDING A bright first-floor landing with carpeted flooring and stylish glass balustrades, offering access to the upper-floor bedrooms and bathrooms.
MASTER BEDROOM 24' 4" x 12' 7" (7.42m x 3.84m) A luxurious master suite divided into a dressing area and sleeping quarters, complete with fitted wardrobes, front-facing double-glazed windows, central heating radiator, and plush carpeting throughout.
MASTER ENSUITE A beautifully appointed four-piece en-suite bathroom featuring a panelled bath, walk-in shower cubicle, low-level flush WC, and wash basin. Fully tiled from floor to ceiling with an opaque double-glazed window to the rear.
BEDROOM TWO 11' 10" x 11' 7" (3.61m x 3.53m) A bright double bedroom with a front-facing double-glazed window, carpeted flooring, and radiator.
BEDROOM FIVE 10' 7" x 10' 5" (3.23m x 3.18m) A well-proportioned double bedroom with a rear-facing double-glazed window, carpeted flooring, and central heating radiator.
BEDROOM SIX 13' 5" x 9' 7" (4.09m x 2.92m) Another double bedroom enjoying views over the rear garden, complete with carpeted flooring and radiator.
FAMILY BATHROOM A spacious and luxuriously finished family bathroom comprising a Jacuzzi-style bath, walk-in shower and steam room, low-level flush WC, and wash basin. Fully tiled from floor to ceiling with an opaque rear-facing double-glazed window.
OUTSIDE Set on an expansive, tree-lined plot, the property boasts beautifully landscaped gardens with a raised patio area and steps leading down to a large lawn. Surrounded by mature trees, shrubs, and planting, the garden also features a summer house and multiple storage sheds. To the front, a sweeping gravel driveway offers ample off-road parking for several vehicles, providing both practicality and kerb appeal.
•Price : £900,000
•Tenure : Freehold
•Council tax band : F
• EPC Rating: D
• Property type: Detached
• Property construction: Brick & Slate
• Number and types of room: Please refer to floorplan
• Electricity supply: mains
• Water supply: non metered
• Sewerage: Public sewer
• Heating: Gas boiler, gas central heating
• Broadband: Fibre broadband
• Mobile signal / coverage: refer to Ofcom mobile coverage checker
• Parking: Driveway
• Building safety: No known hazards
• Restrictions: None
• Rights and easements: No known relevant rights or easements
• Coastal erosion risk: none
• Planning permission: no known planning permissions or proposals for development
• Accessibility/Adaptations: Lateral living
• Coalfield or mining area: No direct impact of any mining activity
THINKING OF SELLING? We would be delighted to provide you with a free market appraisal/valuation of your own property. Please contact Phillips George to arrange a convenient appointment on 01162168178.
BUYING TO LET? Phillips George are expert, ARLA qualified letting agents with experience of all kinds of rental property across city and county. Should you need a rental valuation for your new property or on any of your existing portfolio, or simply want some advice on the current rental market, call us now on 01162168178.
DISCLAIMER AND IMPORTANT INFORMATION Phillips George Sales & Lettings for themselves and the vendors of this property whose agents they are, give notice that these particulars are not to be relied upon as a statement or representation of fact and do not constitute any part of an offer or a contract. Intending purchasers must satisfy themselves by inspection or otherwise as to the correctness of each and any statements contained in these particulars. The vendors do not make or give and neither do Phillips George Sales & Lettings (nor any person in their employment) have authority to make any representation or warranty whatsoever in relation to the property.
None of the services, systems or appliances listed or shown in this specification have been tested by us and no guarantee as to their operating ability or efficiency is given. All floorplans and dimensions have been provided as a guide for prospective buyers only, and should not be relied on as a true representation.
Current money laundering regulations require us to confirm proof of identity and residency of anyone intending to purchase. We ask for your co-operation in providing the necessary documentation in order to avoid delays in agreeing the sale.

This property is marketed by

Phillips George Estate Agents - Wigston, Leicester, LE18
4.9/5 Rating
(42) reviews
Agent Statistics (Based on 42 Reviews) :