The UK's Largest Customer Review Website for the Property Industry
The UK's Largest Customer Review Website for the Property Industry
Back to Property Listings
Ryll Grove, Exmouth
Situated within walking distance of Exmouth Town Centre, Train Station, Parks & Schools is this well presented, bay fronted, 4 bedroom semi detached house with a 27` kitchen / family room and a good sized, Southerly facing rear garden. This gas centrally heated (from Combi boiler) and uPVC double glazed property comprises, on the ground floor, of cloakroom, bay fronted and triple aspect sitting / dining room with fireplaces and the modern fitted kitchen / family room including integrated appliances and bi - fold doors leading to the rear garden. On the first floor are the 4 good sized bedrooms (Exe Estuary views from bedroom 1) and a modern fitted bathroom including a bath with separate shower cubicle. There is off road parking, including an EV point, to the front of the property. An appointment to view is strongly advised.
Accommodation
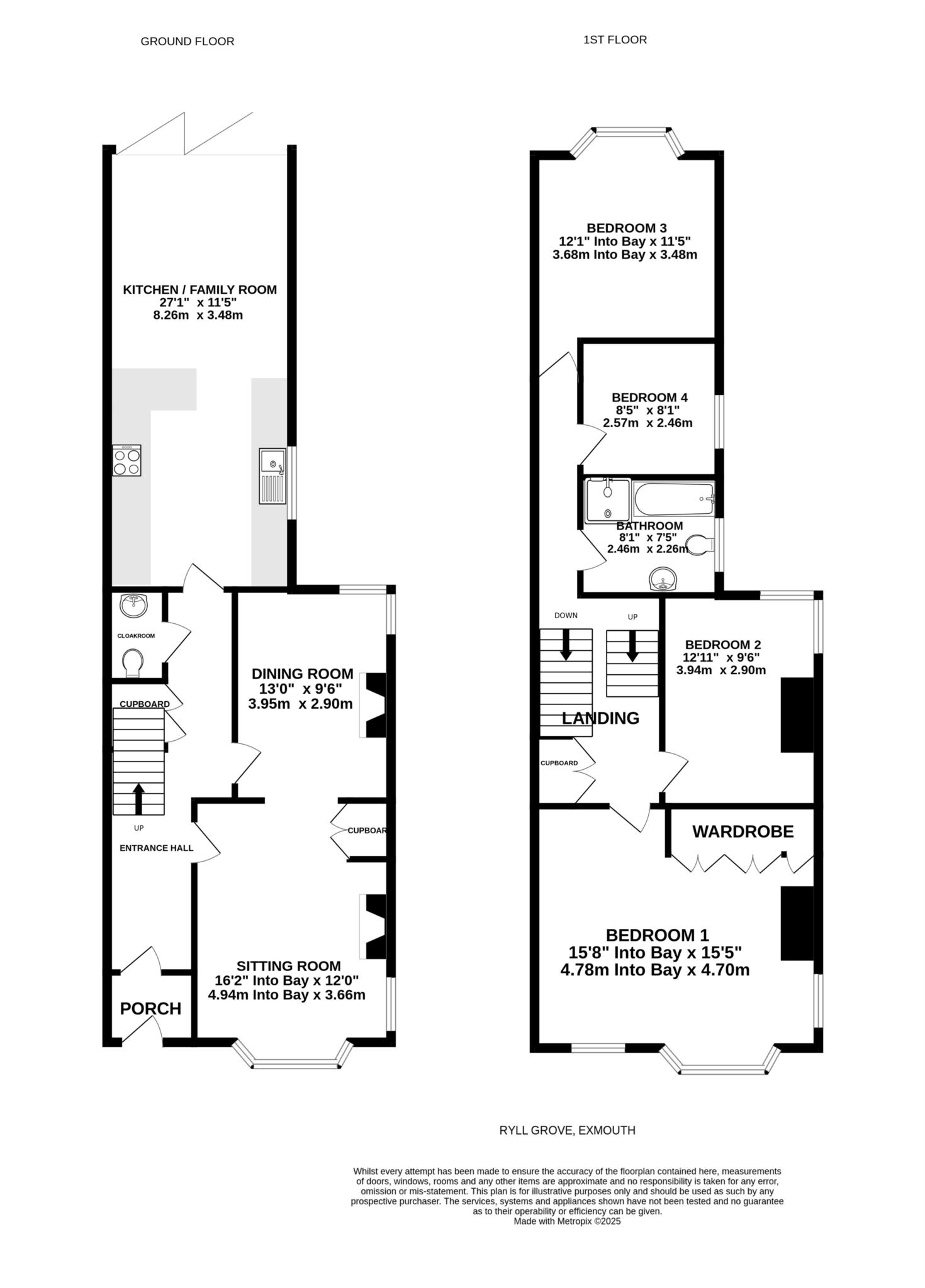
Ground Floor
Step up to hardwood front entrance door, beneath pitched and tiled storm porch, with outside lighting, leading to:
Entrance Porch
Attractive tiled flooring. Half glazed door, with stained glass pane above, leading to:
Entrance Hall
Staircase rising to first floor with useful under stairs storage cupboards. Radiator. Attractive period arch. Wooden flooring. High-level electric trip switch fuse box and electric meter. Inset ceiling lights. Doors leading to sitting / dining room, kitchen / family room and:
Cloakroom
White suite of low level WC and wall mounted wash hand basin. Tiled splash backs. Wooden flooring. Inset ceiling lights.
Sitting / Dining Room - 29'10" (9.09m) Into Bay x 12'0" (3.66m)
Sitting Area - 16'2" (4.93m) Into Bay x 12'0" (3.66m)
Dual aspect having walk - in, uPVC double glazed bay window to front and further window to side that gains Haldon Hill views. Focal point of ornate Cast iron open fire including a tiled hearth with a wooden mantle and surround. Fitted storage cupboards and shelving to recess. Radiator. Picture rail. Ornate coving. Arch leading to:
Dining Area - 13'0" (3.96m) x 9'6" (2.9m)
uPVC double glazed window to rear and side. Focal point of ornate cast iron fireplace including a tiled hearth with a wooden mantle and surround. Radiator. Picture rail. Ornate coving.
Kitchen / Family Room - 27'1" (8.26m) x 11'5" (3.48m)
uPVC double glazed window to side and bi - fold doors to rear leading to the Southerly facing rear garden. Good range of modern fitted cupboard and drawer storage units with Quartz work surfaces and tiled splash backs.Stainless steel single sink with worktop drainer and mixer tap. Built - in, 4 ring induction hob with filter hood above and eye level electric oven and microwave to side. Integrated dishwasher. Integrated fridge and freezer. Integrated washer dryer. Wall mounted, concealed, gas fired Combi boiler supplying the central heating and domestic hot water. Wooden flooring. Inset ceiling lights. Radiator.
First Floor
Half Landing
Staircase rising to landing. Inset ceiling lights. Attractive period arch. Smoke alarm. Doors leading to 2 bedrooms and bathroom.
Landing
Useful linen storage cupboards. Stain glass skylight. Smoke alarm. Doors leading to:
Bedroom 1 - 15'8" (4.78m) Into Bay x 15'5" (4.7m)
Dual aspect having walk - in uPVC double glazed bay window to front, further window to front and window to side gaining Exe Estuary and Haldon Hill views. Good range of fitted wardrobes to one wall. Radiator. Ceiling coving. Inset ceiling lights.
Bedroom 2 - 12'11" (3.94m) x 9'6" (2.9m)
uPVC double glazed window to rear and side. Radiator.
Bedroom 3 - 12'1" (3.68m) Into Bay x 11'5" (3.48m)
Walk - in uPVC double glazed bay window to rear. Radiator..
Bedroom 4 - 8'5" (2.57m) x 8'1" (2.46m)
uPVC double glazed window to side. Radiator.
Bathroom - 8'1" (2.46m) x 7'5" (2.26m)
2 obscure uPVC double glazed windows to side. Modern fitted, 4 piece white suite comprising panelled bath with mixer tap and shower attachment, shower cubicle with thermostatically controlled shower unit including rainfall water head and tiling to ceiling height, low level WC and pedestal wash hand basin. Heated towel rail. Shaver socket. Inset ceiling lights. Extractor fan. Access to insulated loft space that, subject to gaining the correct planning permissions, could be converted to provide further living accommodation.
Externally
To the front of the property is a brick paved parking area, including an EV charging point, that provides off road parking. Brick and rendered boundary walls to either side. Steps leading up to front entrance door.
Southerly Facing Rear Garden
Another feature of this property is a larger than average, and Southerly facing enclosed rear garden. There is a patio area immediately adjacent the property and the further patio area to the rear of the garden with power point and Water blade, both being ideal areas for outdoor dining and sitting during the fine weather. The remainder of the gardens are then laid to lawn with shrub and herbaceous beds and borders that provide year round interest and colour. Outside power points. Outside lighting. Awning. Brick wall and timber panel fenced boundaries. Front pedestrian access to side of property via timber garden gate.
Tenure
The property is FREEHOLD
Services
All mains services are connected. Council Tax Band D
Mortgage Assistance
We are pleased to recommend Meredith Morgan Taylor, who would be pleased to help no matter which estate agent you finally buy through. For a free initial chat please contact us on 01395 222350 to arrange an appointment
Your home may be repossessed if you do not keep up repayments on your mortgage
Meredith Morgan Taylor Ltd is an appointed representative of The Openwork Partnership, a trading style of Openwork Ltd which is authorised and regulated by the Financial Conduct Authority (FCA).
Agents Note
These are draft particulars and are awaiting vendors verification. Please note the current vendors had plans drawn up for a loft conversion in 2020, details of which are available upon request.
Directions
From our prominent Town Centre office, proceed down Rolle Street, past The Strand, and turn right into The Parade. Continue into Exeter Road turning right into North Street, just past The Library. Proceed over the crossroads into Ryll Grove where the property will be found on the right hand side, clearly identified by our For Sale sign.
what3words /// budget.ruled.allow
Notice
Please note we have not tested any apparatus, fixtures, fittings, or services. Interested parties must undertake their own investigation into the working order of these items. All measurements are approximate and photographs provided for guidance only.
Utilities
Electric: Mains Supply
Gas: Mains Supply
Water: Mains Supply
Sewerage: Mains Supply
Broadband: None
Telephone: None
Other Items
Heating: Gas Central Heating
Garden/Outside Space: Yes
Parking: Yes
Garage: No

Agent Statistics (Based on 735 Reviews) :