The UK's Largest Customer Review Website for the Property Industry
The UK's Largest Customer Review Website for the Property Industry
Back to Property Listings
Rye Way, Foxbar, PA2
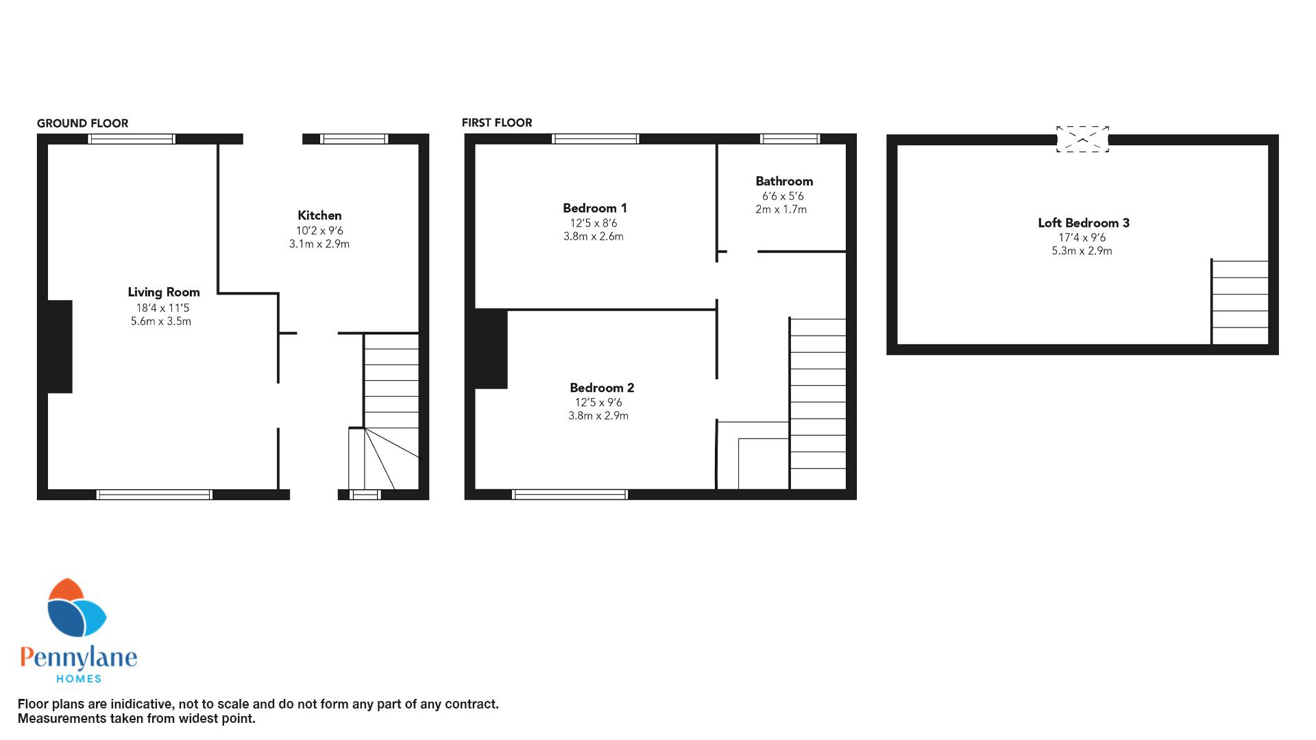
The property is accessed via a welcoming entrance hallway, where the current owners have made fantastic use of space, installing convenient under stair storage. The spacious lounge, to the front of the property has a feature fireplace and dual aspect windows, flooding the room with natural light. There is ample space for a designated dining area making this a perfect space for entertaining. The kitchen, to the rear has been recently upgraded to include a combination of modern white wall and floor mounted units with contrasting worktop and integrated oven, halogen hob and chimney style hood. An external door within the kitchen provides access to the rear garden.
On the upper level there are two spacious double bedrooms and family bathroom comprising modern three piece suite with shower over the bath. A fixed staircase within the upper hallway offers access to the well presented loft accommodation which would make a perfect playroom or perhaps home office.
The property benefits from gas central heating and double glazing throughout.
Externally there are private garden grounds to front, side and rear with wooden garden shed offering convenient storage.
The property is situated in the popular Foxbar area of Paisley. Local amenities are available within easy reach and the area is served by fantastic public transport links. Local schooling is readily available with Heriot Primary located minutes walk away and Gleniffer High School only slightly further away.
Notice
Please note we have not tested any apparatus, fixtures, fittings, or services. Interested parties must undertake their own investigation into the working order of these items. All measurements are approximate and photographs provided for guidance only.
Council Tax
Renfrewshire Council, Band B
Utilities
Electric: Mains Supply
Gas: Mains Supply
Water: Mains Supply
Sewerage: Mains Supply
Broadband: Unknown
Telephone: Unknown
Other Items
Heating: Gas Central Heating
Garden/Outside Space: Yes
Parking: No
Garage: No

Agent Statistics (Based on 197 Reviews) :