The UK's Largest Customer Review Website for the Property Industry
The UK's Largest Customer Review Website for the Property Industry
Back to Property Listings
Russell Chase, Binfield
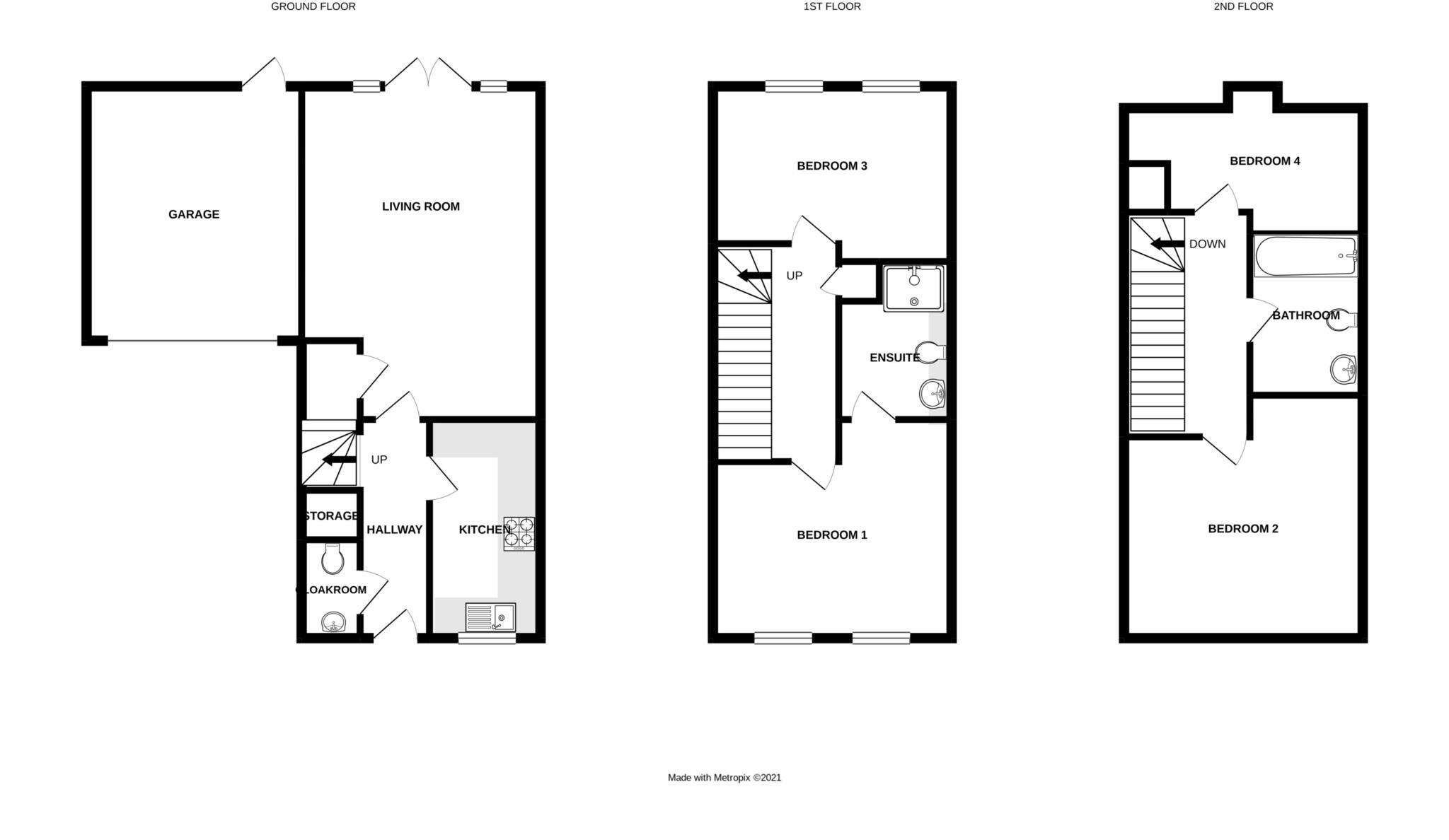
** BINFIELD ** This modern four bedroom semi-detached town house located in the highly desirable Popeswood Grange development close to Binfield Village. The property is finished to an extremely high standard and has a downstairs cloakroom, modern fitted kitchen with integrated appliances, living/dining room with doors to rear garden, storage cupboard, stairs to first floor, master bedroom with en-suite, further bedroom, stairs to second floor, family bathroom and two further bedrooms. The property benefits from off road parking, garage and private rear garden, Available now on an unfurnished basis.
Holding Deposit is: ?553.00
Five Week Deposit: ?2769.
Council Tax Band: ?2,601.49 Band E - 2025 to 2026
EPC Band: B
Redress scheme provided by: Property Mark (M0212823)
Client Money Protection provided by: Property Mark (C0123246)
Entrance Hall
Doors to all ground floor rooms, stairs to first floor
Downstairs Cloakroom
Low level WC, wash hand basin with mixer tap, radiator.
Kitchen - 12'6" (3.81m) x 6'4" (1.93m)
Front elevation double glazed, a range of eye and base level units with composite work surfaces, integrated oven and grill, washing machine, dishwasher and induction hob with extractor fan over, tiled flooring.
Living/Dining Room - 19'0" (5.79m) x 13'7" (4.14m)
Rear elevation double glazed french doors leading to rear garden, rear elevation double glazed windows, TV point, amtico flooring.
First Floor Landing
Doors to all rooms
Master Bedroom - 13'7" (4.14m) x 10'1" (3.07m)
Front elevation double glazed window, fitted wardrobe with hanging space and shelving, radiator, carpeted, door to en-suite.
En-Suite
Low level wc, wash hand basin, walk in shower cubicle, heated towel rail, tiled floor, part tiled walls.
Bedroom Three - 13'7" (4.14m) x 9'0" (2.74m)
Rear elevation double glazed window, radiator, carpeted.
Stairs to Second Floor
Doors to all rooms
Bedroom Two - 13'7" (4.14m) x 9'8" (2.95m)
Front elevation double glazed window, radiator, carpeted.
Family Bathroom
Low level WC, vanity unit with wash hand basin with mixer tap, panel enclosed bath with shower over, part tiled walls, tiled floor, heated towel rail.
Bedroom Four - 13'7" (4.14m) x 5'11" (1.8m)
Rear elevation double glazed window, radiator, carpeted, airing cupboard housing the water tank.
Outside
To the Front
Courtesy footpath to front door
To the Rear
Patio area, mainly laid to lawn, side gate and access to garage.
Parking
Driveway Parking
Garage
Single garage with up and over door with power and lighting, door to garden.
Notice
All photographs are provided for guidance only.
Redress scheme provided by: Property Mark (M0212823)
Client Money Protection provided by: Property Mark (C0123246)
Utilities
Electric: Mains Supply
Gas: Mains Supply
Water: Mains Supply
Sewerage: Mains Supply
Broadband: FTTP
Telephone: Landline
Other Items
Heating: Gas Central Heating
Garden/Outside Space: Yes
Parking: Yes
Garage: Yes

Agent Statistics (Based on 2455 Reviews) :