The UK's Largest Customer Review Website for the Property Industry
The UK's Largest Customer Review Website for the Property Industry
Back to Property Listings
Rowntree Way, Saffron Walden
A well appointed three bedroom semi-detached home positioned in a popular residential location within the town. Enjoying private rear gardens, the property also benefits from detached garage, off street parking space and recently refitted kitchen. Offered chain free.
Saffron Walden is an historic market town with a magnificent Parish Church, numerous period properties and a wide tree-lined High Street. An extensive range of shops, schools, social and sporting amenities are all accessible within the town and the Golf Course and Sports Centre lie on the town's outskirts. Road links to London and Cambridge (16 miles) are accessible at Junctions 8 and 9 of the M11. Train services to London (Liverpool Street - 57 mins) run from Audley End Station about 2 miles away.
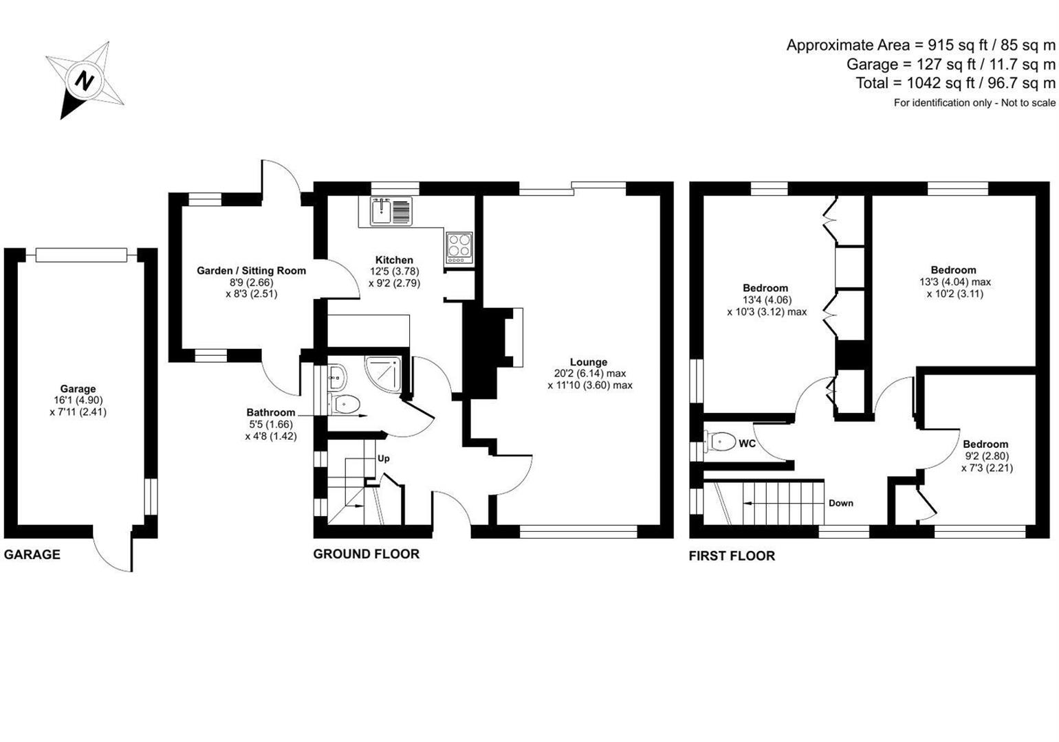
Ground Floor -
Entrance Hall - Entrance door with inset glazed panels, obscure double glazed window to the side aspect, stairs leading to the first floor and doors to adjoining rooms.
Shower Room - Comprising walk-in shower enclosure with electric shower, low level WC, ceramic wash basin with vanity cupboard beneath, tiled walls and obscure double glazed window to the side aspect.
Lounge - Dual aspect with double glazed window to the front and sliding patio doors to the rear, fireplace with quartz hearth and electric fire.
Kitchen - Recently refitted with a range of base and eye level units with worktop over, stainless steel sink with mixer tap, part-tiled walls, space for dishwasher, fridge freezer, washing machine and tumble dryer, double glazed window to the rear aspect. Part-glazed door to:-
Garden Room - Dual aspect with double glazed windows to the front and rear together with part-glazed doors to front and rear.
First Floor -
Landing - Double glazed window to the front aspect and doors to adjoining rooms.
Bedroom 1 - Dual aspect with double glazed windows to the rear and side, built-in storage cupboard with the addition of two integrated wardrobes with drawers.
Bedroom 2 - Double glazed window to the rear aspect.
Bedroom 3 - Double glazed to the front aspect, built-in storage cupboard.
Wc - Obscure double glazed window to the side aspect, low level WC.
Outside - To the front of the property is a paved walkway leading to the front door and the garden predominantly laid to lawn with a range of shrubs, flowers and trees bordering. The south westerly facing rear garden is predominantly laid to lawn with a patio, perfect for al fresco entertaining, and shrub borders.
Detached Garage - Accessed via Hunters Way. Fitted with an up and over door, power and lighting connected and parking space in front.
Viewings - By appointment through the Agents.

This property is marketed by

Cheffins - Saffron Walden, Saffron Walden, CB10
4.9/5 Rating
(1530) reviews
Agent Statistics (Based on 1530 Reviews) :