The UK's Largest Customer Review Website for the Property Industry
The UK's Largest Customer Review Website for the Property Industry
Back to Property Listings
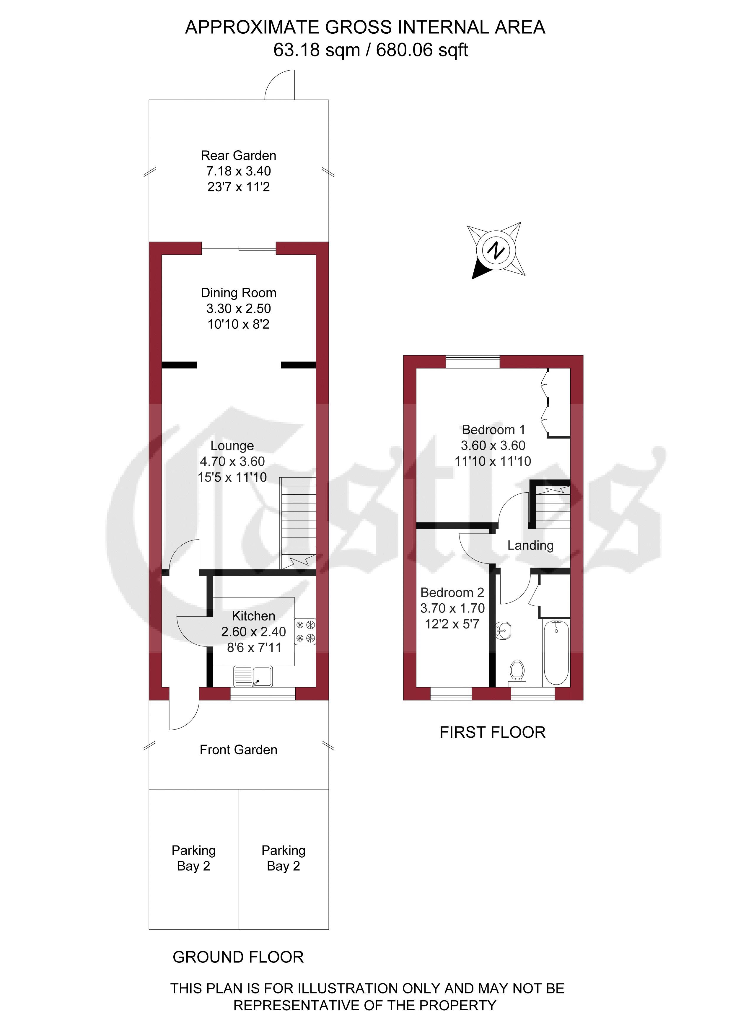
Rossington Close, Enfield
A newly decorated and extended two bedroom modern house located off Hoe Lane close to Great Cambridge Road and approximately 1m from Turkey Street train station (serving London Liverpool Street). The property is offered for sale in good decorative order and would suit a first time buyer. Viewing is highly recommended. Features include: 2 allocated parking spaces, double glazing, gas central heating, extended living room, rear garden, new 1st floor bathroom, 2 bedrooms.

This property is marketed by

Castles Estate Agents (London) - Enfield, Enfield, EN3
4.8/5 Rating
(940) reviews
Agent Statistics (Based on 940 Reviews) :