The UK's Largest Customer Review Website for the Property Industry
The UK's Largest Customer Review Website for the Property Industry
Back to Property Listings
Rose Road, Harborne, Birmingham, B17
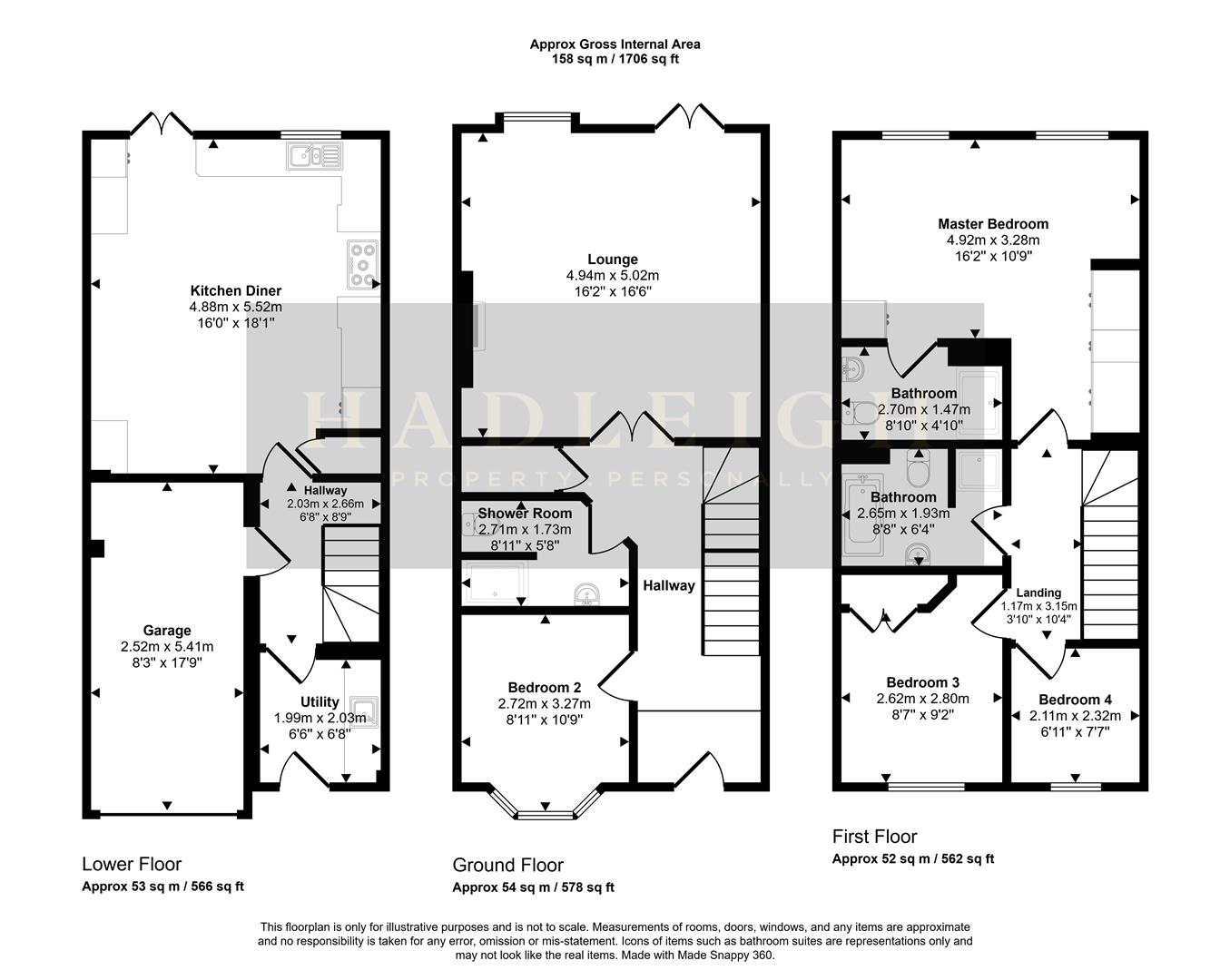
Hadleigh Estate Agents are delighted to offer this substantial four bedroom town house for sale. Offered with no upward chain the property is set over three floors, further benefitting from off road parking and garage.
In brief the property offers a spacious and modern kitchen diner, along with utility room and internal access to the garage on the lower ground floor. On the ground floor is your main front door access, with generous hallway, spacious lounge, additional bedroom and shower room. To the first floor is the master bedroom boasting ensuite shower room, a further two bedrooms and family bathroom. The property boasts a private garden to the rear.
Location - Rose Road is conveniently located for easy access into Harborne High Street, offering an array of bars, restaurants and local shopping facilities. Excellent transport links are on offer into Birmingham City Centre, nearby Queen Elizabeth Hospital and University of Birmingham. Leisure facilities include Harborne Leisure Centre, Harborne Golf Club and the ever popular Edgbaston Priory Club. There are many local private and state schools nearby, including Blue Coat School, Harborne Primary and Chad Vale.
Kitchen Diner - This spacious kitchen diner boasts a range of fitted base and wall units, further benefitting from integrated appliances and AGA. Partially tiled splashbacks, tiled flooring and ceiling spotlights. Central heating radiator, window to the rear elevation and doors leading to the patio garden.
Utility - With partially glazed internal door and obscure glazed door to the front, the utility room offers wall units, sink and plumbing for utilities. Tiled flooring, central heating radiator and ceiling spotlights.
Lower Ground Hallway - Tiled flooring, central heating radiator, ceiling spotlights, internal access to garage and stairs to upper ground accommodation.
Hallway - With front door access, the spacious and bright hallway offers stairs to the top floor accommodation, bedroom two, shower room and lounge. Further benefitting from internal storage, ceiling light points, central heating radiator and coving.
Lounge - Entering via partially glazed double doors, the spacious lounge offers a feature fireplace and carpeted flooring. Window and French doors to the rear elevation, two ceiling light points benefitting from ceiling Rose and two central heating radiators.
Bedroom Two - Bay window to the front elevation, central heating radiator, carpeted flooring and ceiling light point. This fantastic bedroom could also be used as an ideal home office or play room.
Shower Room - Partially tiled bathroom suite, with low level flush WC, walk in mains shower cubicle, hand wash basin, towel radiator and ceiling spotlights.
Landing - With a continuation of wooden bannister the top floor landing offers loft access, ceiling light point and carpeted flooring.
Master Bedroom - A fantastic master suite, boasting fitted wardrobes, cabinets and drawers offering ample storage space. Access to the master ensuite, two windows to the rear elevation and two central heating radiators. Carpeted flooring, ceiling light point and spotlight.
Ensuite - Low level flush WC, hand wash basin and walk in mains shower. Extractor fan, towel radiator and being partially tiled.
Bedroom Three - An excellent double bedroom boasting built in wardrobes, window to the front elevation and central heating radiator. Carpeted flooring, ceiling light point and coving.
Bedroom Four - Large single bedroom offering window to the front elevation, carpeted flooring, central heating radiator and ceiling light point.
Bathroom - Family bathroom offering walk in mains shower cubicle, additional bath, low level flush WC and handwash basin. Towel radiator, extractor fan and ceiling spotlights.
Garage - Boasting an up and over electric garage door and internal access. The garage offers lighting and electrics.
Garden - Private rear garden predominantly consisting of block paved patio area, fenced boundaries and mature shrubs and trees.
General Information - We have been advised the following information, however we advise for you to confirm this with your legal representative as Hadleigh Estate Agents cannot be held accountable.
Tenure - Freehold
EPC - C
Council Tax Band - G

This property is marketed by

Hadleighs Estate Agents & Surveyors - Hadleigh Estate Agents and Surveyors, Birmingham, B17
4.6/5 Rating
(43) reviews
Agent Statistics (Based on 43 Reviews) :