The UK's Largest Customer Review Website for the Property Industry
The UK's Largest Customer Review Website for the Property Industry
Back to Property Listings
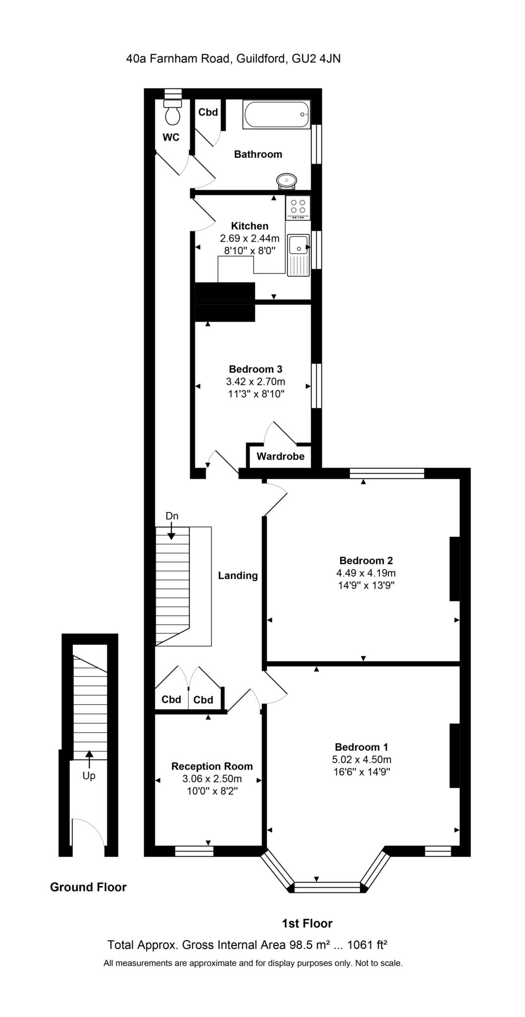
Room 2: 40A Farnham Road, Guildford, GU2 4JN
SPECIAL OFFER: ?100 CASH BACK IF YOU SECURE A ROOM EARLY WITH US.
ROOM 1 - LET TO A SINGLE OCCUPANT
ROOM 2 - AVAILABLE AND VACANT ON 18 JULY 2025 FOR A SINGLE OCCUPANT ONLY. NOT AN ENSUITE. THIS ROOM IS HUGE WITH ITS OWN FRIDGE FREEZER, TV AND SOFA. PLUS DINING TABLE AND CHAIRS.
ROOM 3 - LET TO A COUPLE
SPECIFIC TO THIS PROPERTY: Massive rooms in the town centre. These rooms are like bed-sit rooms with their own couch/chairs and loads of storage.
This is a large Victorian flat on the upper floor of the building. THE BATHROOM IS FULLY REFURBISHED AND THE HOUSE PAINTED THROUGHOUT AND NEW CARPETS TO BE FITTED SHORTLY.
COMFORTABLE FURNISHED ROOMS IN PROFESSIONAL HOUSE
PECIFIC TO THIS PROPERTY:
INCLUDES:
1. ALL UTILITY BILLS: Council Tax, TV License for communal area, Virgin (Fast Speed Fibre Optics) Wireless Broadband.
2. GARDEN: done when necessary, EVERY 2-4 WEEKS.
3. FULLY FURNISHED TO INCLUDE ALL APPLIANCES, AND COMMUNAL TV. TV`s provided in some bedrooms.
4. ROOM AND COMMUNAL AREA PROFESSIONALLY CLEANED before you move in.
5. FORTNIGHTLY CLEANING OF the COMMUNAL AREA.
6. Optional bedroom cleaning for an extra ?25 per clean.
TERMS: 3 6-month contracts. Flexible arrangements to upgrade or downgrade within the house and portfolio.
AN EARLY RELEASE FROM THE CONTRACT IS POSSIBLE PROVIDED A SUITABLE REPLACEMENT IS FOUND.
Income multiples to pass references are 2.5 x the annual rent.
Guarantors required in some circumstances and required for the length of stay. Income multiple is 3 x annual rent.
DEPOSIT AND FEES:
1. DEPOSIT SECURED in the DPS. Maximum 5 weeks only
2. ZERO deposit scheme AVAILABLE.
3. Free renewals. No additional references required if moving within the household or other portfolio houses.
Documents required:
1. PHOTO ID (Passport or driving license)
2. You must provide proof of the right to live/work/study in the UK.
3. Signed Employment contract and previous landlord reference.
Documents Provided:
1. An individual Agreement.
2. Terms of Business.
3. House rules.
4. Proof of Deposit registration.
Office Hours: Weekdays from 10-6 pm or Sat 10-12 pm.
Closed on SUNDAYS
Council tax band: B
Notice
All photographs are provided for guidance only.
Redress scheme provided by: The Property Ombudsman (D04026)
Client Money Protection provided by: Client Money Protect (CMP011678)
Council Tax
Guildford Borough Council, Band D
Utilities
Electric: Mains Supply
Gas: None
Water: Mains Supply
Sewerage: None
Broadband: None
Telephone: None
Other Items
Heating: Gas Central Heating
Garden/Outside Space: No
Parking: Yes
Garage: No

Agent Statistics (Based on 0 Reviews) :