The UK's Largest Customer Review Website for the Property Industry
The UK's Largest Customer Review Website for the Property Industry
Back to Property Listings
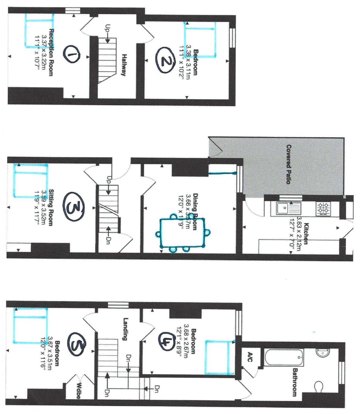
Room 1, 30 Springfield Road, Guildford, Surrey GU1 4DP
?100 early-occupation discount available for move-in by 15 February 2026
Room 1: AVAILABLE ON 1ST OF FEBRUARY 2026 FOR A SINGLE OCCUPANT
Room 2: AVAILABLE ON 1ST OF FEBRUARY 2026 FOR A SINGLE OCCUPANT
Room 3: AVAILABLE ON 1ST OF FEBRUARY 2026 FOR A SINGLE OCCUPANT
Room 4: AVAILABLE ON 1ST OF FEBRUARY 2026 FOR A SINGLE OCCUPANT
Room 5: Let to a COUPLE
MAXIMUM 6 OCCUPANTS WITH 2 BATHROOMS FOR SHARING (3 PEOPLE PER BATHROOM)
TOP QUALITY FURNISHED ROOMS IN PROFESSIONAL CO-LIVING HOMES- WORK SPACES PROVIDED AND SUPPORTED WITH EXCELLENT WI-FI WITH YOUFBRE. SHARE COMMUNAL SPACES.
COMFORTABLE FURNISHED ROOMS IN PROFESSIONAL HOUSE
INCLUDES:
1. ALL UTILITY BILLS: Council Tax, TV License for communal area, Virgin (Fast Speed Fibre Optics) Wireless Broadband.
2. GARDEN: done when necessary, EVERY 2-4 WEEKS.
3. FULLY FURNISHED TO INCLUDE ALL APPLIANCES, AND COMMUNAL TV. TV`s provided in some bedrooms.
4. ROOM AND COMMUNAL AREA PROFESSIONALLY CLEANED before you move in.
5. FORTNIGHTLY CLEANING OF COMMUNAL AREA.
6. Optional bedroom cleaning for an extra ?25 per clean.
TERMS: 3 6-month contracts. Flexible arrangements to upgrade or downgrade within the house and portfolio.
AN EARLY RELEASE FROM THE CONTRACT IS POSSIBLE PROVIDED A SUITABLE REPLACEMENT IS FOUND.
Income multiples to pass references are 2.5 x the annual rent.
Guarantors required in some circumstances and required for the length of stay. Income multiple is 3 x annual rent.
DEPOSIT AND FEES:
1. DEPOSIT SECURED in the DPS. Maximum 5 weeks only
2. ZERO deposit scheme AVAILABLE.
3. Free renewals. No additional references required if moving within the household or other portfolio houses.
Documents required:
1. PHOTO ID (Passport or driving license)
2. You must provide proof of the right to live/work/study in the UK.
3. Signed Employment contract and previous landlord reference.
Documents Provided:
1. An individual Agreement.
2. Terms of Business.
3. House rules.
4. Proof of Deposit registration.
FOR A VIRTUAL OR PHYSICAL VIEWING: Please REGISTER ON THE WEBSITE NEW LEAF HOMES DOT COM ASAP. (Find home page orange tab)
Office Hours: Weekdays from 10-6 pm or Sat 10-12 pm.
Closed on SUNDAYS
Council tax band: D
Notice
All photographs are provided for guidance only.
Redress scheme provided by: The Property Ombudsman (D04026)
Client Money Protection provided by: Client Money Protect (CMP011678)
Utilities
Electric: Unknown
Gas: Unknown
Water: Mains Supply
Sewerage: Mains Supply
Broadband: Unknown
Telephone: Unknown
Other Items
Heating: Gas Central Heating
Garden/Outside Space: Yes
Parking: No
Garage: No

Agent Statistics (Based on 0 Reviews) :