The UK's Largest Customer Review Website for the Property Industry
The UK's Largest Customer Review Website for the Property Industry
Back to Property Listings
Roman Way, Littlebury, Saffron Walden
A substantial detached home which sits comfortably within a 0.2 of an acre plot. The property offers bright and well proportioned accommodation, together with ample off street parking, double garage and a secluded garden with a studio/home office.
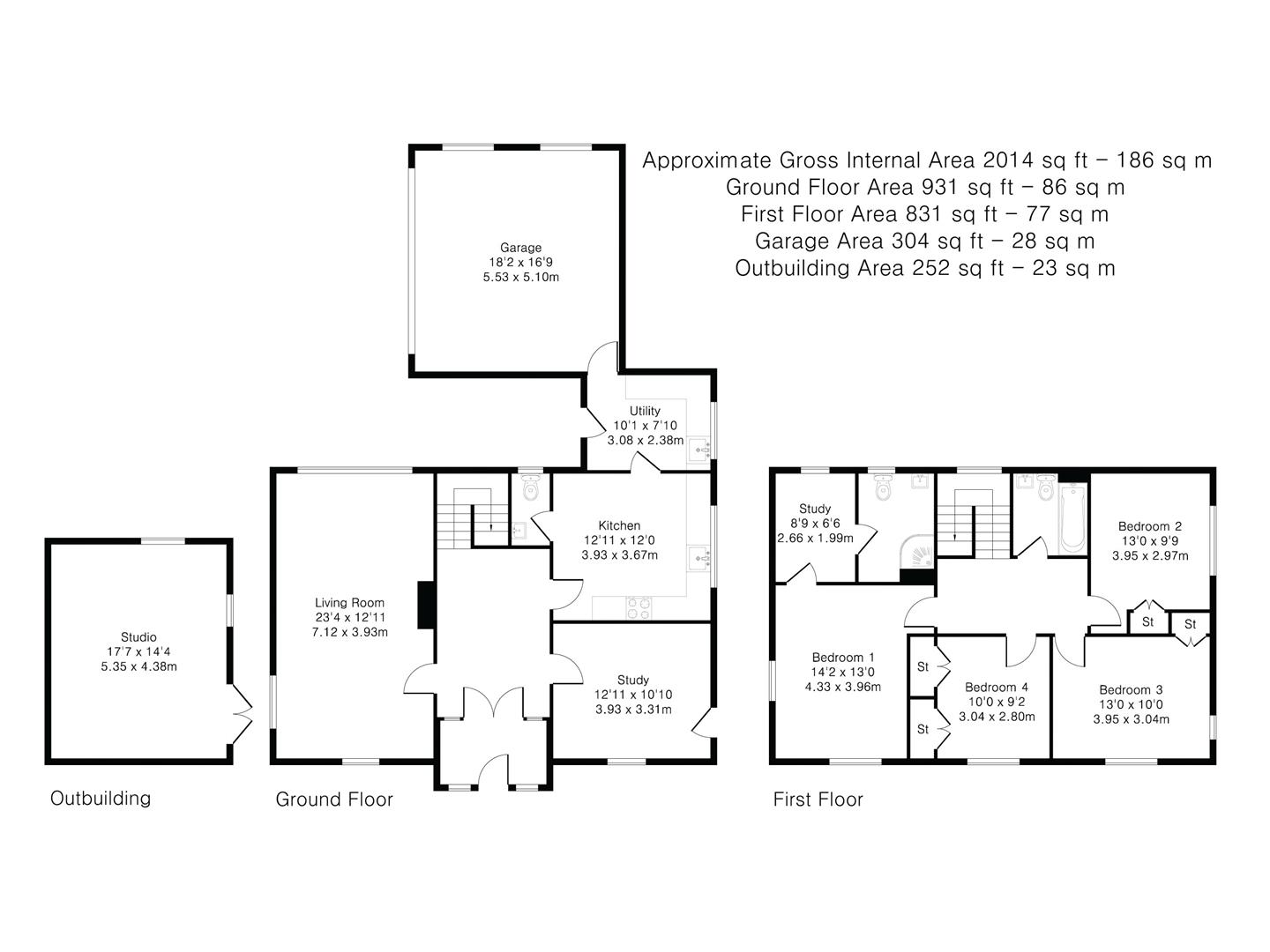
Ground Floor -
Entrance Porch - Entrance door and obscure glazed windows to the front aspect. Glazed doors opening to:
Hallway - Staircase rising to the first floor with understair storage cupboard and doors to adjoining rooms.
Cloakroom - Comprising ceramic wash basin, low level WC and obscure glazed window to the rear aspect.
Sitting/Dining Room - Windows to the front, rear and side aspects, feature fireplace with wood burning stove and bespoke fitted cabinets.
Study - Window to the front aspect and glazed door to the side aspect.
Kitchen/Breakfast Room - Fitted with a range of base and eye level units with worktop space over, stainless steel sink, integrated dishwasher, Bosch electric oven and four ring hob with extractor hood over and space for fridge freezer. Window to the side aspect and glazed door to:
Utility Room - Fitted with base and eye level units, butler sink, space and plumbing for washing machine and space for free standing freezer. Window to the side aspect and obscure glazed door opening to the rear garden. Internal door to the double garage.
First Floor -
Landing - Window to the rear aspect, doors to adjoining rooms and access to the loft space.
Bedroom 1 - Windows to the front and side aspects and door to:
Dressing Room/Study - Window to the rear aspect and door to:
En Suite - Comprising ceramic wash basin with vanity unit beneath, low level WC, corner shower enclosure and obscure glazed window to the rear aspect.
Bedroom 2 - Windows to the front and side aspects and fitted wardrobe.
Bedroom 3 - Window to the side aspect and fitted wardrobe.
Bedroom 4 - Window to the front aspect and fitted wardrobes.
Bathroom - Comprising panelled bath with shower over, ceramic wash basin, low level W and heated towel rail.
Outside - To the front of the property the garden is predominantly laid to lawn with a secluded patio area. There is side access to the driveway providing off-street parking for several vehicles and access to the double garage. The rear garden is predominantly laid to lawn with mature trees and hedges bordering providing a good degree of seclusion. In addition, there is a detached home office/studio.
Home Office/Studio - Power and lighting connected, glazed French doors and window to the side elevation.
Double Garage - Up and over door, power and lighting connected and window to the rear elevation.
Agent's Notes - For more information on this property, please refer to the Material Information brochure that can be found on our website.
Viewings - By appointment through the Agents.

This property is marketed by

Cheffins - Saffron Walden, Saffron Walden, CB10
4.9/5 Rating
(1530) reviews
Agent Statistics (Based on 1530 Reviews) :