The UK's Largest Customer Review Website for the Property Industry
The UK's Largest Customer Review Website for the Property Industry
Back to Property Listings
Rolle Street, Exmouth
A spacious two bedroom, first and second-floor maisonette, conveniently located in Exmouth town centre close to a wide range of amenities and just a short walk from the seafront. Benefiting from double glazing and electric heating, the accommodation briefly comprises an entrance lobby, spacious hallway, lounge/dining room, kitchen, two double bedrooms, an en-suite shower room/WC, and a separate bathroom/WC.
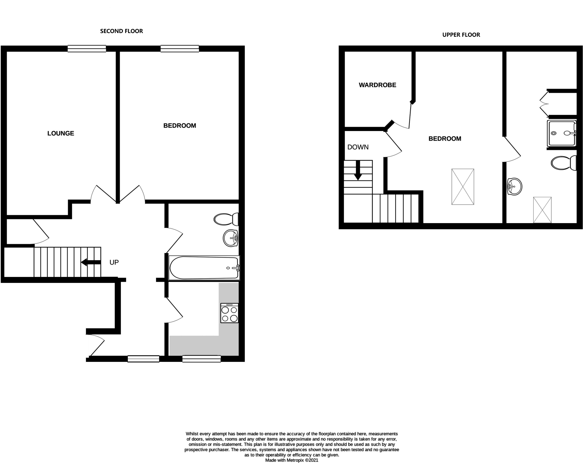
Accommodation
Ground Floor
Communal entrance to communal hallway with stairs rising to the second floor. Private entrance door to:
Entrance Lobby
Double glazed window to the rear. Remote entry phone. Electric heater. Door to the kitchen. Opening to:
Reception Hall
A spacious hallway. Stairs to the upper floor. Understairs storage cupboard. Doors to:
Lounge/Dining Room - 16'2" (4.93m) Max x 11'2" (3.4m)
Double glazed window to the front. Electric storage heater. TV aerial point. Telephone point. Display surface with storage cupboards below.
Kitchen - 8'1" (2.46m) x 7'7" (2.31m)
Double glazed window to the rear. Range of base cupboard and drawer units. Wall-mounted units. Work top surface. Tiled splash back. Inset circular sink unit and drainer. 4 ring ceramic hob. Integrated electric oven. Cooker hood over. Tiled flooring.
Bedroom 2 - 15'0" (4.57m) x 12'4" (3.76m)
Double glazed window to the front. Electric storage heater.
Bathroom/WC
Suite comprising panelled bath with shower mixer tap. Pedestal wash hand basin. Tiled splash back. Close coupled WC. Electric heated towel rail.
Upper Floor Landing
Door to:
Bedroom 1 - 17'4" (5.28m) x 11'9" (3.58m) Max
Double glazed Velux window. Large walk-in wardrobe. Door to:
En-Suite Shower Room/WC
Tiled shower cubicle. Electric shower. Glazed shower cubicle. Pedestal wash hand basin. Tiled splashback. Close-coupled WC. Electric heated towel rail. Airing cupboard housing the water cylinder. Plumbing for a washing machine. Velux window.
Tenure
The property is LEASEHOLD. Details to be confirmed. We understand the property is held on a 125 year lease from the year 2000. The current maintenance charge is approx ?150 per quarter.
Services
All mains services except gas are connected. Council Tax Band B.
Mortgage Assistance
We are pleased to recommend Meredith Morgan Taylor, who would be pleased to help no matter which estate agent you finally buy through. For a free initial chat please contact us on 01395 222350 to arrange an appointment
Your home may be repossessed if you do not keep up repayments on your mortgage
Meredith Morgan Taylor Ltd is an appointed representative of The Openwork Partnership, a trading style of Openwork Ltd which is authorised and regulated by the Financial Conduct Authority (FCA).
Directions
From our prominent town centre office proceed down Rolle Street on foot and the property can be found a short distance down on the right hand side next to Ary Barbers.
what3words /// salt.paid.dark
Notice
Please note we have not tested any apparatus, fixtures, fittings, or services. Interested parties must undertake their own investigation into the working order of these items. All measurements are approximate and photographs provided for guidance only.
Utilities
Electric: Mains Supply
Gas: None
Water: Mains Supply
Sewerage: Unknown
Broadband: Unknown
Telephone: Unknown
Other Items
Heating: Electric Storage Heaters
Garden/Outside Space: No
Parking: No
Garage: No

Agent Statistics (Based on 735 Reviews) :