The UK's Largest Customer Review Website for the Property Industry
The UK's Largest Customer Review Website for the Property Industry
Back to Property Listings
Riverview, 11 Windrush Heights, Burford
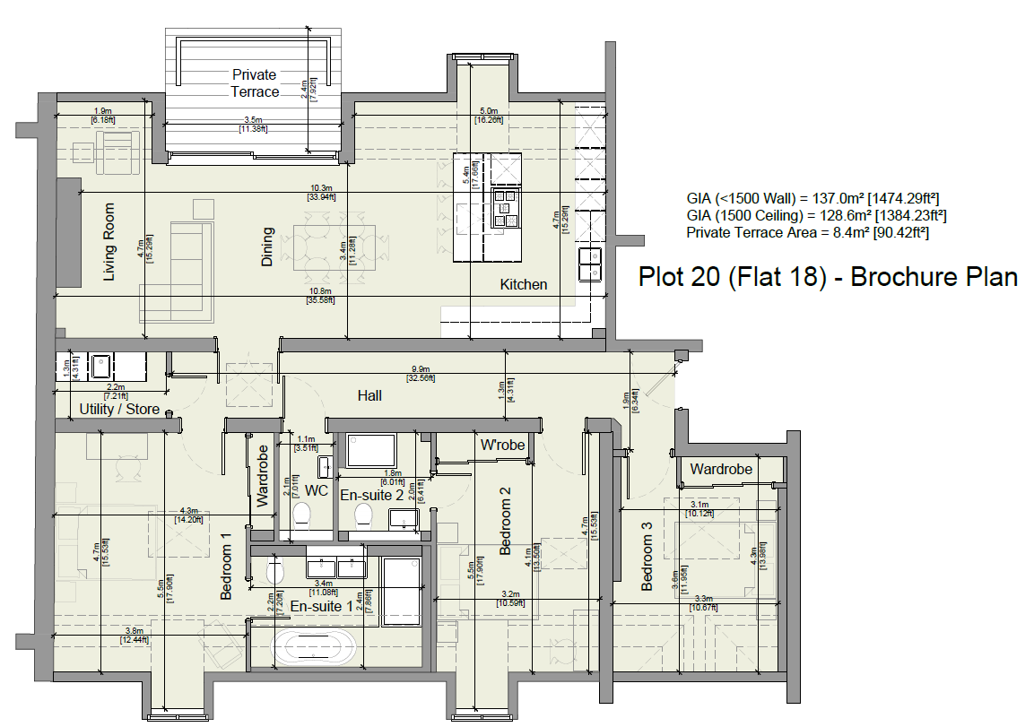
This beautiful penthouse has a gross internal area of 1,565 sq ft and benefits from two very good sized bedrooms with fitted wardrobes,additional storage above wardrobes, two en-suite bathrooms, an additional guest WC,
Contemporary style handless gloss finish kitchenwhich is fully fitted with Bosch integrated fridge/freezer, fan-assisted oven, microwave, induction hob with a pop up extractor, wine fridge, integrated bin and re-cycling bins. There is also a pop-up power socket with blue-tooth speaker and phone charging facility with an integrated sound system throughout.
There is under-cupboard LED lighting and quartz stone work tops with Alusplash splash backs to all kitchen walls. The kitchen is open plan into the dining area and main living room.
There is a separate utility room with a Bosch washer/dryer as well as a water softener. The entire property benefits from under floor heating throughout.
The show stopping addition to this property is the external balcony, which boasts spectacular views over neighbouring Sherbourne Estate and Barrington Park.
The development is a real lifestyle development ideally suited to a range of buyers with no restrictions on long or short term lets.
EV Charging points available and domestic pets are allowed.
Viewing is strongly advised to appreciate the overall quality of finish and spectacular views that are on offer.
Outside
The development has attractive landscaping and two designated parking spaces and ample visitor parking as well.
Neighbourhood
A particularly welcome feature is the Cotswold Outpost. This is a delightful bistro-deli specialising in high-quality home-produced food where the provenance of all the ingredients is known to the owners. It serves as a hub for the community to meet and for residents to enjoy refreshments or a meal as well as being a convenient place to buy quality ingredients to cook at home.
Location
The development is situated just outside the village of Windrush and four miles from the thriving town of Burford. Windrush Heights is just off the A40 between Burford and the A429 Fosse Way, close to the village of Windrush, The Barrington`s and Sherbourne. There are a number of small towns and villages in the vicinity with a good range of shops, supermarkets, pubs, restaurants, schools and doctor`s surgeries and other amenities, including Burford (4.5 miles), Northleach (8 miles), Bourton-on-the-Water (9.8 miles), Stow-on-the-Wold (10.3 miles) and Witney (11.5 miles). A little further away are the larger centres of Cheltenham (18 miles) and Oxford (23 miles), both of which are excellent for shopping, entertainment and culture.
This area is packed with attractions of all sorts, including outdoor activities, sports, festival venues and heritage sites; for instance, the Cotswold Wildlife Park (7 miles); Chedworth National Trust Roman villa (10 miles); Daylesford Organic (12.8 miles); Longborough Festival Opera (12.8 miles); Bourton House Garden and Batsford Arboretum (16 miles); Sudeley Castle (16 miles); and Blenheim Palace (21.7 miles) and Bicester retail shopping outlet.
There are two railway stations that can be reached in about 20 minutes by car: Kingham (12 miles) and Charlbury (13 miles). The train services run south-east to Oxford, Reading and London; and north-west to Worcester and Hereford.
Situation & Property Information
Newly Built Apartment
Leasehold: Lease 999 years from 2021
Service Charges - ?2,718.46 (year 1.1.-31.12. 2025)
Ground Rent: Peppercorn
Council Tax Band B - Cotswold District Council
Viewings
Strictly by appointment only.
Agent`s Disclaimer
Distinct Property Consultants is the seller`s agent for this property. We always obtain detailed information from the seller to ensure the information provided is as accurate as possible; however, your legal representative is legally responsible for ensuring any purchase agreement fully protects your interests. Please inform us if you become aware of any information being inaccurate.
Distinct Property Consultants have not tested any apparatus, equipment, fixtures, fittings or services. It is the responsibility of prospective purchasers to check the working condition of these items.
To comply with anti-money-laundering regulations, buyers will be asked to provide proof of ID and proof of address, as well as proof of funds.
Distinct Property Consultants also offer a Lettings and Property Management Service. If you are considering renting your property, are looking at buy-to-let, or would like a free review of your current portfolio, then please call us on the number shown above. We are accredited by the UK`s leading professional body Propertymark ARLA/NAEA.
what3words /// lines.squabbles.little
Notice
Please note we have not tested any apparatus, fixtures, fittings, or services. Interested parties must undertake their own investigation into the working order of these items. All measurements are approximate and photographs provided for guidance only.
Utilities
Electric: Mains Supply
Gas: Mains Supply
Water: Mains Supply
Sewerage: None
Broadband: None
Telephone: None
Other Items
Heating: Gas Central Heating
Garden/Outside Space: Yes
Parking: Yes
Garage: No

Agent Statistics (Based on 0 Reviews) :