The UK's Largest Customer Review Website for the Property Industry
The UK's Largest Customer Review Website for the Property Industry
Back to Property Listings
Riverside Road, Gorleston
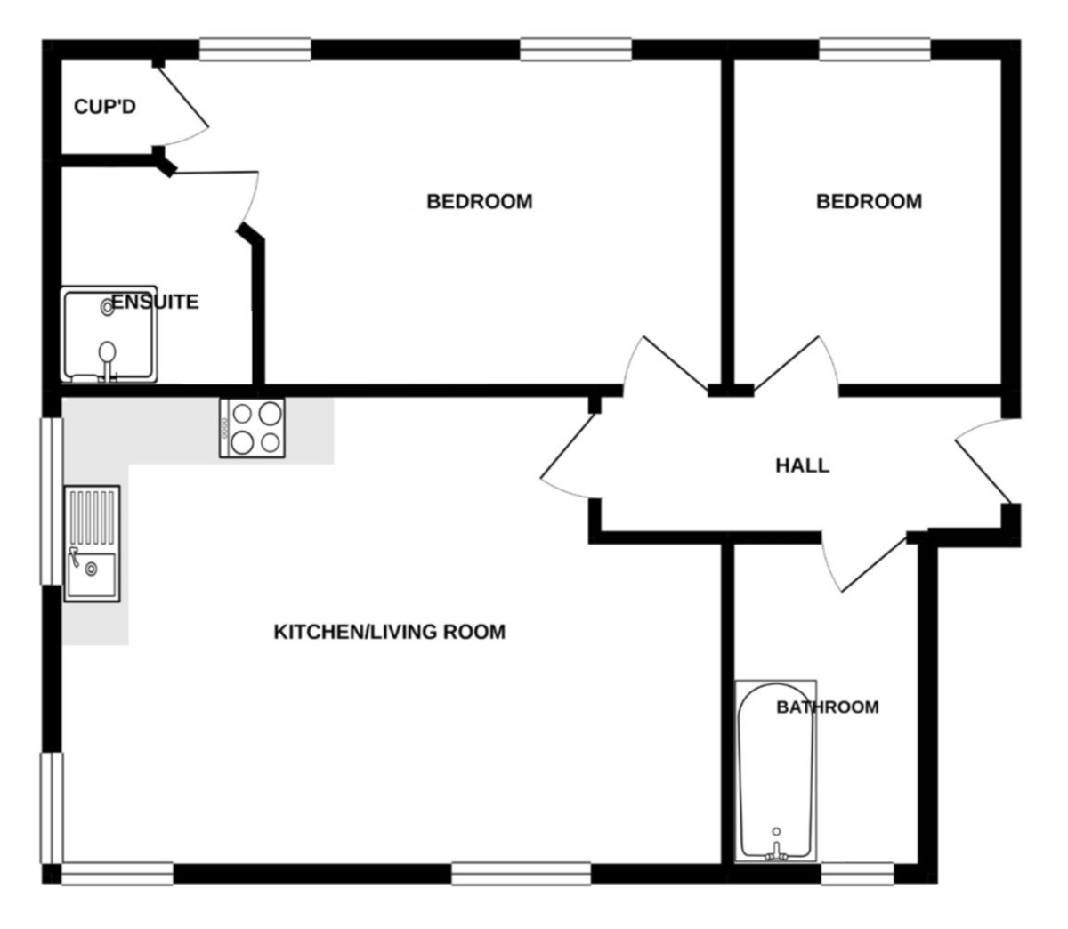
Bycroft Estate Agents are delighted to present this modern and superbly presented two bedroom apartment enjoying river and sea views. The apartment is situated in this convenient location within walking distance of the High Street and Marine Parade beach and sea. Accommodation comprises communal entrance, entrance hall, spacious open plan kitchen/lounge/diner, two good size bedrooms with en suite to principal, bathroom, allocated parking space, double glazing and gas central heating.
Details - Bycroft Estate Agents are delighted to present this modern and superbly presented two bedroom apartment enjoying river and sea views. The apartment is situated in this convenient location within walking distance of the High Street and Marine Parade beach and sea. Accommodation comprises communal entrance, entrance hall, spacious open plan kitchen/lounge/diner, two good size bedrooms with en suite to principal, bathroom, allocated parking space, double glazing and gas central heating.
COMMUNAL ENTRANCE HALL telephone entry system; stairs to second floor.
ENTRANCE HALL entrance door; telephone entry system; radiator; downlights.
KITCHEN / LOUNGE / DINER 20' 2" x 14' 4" max (6.15m x 4.37m) l-shaped worktop with a range of base cupboards and drawers under; integrated freezer and fridge; built in oven with four ring hob and light and extractor; one bowl sink with mixer tap; range of wall units; downlights; full length window enjoying river and sea views; feature corner full length window again with same river and sea views; further side window; radiator.
BEDROOM 1 17' 5" max x 9' 9" (5.31m x 2.97m) windows to rear aspect; radiator; cupboard housing Valiant gas boiler.
EN SUITE large walk in shower with mains fittings; wc; vanity unit comprising wash hand basin with mixer tap and storage cupboard; chrome heated towel rail; extractor fan; downlights.
BEDROOM 2 9' 9" x 8' 0" (2.97m x 2.44m) rear window; radiator.
BATHROOM wc; bath with mixer tap; pedestal wash hand basin with mixer tap; frosted window; chrome heated towel rail; downlights; extractor fan.
OUTSIDE The apartment comes with an allocated parking space.
VIEWINGS Strictly by appointment with the selling agents, BYCROFT ESTATE AGENTS, tel: 01493 664000.
LEASE INFORMATION The lease has 121 years remaining. Ground Rent £1.00 pa and Service Charge £900 pa.
COUNCIL TAX This property is currently listed as Band A.
DISCLAIMER While we endeavour to make our sales particulars fair, accurate and reliable, they are only a general guide to the property and, accordingly, if there is any point which is of particular importance to you, please contact the office and we will be pleased to check the position for you, especially if you are contemplating travelling some distance to view the property.
The approximate room sizes are only intended as general guidance. You must verify the dimensions carefully before ordering carpets or any built-in furniture.
Any references to garden sizes are approximate and subject to confirmation by a measured survey. A pro-spective purchaser is advised to arrange for their own land survey to be carried out.
Please note we have not tested the services or any of the equipment or appliances in this property, accord-ingly we strongly advise prospective buyers to commission their own survey or service reports before finalis-ing their offer to purchase.
THESE PARTICULARS ARE ISSUED IN GOOD FAITH BUT DO NOT CONSTITUTE REPRESENTATIONS OF FACT OR FORM PART OF ANY OFFER OR CONTRACT. THE MATTERS REFERRED TO IN THESE PARTICULARS SHOULD BE INDEPENDENTLY VERIFIED BY PROSPECTIVE BUYERS.

Agent Statistics (Based on 371 Reviews) :