The UK's Largest Customer Review Website for the Property Industry
The UK's Largest Customer Review Website for the Property Industry
Back to Property Listings
Richmond Street, Monkton Heathfield
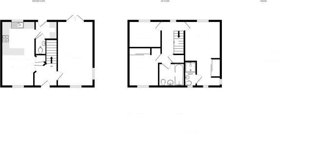
Accommodation
Front door opening to:-
Entrance Hall
With stairs to the first floor accommodation, radiator, ceiling light, doors to:-
Sitting Room
c.18`6 x 10`3 (5.63m x 3.12m)
With a double glazed window to the front aspect overlooking the green, double glazed patio doors to the rear garden, electric focal point fire, television point, 2 radiators, ceiling light.
Kitchen/Dining Room
c.18`5 x 12`1 > 9` (5.61m x 3.60m > 2.74m)
With double glazed windows to the front, rear and side aspects, fitted units comprising both floor and wall mounted storage cupboards and drawers, with working surfaces incorporating a 1&1/4 bowl single drainer stainless steel sink unit with mixer tap, built-in electric oven and 4 ring gas hob and extractor cooker hood over, built-in dishwasher, tiling to splash prone areas, 2 ceiling lights, radiator, door to:-
Utility Room
c.6`3 x 5`1 (1.90m x 1.54m)
With a double glazed door to the rear garden, fitted floor and wall mounted storage cupboards, working surface, space and plumbing for a washing machine, space and point for a tumble dryer, radiator, mounted gas boiler for the hot water and central heating, ceiling light, door to:-
Cloakroom
With a pedestal wash hand basin with tiled splash back, close coupled WC, display shelving, radiator, extractor fan, ceiling light.
Landing
With a double glazed window to the rear elevation, radiator, ceiling light, over stairs storage cupboard, doors to:-
Bedroom 1
c.18`5 max x 10`5 max (5.61m x 3.17m)
With double glazed windows to both front and rear elevations, radiator, built-in wardrobes, 2 ceiling lights, door to:-
En-Suite Shower Room
With a double glazed window to the front elevation, fully tiled shower cubicle, pedestal wash hand basin, close coupled WC, tiling to splash prone areas, radiator, extractor fan, ceiling light.
Bedroom 2
c.10`10 x 9`2 (3.30m x 2.79m)
With double glazed windows to both side and front elevations enjoying far reaching views, radiator, built-in wardrobe, ceiling light.
Bedroom 3
c.9`2 x 7`6 (2.79m x 2.28m)
With a double glazed window to the rear elevation, radiator, ceiling light and access to the loft space.
Family Bathroom
With a double glazed window to the front elevation, a suite comprising of a bath, pedestal wash hand basin, close coupled WC, tiling splash prone areas, radiator, extractor fan, ceiling light.
Outside
There is garage to the rear with power and lighting, the rear garden is fully enclosed and offers a lawn with raised deck area, rear access gate and personal double glazed patio doors to the garage.
Council Tax Band :- D
Construction :- Rendered brick under a tiled roof with double glazing.
Utilities :- Mains electric, gas, water and drainage.
Flood Risk :- Surface low, river and sea very low.
Primary School Catchment :- West Monkton C of E
Secondary School Catchment :- Heathfield School
Directions
Head out of Taunton along Priorswood Road, at the roundabout take the second exit, at the nest roundabout take the second exit again, continue along this road and take the left turning signed Monkton Heatfield, continue to to he nest roundabout and take the first exit, Richmond Street will be found on your left.
Notice
Please note we have not tested any apparatus, fixtures, fittings, or services. Interested parties must undertake their own investigation into the working order of these items. All measurements are approximate and photographs provided for guidance only.
Utilities
Electric: Unknown
Gas: Unknown
Water: Unknown
Sewerage: Unknown
Broadband: Unknown
Telephone: Unknown
Other Items
Heating: Gas Central Heating
Garden/Outside Space: Yes
Parking: Yes
Garage: Yes

Agent Statistics (Based on 0 Reviews) :