The UK's Largest Customer Review Website for the Property Industry
The UK's Largest Customer Review Website for the Property Industry
Back to Property Listings
Rhugarve Gardens, Linton, Cambridge
A four bedroom family home which sits comfortably within a 0.15 of an acre plot. The property offers well proportioned accommodation, together with a private rear garden, driveway and garage.
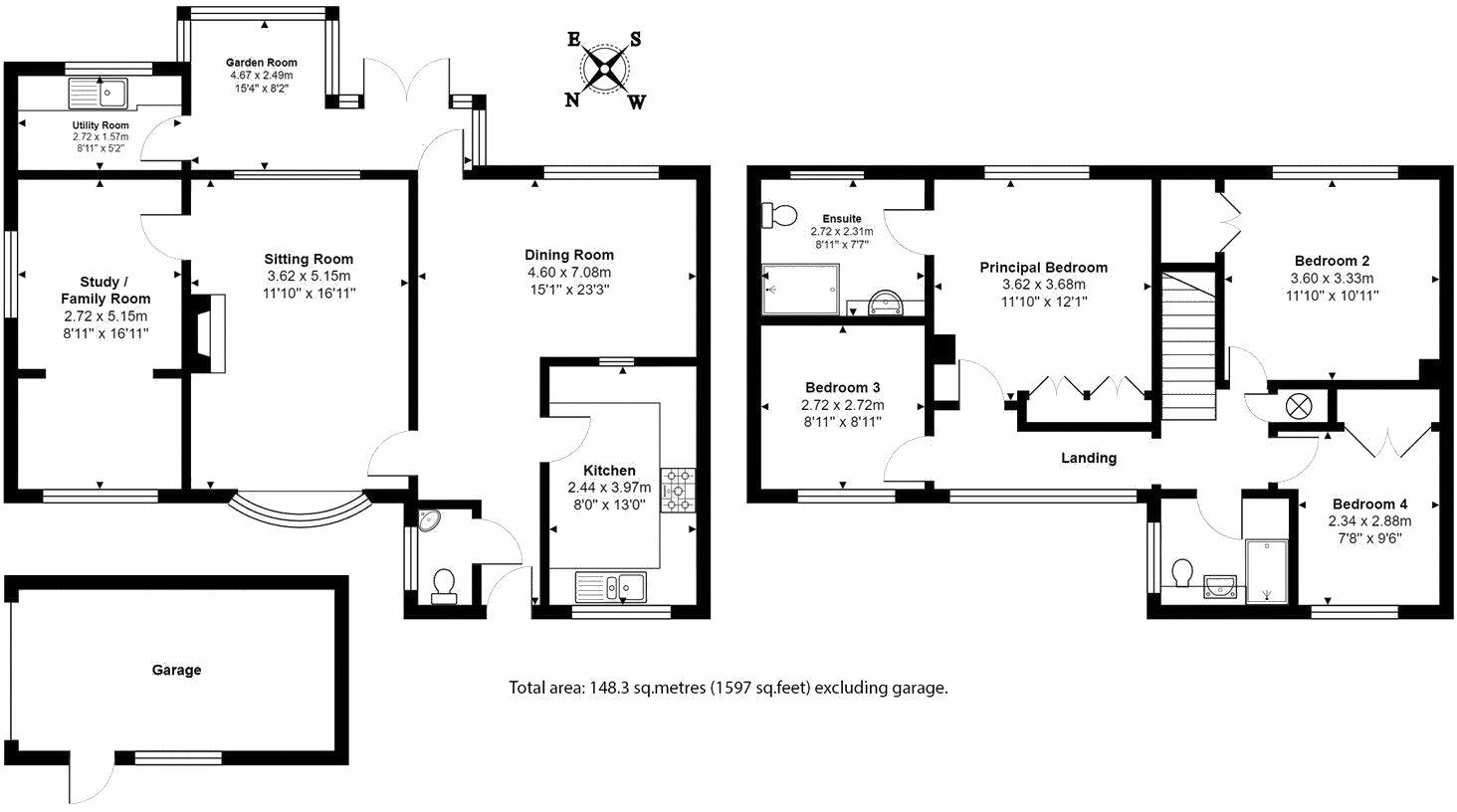
Ground Floor -
Entrance Hall - Entrance door, doors to adjoining rooms and opening to:
Dining Room - Window to the rear aspect, staircase rising to the first floor and obscure glazed window.
Kitchen - Fitted with a range of base and eye level units with worktop space over incorporating breakfast bar, five ring gas hob with extractor hood over, electric double oven, stainless steel sink, dishwasher and integrated fridge freezer. Window to the front aspect.
Cloakroom - Comprising ceramic wash basin, low level WC and obscure glazed window to the side aspect.
Sitting Room - Windows to the front and rear aspects, feature fireplace with gas fire and glazed door to:
Family Room - Windows to the front and side aspects and fitted shelving.
Garden Room - Windows to the rear and side aspects and French doors opening to the garden. Door to:
Utility Room - Fitted with base units with stainless steel sink, space and plumbing for washing machine and fitted pantry cupboard and shelving. Window to the rear aspect.
First Floor -
Landing - Doors to adjoining rooms, access to the loft space and window to the rear aspect.
Bedroom 1 - Window to the rear aspect, fitted wardrobes and door to:
En Suite - Comprising ceramic wash basin with vanity unit beneath, corner shower enclosure, low level WC, heated towel rail and obscure glazed window to the rear aspect.
Bedroom 2 - Window to the rear aspect, fitted wardrobe and access to the loft space.
Bedroom 3 - Window to the front aspect and fitted wardrobe.
Bedroom 4 - Window to the front aspect.
Shower Room - Comprising ceramic wash basin, low level WC, shower enclosure, heated towel rail and obscure glazed window to the side aspect.
Outside - There is a driveway providing off-street parking and access to the garage. The front garden is laid to lawn with trees and hedges and a block paved pathway. There is gated side access to the rear garden which is predominantly laid to lawn with mature trees and hedges providing a good degree of seclusion.
Garage - Up and over door, glazed personal door with adjoining window to the side.
Solar Panels - The property is fitted with PV solar panels providing electricity, with a feed-in tariff for any surplus energy.
Agent's Notes - For more information on this property, please refer to the Material Information brochure that can be found on our website.
Viewings - By appointment through the Agents.

This property is marketed by

Cheffins - Saffron Walden, Saffron Walden, CB10
4.9/5 Rating
(745) reviews
Agent Statistics (Based on 745 Reviews) :