The UK's Largest Customer Review Website for the Property Industry
The UK's Largest Customer Review Website for the Property Industry
Back to Property Listings
Rhodeswell Road, London
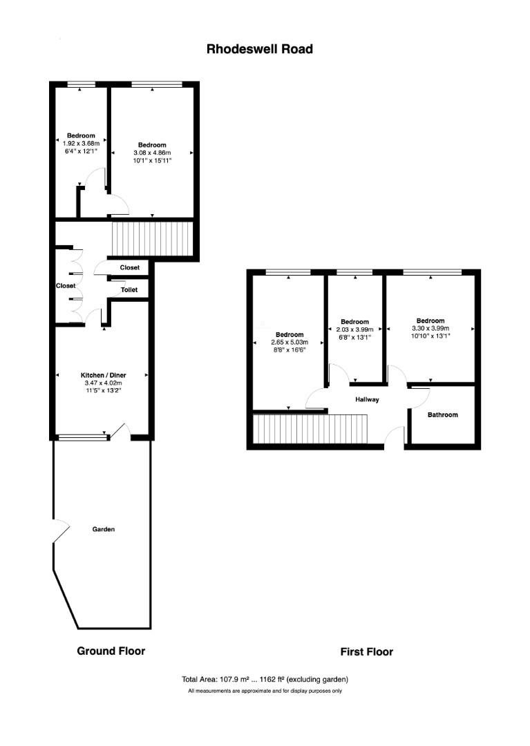
City Realtor are proud to present to the market this spacious three bedroom maisonette near Queen Mary.
The property consists of three large double bedrooms, one lounge and one study/WFH area, a full bathroom, and a separate w/c. There is also a fully equipped kitchen, with a spacious open-plan dining area which access the rear garden for nice summer fresh air! There are two entrances for the flat, one is through the rear garden and one is from inside the building.
FLAT HAS BEEN REFURBISHED RECENTLY WITH SOME NEW FURNITURE, NEW PAINT, NEW FLOORING....!!!!
THIS PROPERTY COULD BE A 3 BED WITH ONE LOUNGE AND STUDY/WFH AERA OR 4 BED 1 LOUNGE OR 5 BED NO LOUNGE.
The property is located in the Heart of Limehouse, which gives easy access to the neighbouring areas such as Mile End, Stepney Green, Wapping & Poplar, which are all walking distance! You could easily access to the City Centre in less than 30 minutes!
There is a lovely path behind the property, where you walk along side the canal that leads you straight to Queen Mary's University Of London. So this fantastic location is always popular for QUEEN MARY STUDENTS, so secure your residence for your next academic year early!
Location:
Limehouse DLR & Overground - 5 mins walk
Mile End Station - 12 mins walk
Stepney Green Station - 10 mins walk
Queen Mary University - 10 mins walk
Mile End Park - 6 mins walk
Canary Wharf - 15 mins by DLR
Tesco Superstore - 5 mins walk
Limehouse Basin & Thames Riverside - 10 mins walk
Whitechapel Station (Elizabeth Line) - 15 mins by bus
Stratford Westfield - 20 mins by train
You do not want to miss out on living in this wonderful flat. Enquire with us today to arrange a viewing!
City Realtor is a member of the ARLA Client Money Protection Scheme

Agent Statistics (Based on 692 Reviews) :